Eladó családi ház Nyíregyháza 69 900 000 Ft

Leírás

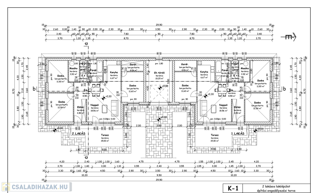
Eladásra kínálok Nyírszőlősben új építésű, 3 szobás, nappali, Wc, fürdő, gardrób-os 90nm-es ikerházakat. Az épületek fő falazata téglából, válaszfalai ytongból készül, és 15cm-es homlokzati szigeteléssel ellátott. A házak fűtéséről hőszivattyú gondoskodik. Az ingatlanok 15nm-es terasszal rendelkeznek, és az egyik házhoz tartozik egy 19nm-es garázs is. A garázzsal rendelkező ház ára 69,9 millió forint.
Az ár a kerítést is tartalmazza!2026 tavaszi átadással. Kedvezményes hitel lehetőséggel.
 Az ingatlan azonosítója: 98559Érdeklődni: +36209222558 Az ingatlan azonosítója: 98559 Érdeklődni: +36209222558

Családi ház részletei

Ár: 69 900 000 Ft
Méret: 90 négyzetméter
Azonosító: 11576624
Irodai azonosító: 98559
Telek: 400 négyzetméter
Ingatlan állapota: Épülő
Jelleg: családi ház
Építőanyag: Tégla
Fűtés jellege: Geotermikus
Egész szobák: 3

Így keressen családi házat négy egyszerű lépésben. Csupán 2 perc, kötelezettségek nélkül!

Szűkítse a családi házak
listáját
Válassza ki a megfelelő
családi házat
Írjon a hirdetőnek
Várjon a visszahívásra