Eladó családi ház Nyíregyháza 69 900 000 Ft

Leírás

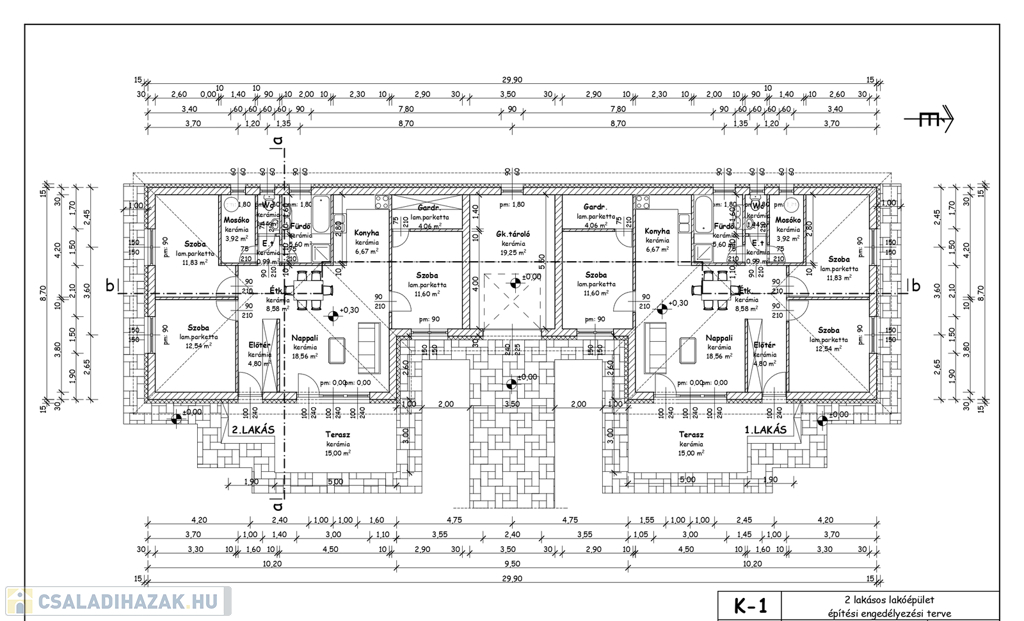
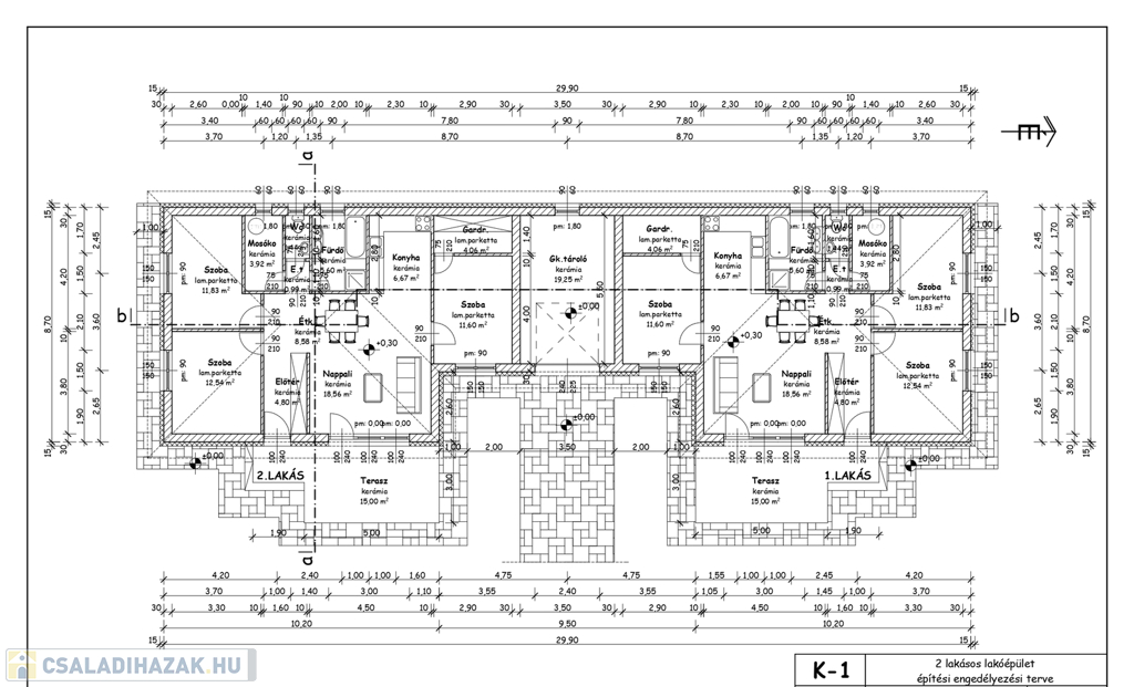
Nyíregyháza Nyírszőlős központjában, 90 m²-es, 3 szoba + nappalis 15nm-es teraszkapcsolattal, fürdő és 2 wc, gardróbszoba, választható járólap és laminált parketta burkolattal, 3 réteg üvegezésű műanyag nyílászárókkal, hőszivattyús padló fűtéssel, 15 cm homlokzati 30 cm födémszigeteléssel ikerház leinformálható minőségi kivitelezőtől, 500 nm-es telken, garázzsal megvásárolható 2025 év végi átadással. Az ár tartalmazza a kerítést is!
Kedvezményes hitellehetőség elérhető – kérje személyre szabott ajánlatunkat!Az ingatlan azonosítója: 98613Érdeklődni: +36702560693 Az ingatlan azonosítója: 98613 Érdeklődni: +36702560693

Családi ház részletei

Ár: 69 900 000 Ft
Méret: 105 négyzetméter
Azonosító: 11576638
Irodai azonosító: 98613
Telek: 500 négyzetméter
Ingatlan állapota: Épülő
Jelleg: családi ház
Építőanyag: Tégla
Fűtés jellege: Geotermikus
Kor: 1-5 éves
Egész szobák: 3

Így keressen családi házat négy egyszerű lépésben. Csupán 2 perc, kötelezettségek nélkül!

Szűkítse a családi házak
listáját
Válassza ki a megfelelő
családi házat
Írjon a hirdetőnek
Várjon a visszahívásra