Eladó családi ház Nyíregyháza 67 900 000 Ft

Leírás

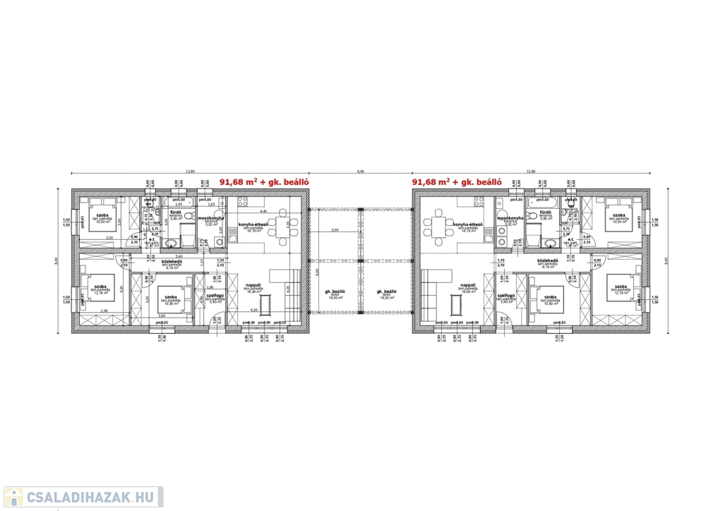
Nyíregyháza Metró áruház vonzásában ÚJ ÉPÍTÉSŰ, 18nm-es fedett autóbeálló mentén összeépült, 91 nm-es, 3 szoba + nappali étkező konyhával, külön fürdő és wc, mosókonyha. választható járólap és laminált parketta burkolattal, 3 réteg üvegezésű műanyag nyílászárókkal, hőszivattyús padló fűtéssel, téglaépítésű 15 cm-es homlokzati, 25 cm födémszigeteléssel ellátott ikerház, 430 nm-es telken, 2026 nyári átadással eladóak.Az ingatlan azonosítója: 98745Érdeklődni: +36702560693 Az ingatlan azonosítója: 98745 Érdeklődni: +36702560693

Családi ház részletei

Ár: 67 900 000 Ft
Méret: 91 négyzetméter
Azonosító: 11576656
Irodai azonosító: 98745
Telek: 430 négyzetméter
Ingatlan állapota: Épülő
Jelleg: családi ház
Építőanyag: Tégla
Fűtés jellege: Geotermikus
Kor: 1-5 éves
Egész szobák: 3

Így keressen családi házat négy egyszerű lépésben. Csupán 2 perc, kötelezettségek nélkül!

Szűkítse a családi házak
listáját
Válassza ki a megfelelő
családi házat
Írjon a hirdetőnek
Várjon a visszahívásra