Eladó családi ház Nyíregyháza, Oros, 55 000 000 Ft

Leírás

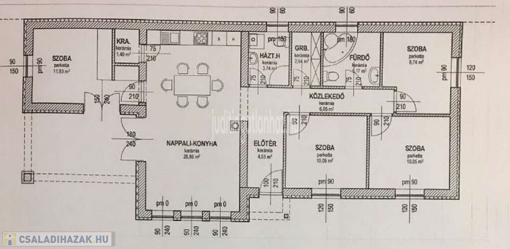
Nyíregyháza bármely részén vagy 10 km vonzáskörzetében új építésű családi házak kivitelezését vállaljuk 550 000 Ft-os négyzetméter áron. Az ingatlanok utólag fizetéssel épülnek, minden kedvezmény igényelhető. A családi házak 30-as téglából épülnek, külsőleg 15 cm-es nikecel szigetelés, három rétegű fehér műanyag nyílászárók, fafödém, gipszkarton mennyezet, fölötte 20 cm-es üveggyapot szigetelés, cserép tető. A belső ajtó a burkolat és a szaniter szabadon választható. Fűtése hőszivattyú mely padlóra vezérelt. A NÉGYZETMÉTER ÁR A TERVEZÉST IS TARTALMAZZA.   Ha felkeltettem az érdeklődését jöjjön tekintse meg a referencia házakat és döntsön! AZ ÁRBAN A TELEK ÁR NINCS BENNE! Költözési határ idő szerződéstől számítva 6-8 hónap!

Családi ház részletei

Ár: 55 000 000 Ft
Méret: 100 négyzetméter
Azonosító: 11596969
Irodai azonosító: 3099
Városrész: Oros
Telek: 1000 négyzetméter
Ingatlan állapota: Épülő
Jelleg: családi ház
Építőanyag: Tégla
Fűtés jellege: Hőszivattyú
Fűtés módja: Villany
Komfort fokozat: Összkomfort
Kor: Új építésű
Elhelyezkedés: Udvari
Szintek száma: Földszintes
Bútorozott: Nem bútorozott
Egész szobák: 3
Nappalik: 1

Egyéb jellemzők

  • Beépíthető tetőtér
  • Csatorna
  • Garázs
  • Kábel TV
  • Melléképület
  • Padlás
  • Parketta
  • Pince
  • Terasz

Így keressen családi házat négy egyszerű lépésben. Csupán 2 perc, kötelezettségek nélkül!

Szűkítse a családi házak
listáját
Válassza ki a megfelelő
családi házat
Írjon a hirdetőnek
Várjon a visszahívásra