Eladó családi ház Nyíregyháza, Nyírszőlős, 119 900 000 Ft

Leírás

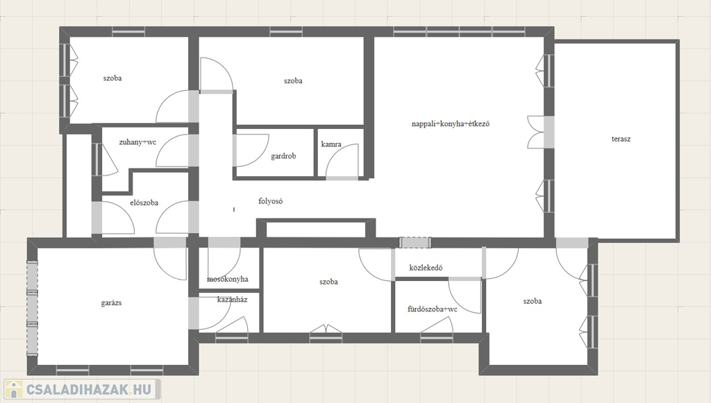
Nyíregyháza, Nyírszőlőben lefoglalható 140 m2-s négy különnyíló szobás, nappali+amerikai konyhás, fürdőszoba+wc, zuhany+wc, kamra, mosókonyha+kazánház, 3 rétegű üveg műanyag nyílászárós, egyedi gáz+ padlófűtésű + 3,5 kw-s hűtő-fűtő klímás, nagy teraszos amerikai típusú családi ház. Az ingatlan porotherm 30-s téglából épül, belső 10-s tégla falak gépi vakolással simítva, külsőleg 15 cm-s nikecel szigetelés rajta nemes vakolat borítás, fafödémes rajta 30 cm-s kőzetgyapot szigetelés, mennyezet fémvázra erősített gipszkarton rajta páraáteresztő fólia, betoncseréppel fedett alatta hővédő fólia. A külön álló családi ház 803 m2-s telken fekszik mely teljesen körbe kerített, utcafrontról szép kerítéssel, 32,6 m2-s garázzsal melynek automata garázskapuja és térkövezett felhajtója lesz. Birtokba adás szerződéstől számítva 10-12 hónap!

FINANSZÍROZÁS MEGBESZÉLHETŐ, HITELIGÉNYLÉSBEN IS TUDUNK SEGÍTENI!

Családi ház részletei

Ár: 119 900 000 Ft
Méret: 176 négyzetméter
Azonosító: 11546621
Irodai azonosító: 8018
Városrész: Nyírszőlős
Telek: 803 négyzetméter
Ingatlan állapota: Épülő
Jelleg: családi ház
Építőanyag: Tégla
Fűtés jellege: Cirkó
Fűtés módja: Gáz
Komfort fokozat: Összkomfort
Kor: Új építésű
Elhelyezkedés: Udvari
Szintek száma: Földszintes
Egész szobák: 2
Fél szobák: 2
Nappalik: 1

Egyéb jellemzők

  • Beépíthető tetőtér
  • Csatorna
  • Garázs
  • Kábel TV
  • Melléképület
  • Padlás
  • Parketta
  • Pince
  • Terasz

Így keressen családi házat négy egyszerű lépésben. Csupán 2 perc, kötelezettségek nélkül!

Szűkítse a családi házak
listáját
Válassza ki a megfelelő
családi házat
Írjon a hirdetőnek
Várjon a visszahívásra