Eladó családi ház Nyíregyháza 110 000 000 Ft

Leírás

Nyíregyháza - Borbánya, 95 + 94  nm-es hasznos alapterületű, ÚJ ÉPÍTÉSŰ, 3 külön nyíló szoba + amerikaikonya - nappalis családi ikerház, dupla garázzsal, pihenőkerttel, csendes, zöldövezeti környezetben, aszfalt út mellet, 500 nm-es telekterülettel eladó!
Főbb paraméterek:

- Phoroterm 30-as téglából épült + 15 cm szigetelés
- mennyezeti szigetelés 30 cm
- cserép fedés
- atracit borítású műanyag nyílászárók
- 3 külön nyíló szoba + nappali
- egyedi gázfűtés - padlófűtés
- 3 db inverteres klíma
- káddal felszerelt fürdőszoba + WC
- zuhanyzóval felszerelt fürdőszoba + WC
- WC külön helyiségben is
- mosókonyha
- burkolata: járólap és lamináltpadló
- erkély
- terasz (20 nm)
- részben térkövezett udvar. 
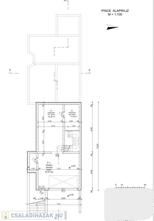
Az ingatlan hasznos lakótere 95 nm, valamint a ház alatt 94 nm-es terület lett kialakítva, ahol helyet kapott egy 2 állásos garázs, mosókonyha, kazánház, és kb. egy 40 nm-es saját igénynek megfelelően (konditeremnek, bulihelyiségnek, wellness részlegnek) kialakítható helyiség. Innen is közvetlen bejárattal megközelíthető a lakótér. A két ingatlan érintkezésénél hanggátló tégla kerül beépítésre, így abszolút nincs áthallás. A privát szféra épített kerítéssel biztosított.
Az igényes kivitelezéssel készült ingatlan 2026.05. hó átadással megvásárolható. Az ár 100%-készültségre vonatkozik. Hívjon, ha szeretné megtekinteni!
Az ingatlan azonosítója: 68952Érdeklődni: +36204394852 Az ingatlan azonosítója: 68952 Érdeklődni: +36204394852

Családi ház részletei

Ár: 110 000 000 Ft
Méret: 189 négyzetméter
Azonosító: 11574387
Irodai azonosító: 68952
Telek: 500 négyzetméter
Ingatlan állapota: Kitűnő
Jelleg: családi ház
Építőanyag: Tégla
Fűtés jellege: Cirkó
Kor: 1-5 éves
Egész szobák: 4

Így keressen családi házat négy egyszerű lépésben. Csupán 2 perc, kötelezettségek nélkül!

Szűkítse a családi házak
listáját
Válassza ki a megfelelő
családi házat
Írjon a hirdetőnek
Várjon a visszahívásra