Eladó családi ház Nyíregyháza 110 000 000 Ft

Leírás

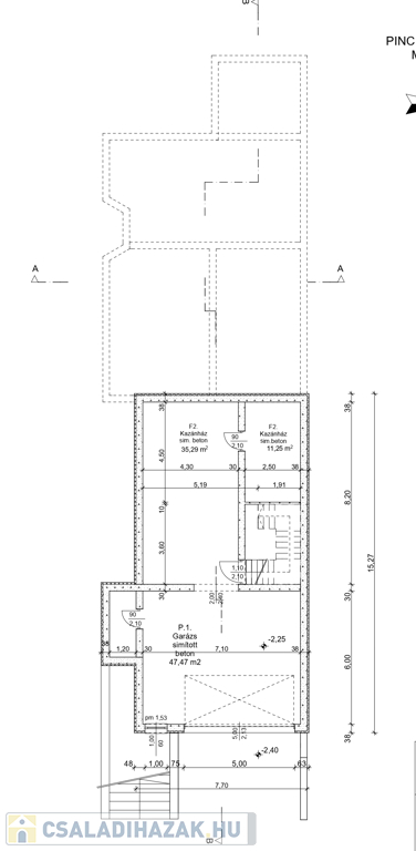
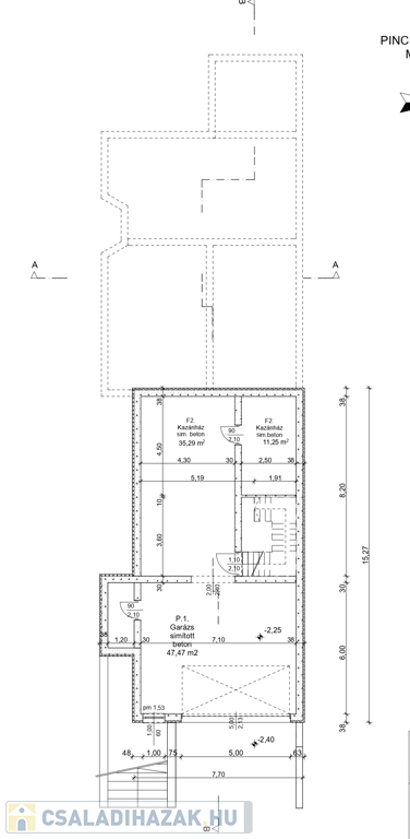
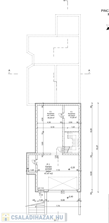
Nyíregyháza Borbányán, ÚJ ÉPÍTÉSŰ, 189 nm összterületű, 3 szoba + tágas nappali étkező konyhával, 19,5 nm-es teraszkapcsolattal, 2 fürdő egyik zuhanyzó másik fürdőkáddal, 3 wc-vel, mosókonyha, kazánház, választható járólap és laminált parketta burkolattal, egyedi gáz padló fűtéssel kondenzációs kazánnal, 3 db inverteres hűtő-fűtő klímával, 3 réteg üvegezésű antracit műanyag nyílászárókkal, 15 cm homlokzati, 30 cm födém 10 cm lépésálló szigeteléssel, 47,5 nm-es Hörmann automata kapuval ellátott garázzsal és mögötte 35 és egy 11 nm-es alaksori helységgel közvetlen feljáróval, ami saját igényeinek megfelelően kialakítható. Részben tér burkolva és épített kerítéssel ikerház, 500 nm-es telken eladó. Kulcsátadás 2026 tavasza.
Energetikai besorolás A+Az ingatlan azonosítója: 99167Érdeklődni: +36702560693 Az ingatlan azonosítója: 99167 Érdeklődni: +36702560693

Családi ház részletei

Ár: 110 000 000 Ft
Méret: 189 négyzetméter
Azonosító: 11590706
Irodai azonosító: 99167
Telek: 500 négyzetméter
Ingatlan állapota: Épülő
Jelleg: családi ház
Építőanyag: Tégla
Fűtés jellege: Cirkó
Kor: 1-5 éves
Egész szobák: 3

Így keressen családi házat négy egyszerű lépésben. Csupán 2 perc, kötelezettségek nélkül!

Szűkítse a családi házak
listáját
Válassza ki a megfelelő
családi házat
Írjon a hirdetőnek
Várjon a visszahívásra