Eladó családi ház Nyíregyháza 110 000 000 Ft

Leírás

Nyíregyháza kedvelt Oros városrészének csendes, aszfaltozott utcájában eladó egy modern kialakítású, magas műszaki tartalommal épülő ikerház, amelynek tervezett átadása 2026 júniusában várható.
A kivitelezés már az utolsó szakaszában jár, így az új tulajdonosnak még lehetősége van a burkolatok kiválasztására, hogy az otthon saját ízlésének megfelelően készüljön el.
Főbb jellemzők


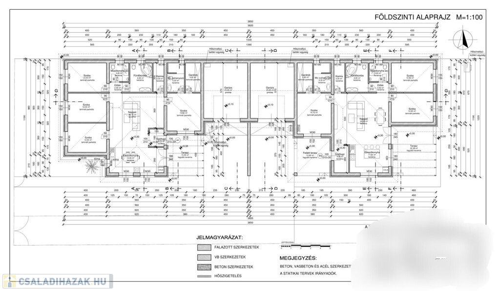
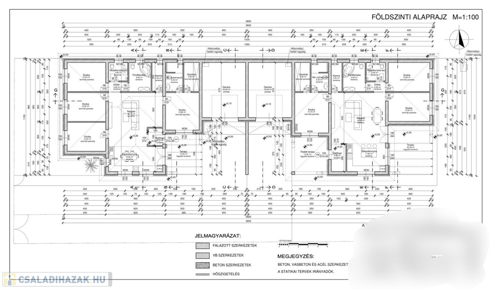
Lakótér: 112 m²


Garázs: 25,6 m²


Fedett terasz: 14 m²


Nyitott terasz: 23 m²


Saját telek: 1000 m²


Az ikerház csak a garázsnál kapcsolódik a szomszéd épülethez, így a lakótér teljesen elkülönül, biztosítva a nyugodt és privát életteret.
Helyiségek elosztása


tágas nappali–étkező–konyha egy légtérben


3 hálószoba + nappali


kamra


külön mosókonyha


fürdőszoba WC-vel


szülői hálószoba saját zuhanyzós fürdőszobával, WC-vel és gardróbbal


Kültéri lehetőségek
Az ingatlanhoz két terasz tartozik:


egy 14 m²-es fedett terasz, amely ideális pihenéshez vagy családi étkezésekhez


egy 23 m²-es nyitott terasz, amely tökéletes grillezéshez vagy napozáshoz


A 1000 m²-es saját kert rengeteg lehetőséget kínál: kertépítés, játszótér, kerti sütögető vagy akár medence kialakítása is könnyedén megvalósítható.
Műszaki tartalom


30 cm Porotherm nútféderes téglafalazat

energetikai besorolás A ++

15 cm homlokzati hőszigetelés


Terranova antracit lábazat


háromrétegű üvegezésű műanyag nyílászárók


alumínium csatornarendszer


Tondach antracit cserépfedés


modern hőszivattyús fűtés–hűtés rendszer


Loxone okosotthon rendszer


teljes padlófűtés


Tervezett átadás
2026. június
Amennyiben egy modern, energiatakarékos otthont keres nagy kerttel Nyíregyháza egyik nyugodt részén, ez az ingatlan kiváló választás lehet.Az ingatlan azonosítója: 99933Érdeklődni: +36209268433 Az ingatlan azonosítója: 99933 Érdeklődni: +36209268433

Családi ház részletei

Ár: 110 000 000 Ft
Méret: 112 négyzetméter
Azonosító: 11604491
Irodai azonosító: 99933
Telek: 1000 négyzetméter
Ingatlan állapota: Épülő
Jelleg: családi ház
Építőanyag: Tégla
Fűtés jellege: Geotermikus
Kor: 1-5 éves
Egész szobák: 3
Fél szobák: 1

Így keressen családi házat négy egyszerű lépésben. Csupán 2 perc, kötelezettségek nélkül!

Szűkítse a családi házak
listáját
Válassza ki a megfelelő
családi házat
Írjon a hirdetőnek
Várjon a visszahívásra