Eladó családi ház Nyíregyháza, Belváros, 110 000 000 Ft

Leírás

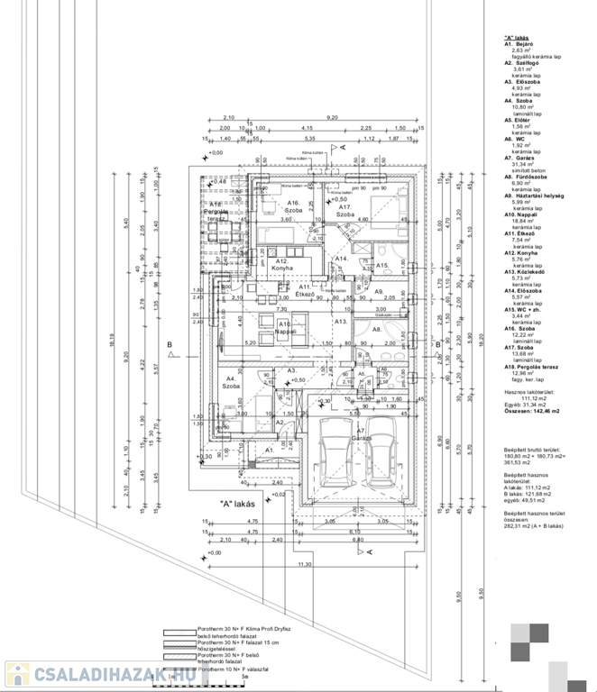
Nyíregyháza - Borbánya,  111 nm-es hasznos alapterületű, amerikaikonyha - nappali + 3 szobás ÚJ ÉPÍTÉSŰ ÖNNÁLÓ CSALÁDI HÁZ, 31 nm-es garázzsal,  720 nm-es telekterületen eladó!
Főbb paraméterek:

- Phoroterm 30-as téglából épült + 15 cm szigetelés- mennyezeti szigetelés 20 cm
- aljzat szigetelés: 10 cm- cserép fedés- műanyag nyílászárók- 3 külön nyíló szoba + nappali - amerikaikonyha- szülői hálóhoz külön zuhanyzó + WC tartozik- káddal és zuhanyzóval felszerelt fürdőszoba- WC külön helyiségben is- hőszivattyús fűtésrendszer - padlófűtés- 2 db inverteres klíma- burkolata: járólap és lamináltpadló- garázs 31 nm- energetikai besorolás: A+. A privát szféra épített kerítéssel biztosított.Az igényes kivitelezéssel készült ingatlan várható átadása: 2026.szeptember. Az ár 100%-készültségre vonatkozik. Hívjon, ha szeretné megtekinteni!
Az ingatlan azonosítója: 70135Érdeklődni: +36204394852 Az ingatlan azonosítója: 70135 Érdeklődni: +36204394852

Családi ház részletei

Ár: 110 000 000 Ft
Méret: 111 négyzetméter
Azonosító: 11613698
Irodai azonosító: 70135
Városrész: Belváros
Telek: 720 négyzetméter
Ingatlan állapota: Épülő
Jelleg: családi ház
Építőanyag: Tégla
Fűtés jellege: Geotermikus
Kor: 1-5 éves
Egész szobák: 4

Így keressen családi házat négy egyszerű lépésben. Csupán 2 perc, kötelezettségek nélkül!

Szűkítse a családi házak
listáját
Válassza ki a megfelelő
családi házat
Írjon a hirdetőnek
Várjon a visszahívásra