Eladó családi ház Németbánya 150 000 000 Ft

Leírás

A CASANETWORK VESZPRÉMI Ingatlaniroda eladásra kínálja a
2180-as számú, új
építésű családi házat NÉMETBÁNYÁN!

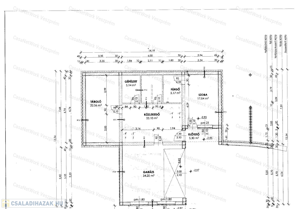
Az épület tervezett alapterülete: 290 m², három szinten.

A földszinten hálószoba, tároló, két beállós garázs,
valamint fürdőszoba, gépészet, közlekedő és egy fedett kocsi beálló kapott helyet.

Az 1. szinten található tágas nappali- konyha-étkező,
hálószoba, fürdőszoba, valamint közlekedő, tároló, gardrób, kamra + fedett
terasz.

A 2. szinten további hálószobák, fürdőszoba és egy közös
gardrób található.

A ház 2875 négyzetméteres telken épül, így rengeteg
helyet biztosít a kényelmes életvitelhez.

A ház kivitelezése során kiemelt figyelmet fordítanak az
energiatakarékos megoldásokra.

Az ingatlan Németbányán található, a Bakony szívében, egy
csodálatos erdei panorámával, amely varázslatos kilátást nyújt az otthoni
környezetről.

Az építkezés 2025 tavaszától indul, és már most leköthető
a kivitelezővel.

Az ingatlan rendkívül alacsony fenntartási energiaigényű,
ami azt jelenti, hogy a ház nagyon gazdaságosan fenntartható, és ez nagy előnyt
jelent a hosszú távú költségek szempontjából.

A padlófűtés a hideg téli estéken is kellemes melegséget
biztosít a lakók számára.

A természetes fény beáramlása pedig különleges
varázslatot kölcsönöz a helynek.

A gerendaház különösen tágas teraszával és gyönyörű
kilátásával a környező hegyekre, ideális helyszínt biztosít a reggeli kávé vagy
a grillparti élvezetére.

Aki szeretné felfedezni a vidéket, jó kiindulópont lehet
a gerendaházból.

Aki tehát igazi nyugalomra és természeti szépségre
vágyik, a gerendaház a Bakonyban tökéletes választás lehet.

Amennyiben a vevőnek speciális igényei vannak az épület
használhatóságára vonatkozóan, akkor például a belső terek kialakításánál, a
világítás megtervezésénél, vagy az épület akadálymentesítésénél ezeket az igényeket
figyelembe véve alakíthatják az épület műszaki összetevőit.

Igen, van lehetőség szerkezetkész átadásra is.

Ebben az esetben az épület alapvetően elkészül, beleértve
a szerkezeti elemeket, a falakat, a tetőt és az alapozást, de még nincsenek
beépítve az elektromos és vízellátó rendszerek, illetve a belső falakat és
burkolatokat sem helyezték el.

Az építkezés ideje alatt az árra hatással lehetnek a piaci
körülmények, így a kezdő árhoz képest változhat az ár.

Az ingatlan
vásárlásához Falusi CSOK és Babaváró hitel igénylehető.

Kiváló
választás minden korosztály számára, vagy akár befektetési célra is!

Amennyiben érdekeli az ingatlan, ne habozzon, vegye fel
velünk a kapcsolatot, és legyen az elsők között, akik élvezhetik ennek a
csodálatos otthonnak a kényelmét és szépségét.

Dallos Krisztina
ingatlanértékesítő

+36 20 404 0225

CasaNetWork -  A
civilizált ingatlanértékesítés artériája!

Amennyiben hitelben
is gondolkodik, kollégám díjmentes, bank semleges ügyintézéssel áll
rendelkezésére.











































































































 

Családi ház részletei

Ár: 150 000 000 Ft
Méret: 290 négyzetméter
Azonosító: 11533915
Irodai azonosító: 156202180
Telek: 2875 négyzetméter
Ingatlan állapota: Kitűnő
Jelleg: családi ház
Építőanyag: Fa
Komfort fokozat: Összkomfort
Egész szobák: 5

Így keressen családi házat négy egyszerű lépésben. Csupán 2 perc, kötelezettségek nélkül!

Szűkítse a családi házak
listáját
Válassza ki a megfelelő
családi házat
Írjon a hirdetőnek
Várjon a visszahívásra