Eladó családi ház Nemesvámos 150 000 000 Ft

Leírás

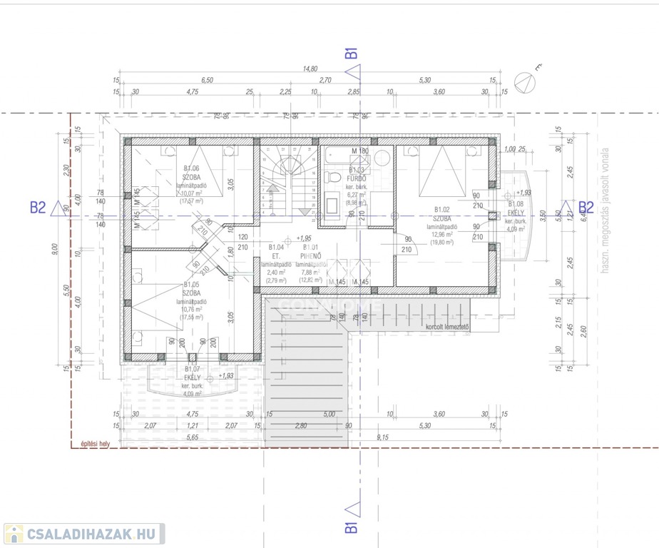
Nemesvámos újonnan kialakított, családi házas negyedében, egymás szomszédságában álló, különleges megjelenésű, új építésű családi házak várják új tulajdonosaikat. "A"

FIGYELEM!
- Prémium kivitelezés, energiatakarékos megoldás
- Tehermentes ingatlan
- Erkély: 4,09 m2, korcolt lemezfedéssel
- A hirdetésben szereplő adatok tájékoztató jellegűek, a változtatás jogát fenntartjuk!

902 m²-es sarki telken, külön bejárattal, épül két 133 m²-es, modern családi ház, 451 m² saját telekrésszel.
A telek használati megosztással kerül kialakításra, így minden ingatlan külön bejáratot és saját kertet biztosít.
Kiváló elhelyezkedés, tágas terek, önálló élettér – minden, amire egy családnak szüksége lehet!

FŐBB ADATOK:
- Építés éve: 2025.
- Szerkezet: tégla
- Födém: Porotherm gerendás, kerámia béléstestes monolit felbetonos födém
- Tető fedése: TERRÁN ZENIT MARS típusú síkcserép, vörös színben.
- Lakóterület: 132,87 m²
- Telek mérete: 451 m²
- Szigetelés: 15 cm, csontszínű, vagy halvány barna dörzsvakolattal

Parkolás az udvarban, fedett (korcolt lemeztetős) beálló alatt.

MŰSZAKI JELLEMZŐK:
- Energiatakarékos kialakítás
- Külső falak 15 cm vastag hőszigeteléssel
- 3 rétegű nyílászárók, hőszigetelő üvegezéssel, dió színben
- A konyhában a tűzhely felett szagelszívó-párátlanító berendelés, a fürdő+WC helyiségekben a szellőzővezetékbe elszívó-ventilátor kerül beépítésre.
- A lakás többi helyiségeiben a szellőzés természetes úton, nyílászárókon keresztül biztosított.
- Fűtés-hűtés: hőszivattyús padlófűtés, Fain Cool rendszerrel a nappali-konyha-étkező zónában
- Melegvíz ellátás: hőszivattyúval

Teljes kulcsrakész átadás várható ideje: 2026 nyarán

KÖRNYEZET:
- Nemesvámos új lakóövezetében, családbarát, nyugodt környezet
- Tökéletes választás gyermekes családoknak, nyugalomra vágyóknak vagy befektetésnek


A KÖZELBEN TALÁLHATÓ:
- Éttermek
- Boltok
- Buszmegálló
- Posta
- Orvosi rendelő
- Gyógyszertár
- Iskola, Óvoda, Bölcsőde
- Kerékpárút


Amennyiben az ingatlan megvásárlásához el kell adnia jelenlegi otthonát, úgy annak és a teljes folyamatnak a lebonyolításában is állok rendelkezésre!

További információkért forduljon hozzám bizalommal, hívjon a megadott telefonszámon - akár hétvégén is!


TOVÁBBI SZOLGÁLTATÁSAINK:
- Megbízható ügyvédi háttér
- INGYENES, FÜGGETLEN hitelügyintézés
- INGYENES, FÜGGETLEN biztosítási tanácsadás
- Energetikai tanúsítvány és ingatlan értékbecslés készítése
- Klíma rendszerek kiépítése és beüzemelése
- Riasztó- és kamera rendszerek kiépítése
- Közművek és szolgáltatók átírása
- Birtokbaadás lebonyolítása
- Kert- és tereprendezés
- Ingatlan takarítás
- Ingatlan felújítás
- Költöztetés

10 ÉVES SZAKMAI TAPASZTALATTAL!


#gonahome #tegyelprobara #keressbizalommal #mindenamiingatlan

Családi ház részletei

Ár: 150 000 000 Ft
Méret: 132 négyzetméter
Azonosító: 11577965
Irodai azonosító: 340434
Telek: 451 négyzetméter
Ingatlan állapota: Kitűnő
Jelleg: családi ház
Építőanyag: Tégla
Komfort fokozat: Összkomfort
Kor: Új építésű
Egész szobák: 3
Fél szobák: 2

Egyéb jellemzők

  • Terasz

Így keressen családi házat négy egyszerű lépésben. Csupán 2 perc, kötelezettségek nélkül!

Szűkítse a családi házak
listáját
Válassza ki a megfelelő
családi házat
Írjon a hirdetőnek
Várjon a visszahívásra