Eladó családi ház Nemesvámos 109 000 000 Ft

Leírás

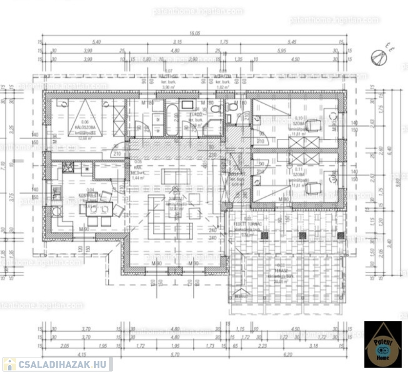
NEMESVÁMOSON, 2024-BEN ÉPÜLŐ,  103 NM-ES KULCSRAKÉSZ CSALÁDI HÁZ!

Ingatlanirodánk eladásra kínálja ezt a nemesvámosi családi házat!

- Az ingatlan elhelyezkedése kiváló, a családi ház Nemesvámos egyik közkedvelt központi részén, de mégis csendes utcájában, kerül felépítésre.
- Az ingatlan a Balatontól 12 km-re, Veszprémtől 6 km-re található, közel a kerékpárúthoz.

Általános paraméterek:

- 103 nm-es, kétszintes, 2+3 félszobás téglaépítésű ház
- Hőszivattyú, padlófűtés
- Jól átgondolt életterek, minőségi alapanyagok
- 30 cm vastag Leier falazat, 15 cm-es hő szigetelés
- meleg hideg burkolatok választhatók 9000ft/nm, beltéri ajtók 80.000ft/db 
- 500 nm-es telek, 12 nm terasz
- CSOK igényelhető

A ház jelenlegi építése szerkezetkész, így a befejezése akár a 2024-ben is befejezhető!

Az épülő ház környezetében minden adott, amire egy családnak szüksége lehet.
Jó közlekedés, élelmiszerbolt, pékség, játszótér, óvoda és általános iskola (köztük a neves Waldorf intézmény is) pár száz méteren belül elérhető.

Amennyiben a veszprémi GDN Ingatlaniroda által kínált újépítésű családi ház vagy bármely a kínálatunkban található ingatlan felkeltette érdeklődését forduljon hozzám bizalommal!

Ingatlanirodánk díjmentes, banksemleges hitelügyintézéssel, illetve ügyvédi tanácsadással is áll Ügyfeleink rendelkezésére!

Családi ház részletei

Ár: 109 000 000 Ft
Méret: 103 négyzetméter
Azonosító: 11574976
Irodai azonosító: 388934
Cím: Fő utca
Telek: 500 négyzetméter
Ingatlan állapota: Épülő
Jelleg: családi ház
Építőanyag: Tégla
Fűtés jellege: Geotermikus
Fűtés módja: Hőszivattyú
Komfort fokozat: Összkomfort
Kor: Új építésű
Szintek száma: Földszintes
Egész szobák: 2
Fél szobák: 3

Egyéb jellemzők

  • Csatorna
  • Garázs
  • Pince
  • Terasz

Térkép


Így keressen családi házat négy egyszerű lépésben. Csupán 2 perc, kötelezettségek nélkül!

Szűkítse a családi házak
listáját
Válassza ki a megfelelő
családi házat
Írjon a hirdetőnek
Várjon a visszahívásra