Eladó családi ház Nemesvámos 109 000 000 Ft

Leírás

A CASANETWORK VESZPRÉM Ingatlaniroda eladásra kínálja a 2328-as
referenciaszámú Nemesvámos Kossuth utcában található újépítésű családi házat a
következő paraméterekkel:

Az ingatlan Nemesvámos egyik közkedvelt központi
részén, de mégis csendes utcájában kerül felépítésre.
Nemesvámos a Balatontól 12 km-re, Veszprémtől 6 km-re
található, a település Veszprémből kerékpárúton is megközelíthető.
Általános paraméterek:

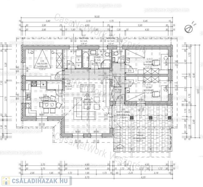
- 103 nm-es, egyszintes, 4 szobás téglaépítésű ház
- alapozás: 50 cm-es sávalap
- 30 cm vastag Leier falazat, 15 cm-es hőszigetelés
- födém:
18 cm monolit vasbeton szerkezet;
- áthidalók monolit vasbeton szerkezetek
- tetőszerkezet hagyományos ácsolt fa szerkezet
- fűtése
hőszivattyús, padlófűtéssel
- burkolatok:
kültéren térkő, a szobákban laminált parketta, egyéb
  helyiségekben kerámia burkolat
5.000.-Ft/m2  áron;
- szaniterek (összesen maximum: 750.000.-Ft-ig)
- térkövezett beálló.
- 500
nm-es telek, 12 nm terasz
- CSOK igényelhető

A ház jelenlegi építése
szerkezetkész.

A közelben, élelmiszerbolt, pékség, játszótér,
óvoda és általános iskola.



A település további előnyei:
- könnyen megközelíthető kocsival, buszközeledés gyakori;
- rendkívül alacsony rezsi, hiszen a fűtést a Panasonic hőszivattyú
fogja biztosítani;

Amennyiben az 2328-as  számú családi ház, vagy bármely, a
kínálatunkban található ingatlan felkeltette az érdeklődését, hívjon
bizalommal.

Csalagovits István

vezető értékesítő

+36 20 430 0411

Vásárolna, de nincs rá keret? Kollégám díjmentes, bank semleges hitel
ügyintézéssel áll rendelkezésére!

CasaNetWork Ingatlanhálózat























A civilizált ingatlanértékesítés artériája!

Családi ház részletei

Ár: 109 000 000 Ft
Méret: 100 négyzetméter
Azonosító: 11579206
Irodai azonosító: 156202328
Telek: 490 négyzetméter
Ingatlan állapota: Újszerű
Jelleg: családi ház
Építőanyag: Tégla
Komfort fokozat: Összkomfort
Bútorozott: Nem bútorozott
Egész szobák: 4

Így keressen családi házat négy egyszerű lépésben. Csupán 2 perc, kötelezettségek nélkül!

Szűkítse a családi házak
listáját
Válassza ki a megfelelő
családi házat
Írjon a hirdetőnek
Várjon a visszahívásra