Eladó családi ház Nagytarcsa 119 900 000 Ft

Leírás

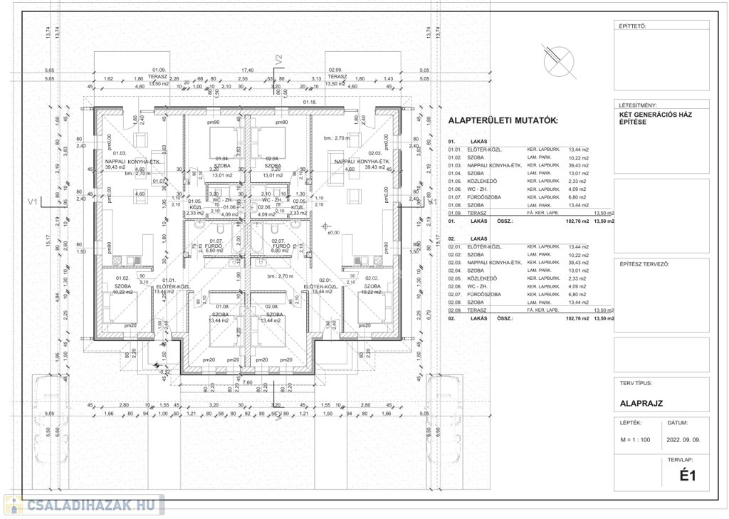
Nagytarcsán az Öregszőlő lakóparkban a Vincellér utcában 974m2-es telkeken, újonnan épült nettó 102,76 m2 nettó hasznos lakótérrel rendelkező,3 hálószoba + nappalival és két fürdőszobával rendelkező kulcsrakész ikerházfelek eladóak!

A bal oldali ikerfél elkelt!

Az ingatlanok 30-as Nútféderes X therm okos tégla falazóelemből épültek, fafödémmel. A tető héjazata antracit betoncserép, a homlokzatok 15cm Grafitos EPS, a padló 10cm lépésálló, a födém 25cm ásványgyapot szigeteléssel lett ellátva.

A külső nyílászárók kívül antracit, 6 légkamrás háromrétegű üveggel szerelt Salamander műanyag thermók, rejtett redőnytokokkal.

A fűtést split rendszerű hőszivattyús rendszer látja el, padló és falhűtéssel.

A hűtésről a hőszivattyú gondoskodik, falhűtéssel.


Az ingatlan elkészült, igényes burkolatokkal, beltéri ajtókkal, szaniterekkel látták el.

Kapumozgató elektronika előkészítés és riasztó előkészítés is készült.



INGYENES hitel tanácsadás, CSOK Plusz ügyintézés!
BANKFÜGGETLEN hitelcentrumunk az összes elérhető bank és hitelintézet ajánlatát versenyezteti az Ön kedvéért, ráadásul DÍJMENTESEN.

- Egyedi, bankfiókban nem elérhető kamat- és díjkedvezmények
- Hitelképesség vizsgálat
- Idő, energia és pénz megtakarítás
- Teljes hivatali ügyintézés

Amennyiben hirdetésem felkeltette az érdeklődését vagy egyéb információra van szüksége hívjon bizalommal!

Családi ház részletei

Ár: 119 900 000 Ft
Méret: 103 négyzetméter
Azonosító: 11610198
Irodai azonosító: 393021
Cím: Vincellér utca
Telek: 487 négyzetméter
Ingatlan állapota: Kitűnő
Jelleg: ikerház
Építőanyag: Tégla
Fűtés jellege: Geotermikus
Fűtés módja: Hőszivattyú
Komfort fokozat: Összkomfort
Kor: Új építésű
Szintek száma: Földszintes
Egész szobák: 4

Egyéb jellemzők

  • Csatorna
  • Garázs
  • Pince
  • Terasz

Térkép


Így keressen családi házat négy egyszerű lépésben. Csupán 2 perc, kötelezettségek nélkül!

Szűkítse a családi házak
listáját
Válassza ki a megfelelő
családi házat
Írjon a hirdetőnek
Várjon a visszahívásra