Eladó családi ház Nagytarcsa 109 900 000 Ft

Leírás

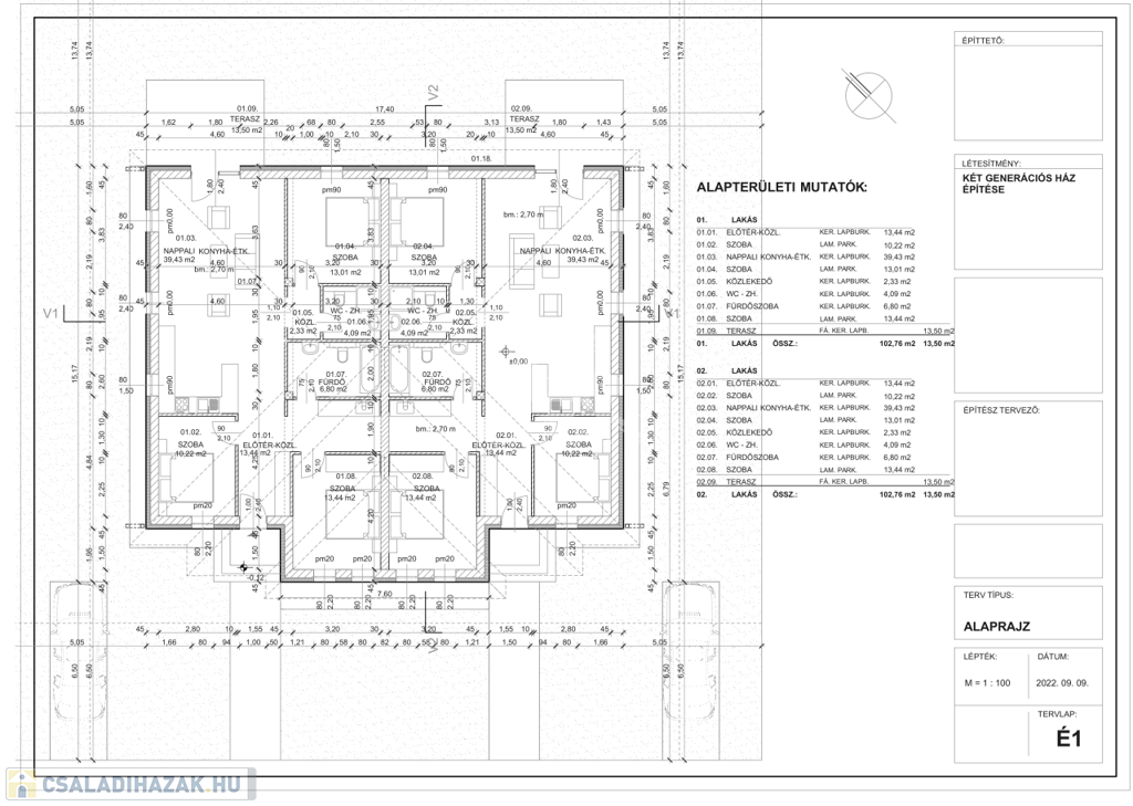
Nagytarcsán az Öregszőlő lakóparkban a Vincellér utcában 974m2-es telkeken, újonnan épült nettó 102,76 m2 nettó hasznos lakótérrel rendelkező,3 hálószoba + nappalival és két fürdőszobával rendelkező kulcsrakész ikerházfelek eladóak!

A bal oldali ikerfél elkelt!

Az ingatlanok 30-as Nútféderes X therm okos tégla falazóelemből épültek, fafödémmel. A tető héjazata antracit betoncserép, a homlokzatok 15cm Grafitos EPS, a padló 10cm lépésálló, a födém 25cm ásványgyapot szigeteléssel lett ellátva.

A külső nyílászárók kívül antracit, 6 légkamrás háromrétegű üveggel szerelt Salamander műanyag thermók.

A fűtést monoblockos hőszivattyús rendszer fogja ellátni, padlófűtéssel és falhűtéssel.

A hűtésről a hőszivattyú gondoskodik, falhűtéssel.


Választható műszaki tartalom:

-Csempe, járólap 7000 ft/m²
-Meleg burkolat 5000 Ft/m²
-Fürdőkád: 50.000.- Ft
-Beltéri ajtók 60.000.- Ft. /db
-Csaptelepek: 20.000.- Ft. /db

Magasabb árú választás is lehetséges a különbség finanszírozásával.

Kapumozgató elektronika előkészítés és riasztó előkészítés is készült

Birtokbaadás a szerződést követő 2 hónapon belül!


INGYENES hitel tanácsadás, CSOK Plusz ügyintézés!
BANKFÜGGETLEN hitelcentrumunk az összes elérhető bank és hitelintézet ajánlatát versenyezteti az Ön kedvéért, ráadásul DÍJMENTESEN.

- Egyedi, bankfiókban nem elérhető kamat- és díjkedvezmények
- Hitelképesség vizsgálat
- Idő, energia és pénz megtakarítás
- Teljes hivatali ügyintézés

Amennyiben hirdetésem felkeltette az érdeklődését vagy egyéb információra van szüksége hívjon bizalommal!

Családi ház részletei

Ár: 109 900 000 Ft
Méret: 103 négyzetméter
Azonosító: 11537797
Irodai azonosító: 382892
Cím: Vincellér utca
Telek: 487 négyzetméter
Ingatlan állapota: Kitűnő
Jelleg: ikerház
Építőanyag: Tégla
Fűtés jellege: Geotermikus
Fűtés módja: Hőszivattyú
Komfort fokozat: Összkomfort
Kor: Új építésű
Szintek száma: Földszintes
Egész szobák: 4

Egyéb jellemzők

  • Csatorna
  • Garázs
  • Pince
  • Terasz

Térkép


Így keressen családi házat négy egyszerű lépésben. Csupán 2 perc, kötelezettségek nélkül!

Szűkítse a családi házak
listáját
Válassza ki a megfelelő
családi házat
Írjon a hirdetőnek
Várjon a visszahívásra