Eladó családi ház Nagyszokoly 26 900 000 Ft

Leírás

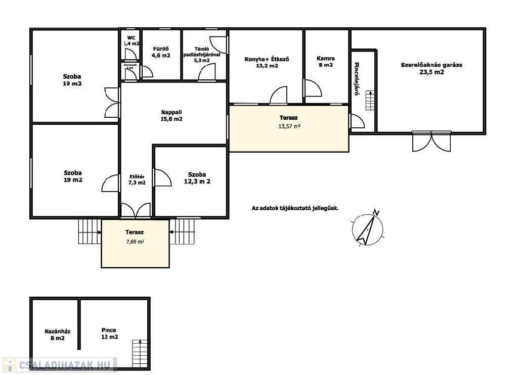
Nagyszokolyon, Siófoktól mindössze 30 km-re, csendes falusi környezetben eladó egy tehermentes, azonnal beköltözhető, kiváló állapotú, hőszigetelt, 127 m2-es, kádár kocka jellegű téglaház.
Az ingatlan három szobás, étkezős, külön konyhás, valamint két fedett terasszal és alagsorral rendelkezik, ahol a kazánház és a tüzelőtároló kapott helyet. A tetőtér beépítésére a lehetőség szintén rendelkezésre áll.
A fűtés vegyes tüzelésű kazánról és gázkazánról üzemeltethető.
Az épülethez csatlakozik egy 24 m2-es, szerelőaknás garázs, valamint több melléképület: terménytároló, sertésól, istálló és füstölő, melyek mind beton alapon, téglafalazattal épültek, és jó állapotban vannak.
A fa nyílászárók redőnnyel ellátottak, az épülethez új csatornarendszer tartozik. Az udvar és a kert rendezett, gondozott, jól karbantartott.
A 5027 m2-es telek fele szántó, így az ingatlan kiválóan alkalmas gazdálkodásra, állattartásra vagy kertészkedésre.
A házban 380 V ipari áram is be van vezetve, szerkezeti és műszaki állapota ideális, a tulajdoni viszonyok rendezettek.
Az ingatlan megfelel az Otthon Start program és a falusi CSOK feltételeinek, így fiatal családoknak, gazdálkodni vágyóknak vagy nyugodt vidéki életet keresőknek is megfelelő választás.

Referencia szám: M314208

Családi ház részletei

Ár: 26 900 000 Ft
Méret: 107 négyzetméter
Azonosító: 11571056
Irodai azonosító: M314208-5056078
Telek: 5027 négyzetméter
Ingatlan állapota:
Jelleg: családi ház
Építőanyag: Tégla
Fűtés jellege: Házközponti
Komfort fokozat: Összkomfort
Kor: 21-50 éves
Szintek száma: Földszintes
Egész szobák: 3

Egyéb jellemzők

  • Garázs

Térkép


Így keressen családi házat négy egyszerű lépésben. Csupán 2 perc, kötelezettségek nélkül!

Szűkítse a családi házak
listáját
Válassza ki a megfelelő
családi házat
Írjon a hirdetőnek
Várjon a visszahívásra