Eladó családi ház Nagypáli 89 900 000 Ft

Leírás

Eladó egy új építésű, 4 szobás családi ház Nagypáliban!

Nagypáli egy festői szépségű kis település Zala megyében, Zalaegerszeg közvetlen közelében, mindössze 10 km-re.
Keszthely és a Balaton körülbelül 35 km-re található.
A község híres a fenntartható fejlődést elősegítő zöld programjairól és a modern, környezetbarát megoldásokat alkalmazó beruházásairól, például a Napfény Parkról.

Ingatlan jellemzői:
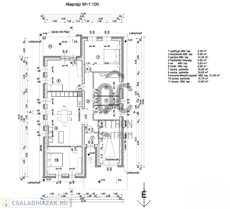
- A tégla építésű, 140 m2-es, új építésű ház, egy 731 m2-es telken helyezkedik el.
- Konyha-étkező-nappali, 3 szoba, szélfogó, közlekedő, háztartási helyiség, WC, fürdő, garázs helyiségek lettek kialakítva.
- A házhoz tartozik egy 14,3 m²-es garázs, amely Hörmann típusú garázskaput kapott.
- Nyílászárói 6 légkamrás műanyag, hőszigetelt, háromrétegű üvegezéssel, redőnnyel felszerelve.
- A fűtés hőszivattyús rendszerrel megoldott, a hőleadás pedig padlófűtésen keresztül történik.
- Meleg víz ellátást a hőszivattyú biztosítja.
- Villany, víz, csatorna bekötve, a gáz csatlakozás a telken belül található.
- A tető héjazata BRAMAC cseréppel fedett.
- A födémet 25 cm vastag kőzetgyapot szigetelés borítja, míg az épület 20 cm vastag külső Austrotherm hőszigetelést kapott.
- A 12 m2-es terasz biztosítja, hogy a melegebb napokon a kávét a szabadban lehessen elfogyasztani.
- Amíg az ingatlan nem készül el, addig a leendő vevő kiválaszthatja a belső burkolatokat 8-9.000 Ft/m2-es anyagáron, illetve az épület külső színét is lehet választani.
- A házhoz tartozó bútorokat, konyhapult, WC, kézmosó, zuhanyzó/fürdőkád stb. az épület készültségi fokáig szintén választható.

Ez az ingatlan felezőcsomagos megbízásban szerepel irodánkban.
Ennek részleteiről tájékozódhat az Otthon Centrum weboldalán, vagy tanácsadóinknál.

Irodánk teljes körű szolgáltatást nyújt kereső ügyfeleknek, amennyiben Önnek hitelre van szüksége, segítünk!
Szakszerű tanácsadással, teljes körű ingyenes hitel és CSOK ügyintézéssel, energetikai tanúsítvány elkészítésével és kedvező díjszabású ügyvéddel nyújtunk segítséget!

Családi ház részletei

Ár: 89 900 000 Ft
Méret: 140 négyzetméter
Azonosító: 11551693
Irodai azonosító: U0047451-4829825
Telek: 731 négyzetméter
Ingatlan állapota: Épülő
Jelleg: családi ház
Építőanyag: Tégla
Fűtés jellege: Villany
Fűtés módja: Hőszivattyú
Kor: Új építésű
Szintek száma: Földszintes
Egész szobák: 4

Térkép


Így keressen családi házat négy egyszerű lépésben. Csupán 2 perc, kötelezettségek nélkül!

Szűkítse a családi házak
listáját
Válassza ki a megfelelő
családi házat
Írjon a hirdetőnek
Várjon a visszahívásra