Eladó családi ház Nagypáli 89 900 000 Ft

Leírás

‼️ Árcsökkenés ‼️

Új ár: 89,9 m ft

Fedezze fel álmai házát Nagypáliban és költözzön be még az idén családi otthonába!

Eladó egy ÚJ ÉPÍTÉSŰ, modern, minden igényt kielégítő CSALÁDI HÁZ a festői szépségű Zala megye egyik legkeresettebb részén.

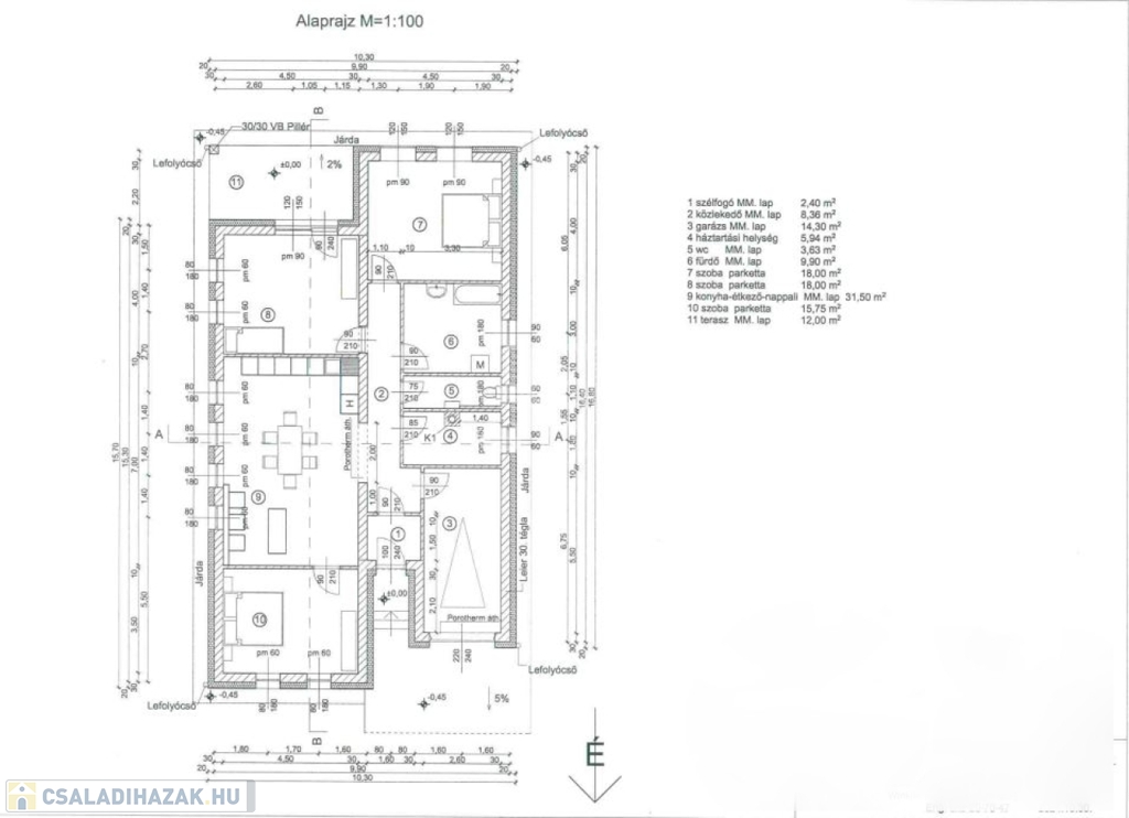
Ez a 140 m²-es, TÉGLA családi ház egy optimális, 731 m²-es telken található, melynek hátulját ERDŐ szegélyezi. Képzelje el, amint a teraszán ülve élvezi a természet közelségét saját otthonában!

Az ingatlan belső elrendezése a modern életvitelt szem előtt tartva készült. Az AMERIKAI KONYHÁS nappali tökéletesen egyesíti a közösségi és privát terek előnyeit, míg a három tágas hálószoba garantálja a család minden tagjának kényelmét. A szélfogó, a közlekedő, a háztartási helyiség, a különálló toalett és fürdő mind a mindennapi funkcionalitást szolgálják.

Gépkocsijának kényelméről egy GARÁZS gondoskodik, amelyet a minőségi Hörmann típusú kapu zár el a kíváncsi tekintetek elől és ahonnét közvetlen bejutás van a lakásba.

A legkorszerűbb műszaki megoldások biztosítják a ház komfortérzetét. A hőszivattyús rendszerrel működő FŰTÉS és melegvízellátás, valamint a PADLÓFŰTÉS télen-nyáron optimális hőmérsékletet nyújtanak. Az energiatakarékos, hőszigetelt üvegezésű, redőnnyel ellátott nyílászárók révén pedig garantált a csend és a zavartalan pihenés.

A tető héjazata BRAMAC cseréppel fedettt, a födémet 25 cm kőzetgyapot szigetelés borítja, míg az épület 20 cm külső Austrotherm hőszigetelést kapott.

Figyelem, amíg az ingatlan nem készül el, addig a leendő vevő kiválaszthatja a belső burkolatokat 9.000 Ft/m2-es anyagáron, illetve az épület külső színét is, így az ingatlan belső és külső megjelenése is az Ön ízlését tükrözi!
A házhoz tartozó kézmosó, zuhanyzó/fürdőkád stb. az épület készültségi fokáig szintén választhatóak, így valóban személyre szabott otthonba költözhet.

Nagypáli, Zalaegerszegtől mindössze 10 km-re, a ZÖLD filozófiájáról és fenntartható programjairól ismert. A közeli Keszthely és a Balaton csupán 35 km-re található, így szabadidejét számos szabadidős programmal töltheti.

Irodánk TELJES KÖRŰ SZOLGÁLTATÁST nyújt Önnek! Amennyiben HITELRE vagy CSOK igénylésre van szüksége, szakértői tanácsadással és kedvező díjszabású ügyvédi közreműködéssel segítjük az eljárást. Bízza ránk az energetikai tanúsítvány elkészítését is!

Vegye fel velünk a kapcsolatot, és tegye meg az első lépést új életéhez vezető úton!

Családi ház részletei

Ár: 89 900 000 Ft
Méret: 140 négyzetméter
Azonosító: 11491646
Irodai azonosító: 379068
Cím: Új, Tégla családi ház - garázzsal!
Telek: 731 négyzetméter
Ingatlan állapota: Átlagos
Jelleg: családi ház
Építőanyag: Tégla
Fűtés jellege: Geotermikus
Fűtés módja: Hőszivattyú
Komfort fokozat: Összkomfort
Kor: Új építésű
Szintek száma: Földszintes
Egész szobák: 4

Egyéb jellemzők

  • Csatorna
  • Garázs
  • Pince
  • Terasz

Térkép


Így keressen családi házat négy egyszerű lépésben. Csupán 2 perc, kötelezettségek nélkül!

Szűkítse a családi házak
listáját
Válassza ki a megfelelő
családi házat
Írjon a hirdetőnek
Várjon a visszahívásra