Eladó családi ház Nagykovácsi 255 000 000 Ft

Leírás

Nagykovácsiban 170nm-es, 5+1 szobás, garázsos, duplakomfortos, energiatudatos ikerház eladó

Nagykovácsi a budai agglomeráció kedvelt, hegyekkel körülvett hangulatos zsákfaluja.

Az eladó ikerház 2024 III.-IV. negyedévében kerül átadásra.

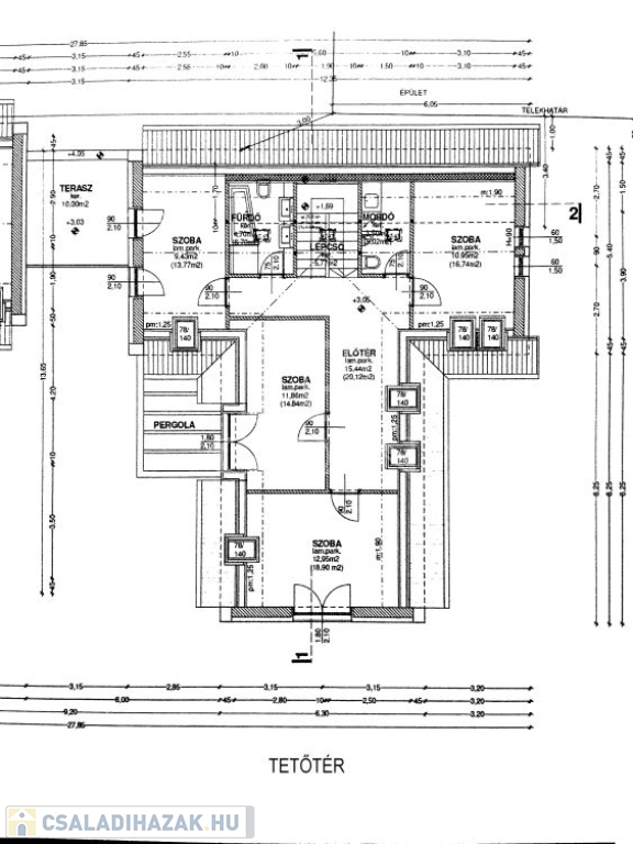
Elrendezés :
Földszinten Nappali-konyha-étkező (44,7 nm), szoba (14,8 nm), fürdőszoba, gardrób, előszoba + terasz (25 nm);
Emelet: 4 szoba (br. 18,9, 14,8,16,7 és 9,4 nm) 2 fürdőszoba (5,0 és 3,7 nm) + lépcsőház.

A 2051 nm-es telken két ikerház kerül kialakításra, az egyes lakásokhoz ~ 400 nm-es saját kertrész tartozik.

Fűtés és meleg víz: hőszivattyú padló és mennyezet felületi fűtéssel.
Külső nyílászárók pácoét fa szerkezetűek, ablakok háromrétegűek hőszigetelt üvegezéssel, külső zsaluziáva. Belső ajtók: pácolt fa szerkezetűek.

Hőszigetelés: padlóban 15 cm; tetőfödémben 30 cm; garázsban 10 cm.

Hangszigetelés padlóban, födémben 4 cm.

Pergola a D-i fronton.
Esővíztárolás: 5 m3.

Fiztési ütemezés a készenléti állapotnak megfelelően.


Amennyiben az ingatlanvásárlásához banki finanszírozást is igénybe kíván venni, úgy BANKFÜGGETLEN hitelügyintéző kollégáink szívesen nyújtanak felvilágosítást az aktuális hitelekkel, egyénre szabott kedvezményekkel, CSOK-kal kapcsolatban.

Családi ház részletei

Ár: 255 000 000 Ft
Méret: 170 négyzetméter
Azonosító: 11407686
Irodai azonosító: 371202
Cím: Kossuth utca
Telek: 2051 négyzetméter
Ingatlan állapota: Átlagos
Jelleg: ikerház
Építőanyag: Tégla
Fűtés jellege: Geotermikus
Fűtés módja: Hőszivattyú
Komfort fokozat: Dupla komfort
Kor: Új építésű
Szintek száma: 1 szint
Egész szobák: 5
Fél szobák: 1

Egyéb jellemzők

  • Csatorna
  • Garázs
  • Pince
  • Terasz

Térkép


Így keressen családi házat négy egyszerű lépésben. Csupán 2 perc, kötelezettségek nélkül!

Szűkítse a családi házak
listáját
Válassza ki a megfelelő
családi házat
Írjon a hirdetőnek
Várjon a visszahívásra