Eladó családi ház Nagykanizsa 18 990 000 Ft

Leírás

Nagykanizsától pár percre, a városhoz tartozó, Kisfakosi városrészben vált eladóvá, ez korának megfelelő, átlagos állapotában lévő, nettó 83m2-es családi ház. Az ingatlant egy 3276m2-es telekre építették, az 1970-es években, beton alappal és tégla falazattal. (akkor még csak földszint)
A tulajdonosok ezen épületre, 1993-ban ráépítetek egy plusz szintet. Ezen építkezés során, már a födém beton szerkezetű lett a tető pedig Tondach betoncserép fedést kapott, új csatornával.
Fűtés: fa tüzelésű kandalló.
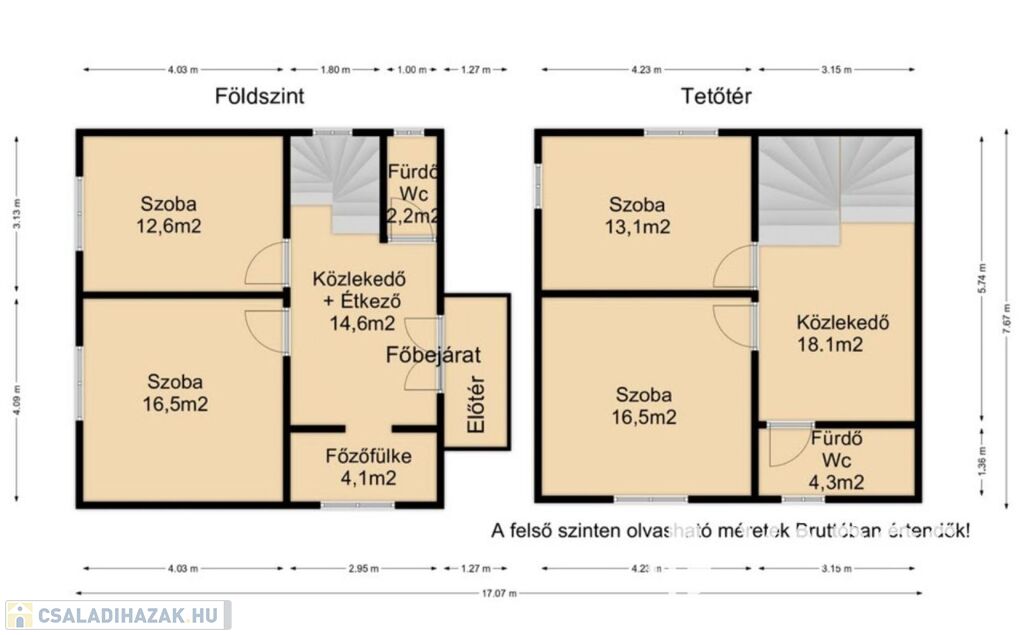
Belső helységek:
Alsó szint: 2 szoba, közlekedő étkező, főzőfülke,(nincs berendezve), fürdő mellékhelységgel együtt.
Felső szint: 2 szoba, közlekedő, fürdő mellékhelységgel együtt.
A házban megtalálható közművek: Víz, villany, szennyvíz. (Gáz nincs)
A telken található egy gazdasági épület ahol a konyha kialakításra került.
Gépkocsi tárolása a telken belül megoldható.(Garázs nincs)
Ha Ön szeretne egy csendes kis településen nem messze a várostól, egy nem túl nagy házat, kedvező áron, akkor ez az ingatlan kiváló választás lehet. (Külső képeket miatt érdeklődjön telefonon)
Iroda: Nagykanizsa Platán sor 7
(További képekért és információkért kérem hívjon!)

Családi ház részletei

Ár: 18 990 000 Ft
Méret: 83 négyzetméter
Azonosító: 11482335
Irodai azonosító: 556886
Telek: 3276 négyzetméter
Ingatlan állapota: Átlagos
Jelleg: családi ház
Építőanyag: Tégla
Fűtés jellege: Kandalló
Egész szobák: 4

Egyéb jellemzők

  • Beépíthető tetőtér
  • Csatorna
  • Garázs
  • Melléképület
  • Pince
  • Terasz

Így keressen családi házat négy egyszerű lépésben. Csupán 2 perc, kötelezettségek nélkül!

Szűkítse a családi házak
listáját
Válassza ki a megfelelő
családi házat
Írjon a hirdetőnek
Várjon a visszahívásra