Eladó családi ház Nagykálló 76 500 000 Ft

Leírás

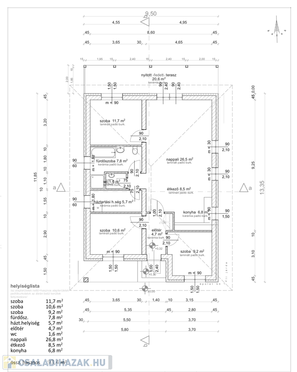
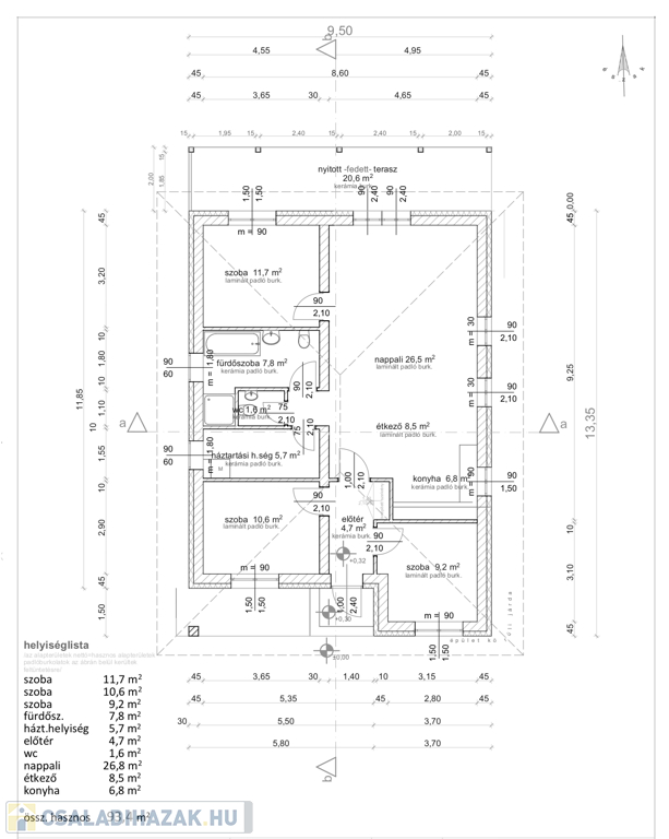
Nagykálló belváros csendes övezetében, ÚJ ÉPÍTÉSŰ, 93,4nm-es, 3 szoba + nappali étkező konyhával, 28,5 nm-es teraszkapcsolattal, 2 wc + 1 fürdő, mosókonyha, választható járólap és laminált parketta burkolattal, választható beltéri ajtókkal szaniterekkel, egyedi gáz kondenzáció gázkazánnal padló fűtéssel, igény esetén hőszivattyús fűtéssel is kérhető. Inverters klímával, 3 réteg üvegezésű műanyag nyílászárókkal, biztonsági bejárati ajtóval. A mai energetikai követelményeknek megfelelően 15 cm homlokzati, 30 cm födém, 10 cm lépésálló szigeteléssel. Épített kerítéssel ragasztóhabos téglaépítésű amerikai típusú önálló családi ház, 2026 kora nyári átadással eladó.Az ingatlan azonosítója: 99350Érdeklődni: +36702560693 Az ingatlan azonosítója: 99350 Érdeklődni: +36702560693

Családi ház részletei

Ár: 76 500 000 Ft
Méret: 93 négyzetméter
Azonosító: 11590751
Irodai azonosító: 99350
Telek: 868 négyzetméter
Ingatlan állapota: Épülő
Jelleg: családi ház
Építőanyag: Tégla
Fűtés jellege: Cirkó
Kor: 1-5 éves
Egész szobák: 3

Így keressen családi házat négy egyszerű lépésben. Csupán 2 perc, kötelezettségek nélkül!

Szűkítse a családi házak
listáját
Válassza ki a megfelelő
családi házat
Írjon a hirdetőnek
Várjon a visszahívásra