Eladó családi ház Mosonmagyaróvár 109 900 000 Ft

Leírás

Máriakálnokon azonnal költözhető, új építésű családi ház minőségi anyagok kivitelezésével, HŐSZIVATTYÚVAL, 45 m2 térkövezett terasszal, kocsibeállóval, parkosítva eladó!

Mosonmagyaróvár és Máriakálnok között, a Duna által körbeölelt, 30 Ha-os területen, Natura 2000-s erdő szomszédságában kínálok Önnek egy kulcsrakész állapotú családi házat.

Az Aranyossziget Villapark Mosonmagyaróvár közvetlen közelében található, de közigazgatásilag Máriakálnokhoz tartozik. Összesen 270 lakótelek került kialakításra, szilárd útburkolattal, közvilágítással, látványtóval, játszótérrel és igényesen kialakított közterülettel lesz ellátva. Az új parcellázású telkeken a közművesítés: víz és csatorna bevezetése, villanyhoz földkábel, internet és kábelTV behúzása megtörtént.

A 480 m2-es telken elhelyezkedő épület beton kerítéssel körülvett.
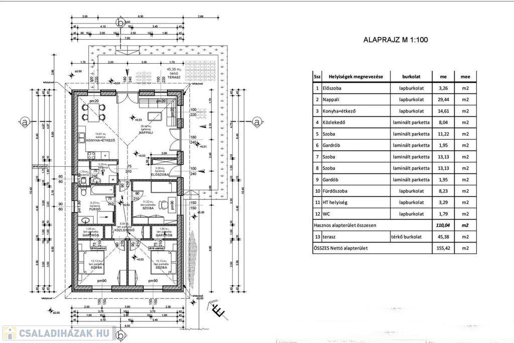
A 110 m2-es ház helyiségei: amerikai konyhás nappali, 3 hálószoba, 2 gardrób, fürdőszoba, WC, háztartási helyiség, közlekedő, szélfogó. A házhoz egy 45,38 m2-es L alakú, térkövezett terasz is épült, ami részben vagy egészben befedhető.

A jól átgondolt tervezésnek köszönhetően tágas otthona lehet, ahol minden m2 jól kihasználható. Megbízható, nagy múlttal rendelkező kivitelező által megvalósult projekt!

Az ár KULCSRAKÉSZ állapotra vonatkozik és tartalmazza a telek árát, a parkosítást, térkövezést is. Konyhabútor nincs az árban.Megfelel a közel 0 energia igényű elvárásoknak, így zöld hitel igényelhető!

Műszaki tartalom:
- A teherhordó falazatok BAKONYTHERM 30 N+F falazóelemből készültek hőszigetelő falazó habarcsba rakva
- 10 cm POROTHERM N+F kerámia válaszfallap
- 15 cm grafitos homlokzati szigetelés DRYVIT hőszigetelő homlokzatbevonattal
- zárófödémen 30 cm Rockwool Multirock hőszigetelés
- ROPLASTO típusú, fehér műanyag nyílászárók fokozott hőszigetelésű üvegezés elhelyezéssel 3 rétegű üveggel, Uü=0,60 W/m2K
- nyeregtető Terran betoncserép antracit színben
- Ereszcsatornák és lefolyók acéllemezből készültek, porfestett kivitelben, galambszürke színben
- SINCLAIR HŐSZIVATTYÚ-s rendszer
- 2 db hőszivattyús hűtő-fűtő GREE klíma
- igényes beltéri ajtók
- esztrich aljzatbeton
- mennyezeti függesztett acélváz tűzálló gipszkartonnal
- glettelés, festés fehér színben, mennyezeten a sarkokban díszléc, függöny takarással
- Ravak kád, dupla mosdó, zuhany panel, MOFÉM csaptelepek
- beépített fürdőszobabútor tükörrel
- kád és zuhanyzó is!
- 2 db GROHE WC
- igényes magas minőségű járólapok és laminált parketta
- Külső lemez és belső műanyag ablakpárkányok
- motoros redőny előkészítés

A hirdetett ár tartalmazza még a további extrákat:
- A telek teljesen körbe kerített belátást gátló beton kerítéssel
- utcafronti kerítés vakolva, cserépfedéssel
- utcai motoros csúszókapu, mágneszáras mellékbejárattal,
- térkövezett járda,
- 2 autó számára 45 m2 térkövezett beálló,
- 2 db kiépített szikkasztó (3 és 4 m3),
- a ház és a kerítés mellett kavicsfeltöltés
- kukatároló, postaláda, kamerás kaputelefon
- a kerítés mellett sövény ültetése
- humusz feltöltés, füvesítés vakondhálóval
- dísznövények, gyümölcsfák telepítése
- kerti csap

Amennyiben hitelre van szüksége ingyenes tanácsadással és teljes körű ügyintézéssel állunk rendelkezésére. Minden jelenleg hatályos támogatás igénybe vehető!

Családi ház részletei

Ár: 109 900 000 Ft
Méret: 110 négyzetméter
Azonosító: 11448715
Irodai azonosító: 115329
Cím: Mosonmagyaróvár
Telek: 480 négyzetméter
Ingatlan állapota: Átlagos
Jelleg: családi ház
Építőanyag: Kérdezzen rá a hirdetőtől »
Fűtés jellege: Cirkó
Kor: Új építésű
Egész szobák: 4

Egyéb jellemzők

  • Terasz

Így keressen családi házat négy egyszerű lépésben. Csupán 2 perc, kötelezettségek nélkül!

Szűkítse a családi házak
listáját
Válassza ki a megfelelő
családi házat
Írjon a hirdetőnek
Várjon a visszahívásra