Eladó családi ház Monor 83 800 000 Ft

Leírás

HASZNÁLJA KI A CSOK+ KAMATTÁMOGATOTT HITEL ELŐNYEIT, A 4% ILLETÉKKEDVEZMÉNYT, VALAMINT A 3%-OS OTTHON START HITELT!!!!!!

10 % FOGLALÓVAL, + 10 % VÉTELÁR ELŐLEGGEL LEKÖTHETŐ!!!

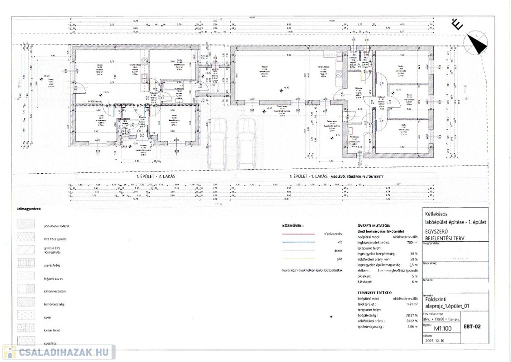
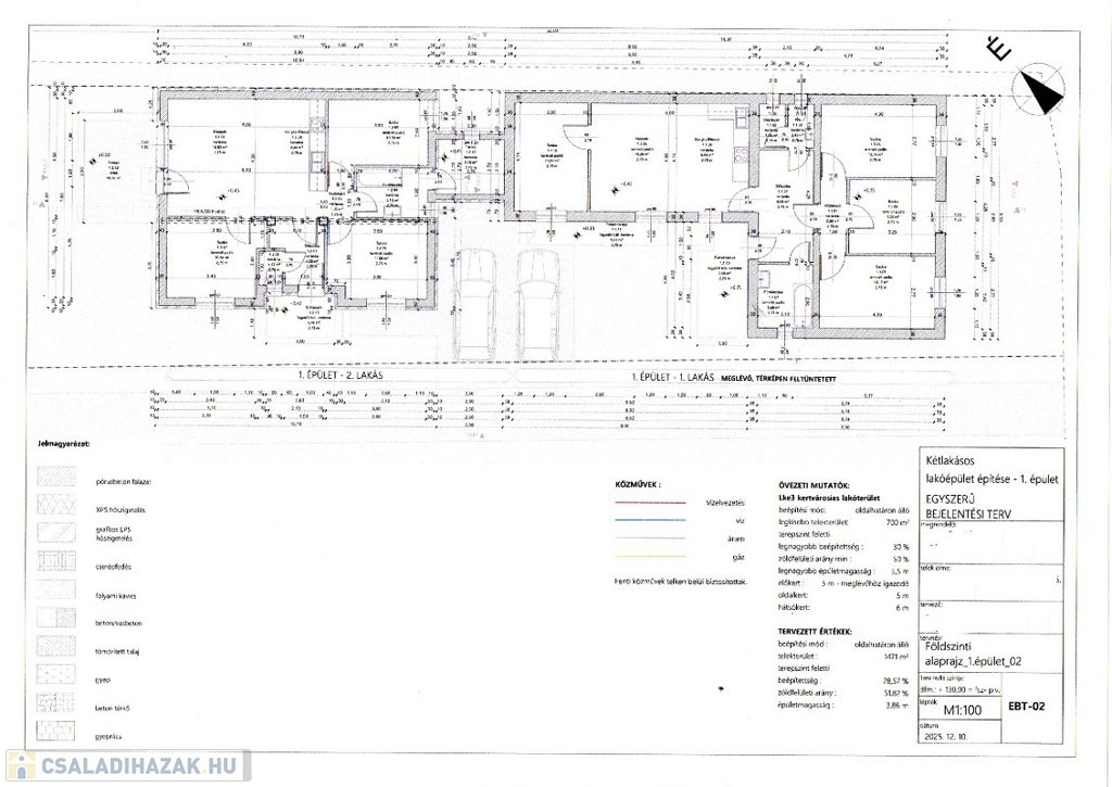
Monor kertvárosában 2×2 társasházi lakás épül, saját telekkel, közös kocsibeállóval melyek I. ütemének FOGLALÁSA MÁR MEGKEZDŐDÖTT!!!

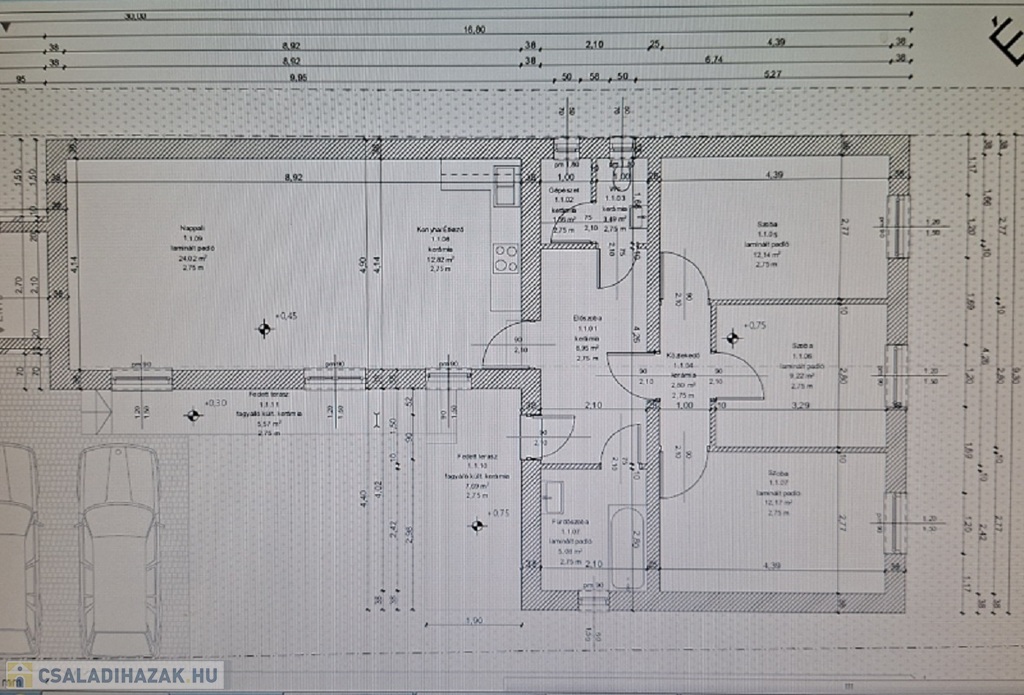
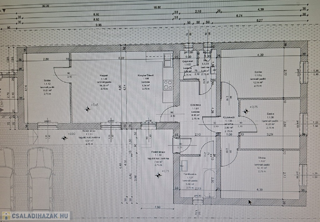
Az 1. lakás lakóterülete 92,35 m2, melyben előszoba (8,95 m2), nappali (24,02 m2), konyha-étkező (12,82 m2), közlekedő (2,80 m2), 1. szoba (12,14 m2), 2. szoba (9,22 m2), 3. szoba (12,17), fürdőszoba (5,08 m2), WC (3,49 m2), és gépészet (1,66 m2) található, valamint egy fedett terasz (7,69 m2) van a bejárat előtt.

Igény szerint a nappaliból egy 4. szoba (11,61 m2) is kialakítható, így a nappali (18,29 m2), a konyha-étkező (6,54 m2) lesz.

Az ingatlanhoz kb. 100 m2 saját telek tartozik.

Fűtés: hőszivattyúval („H” tarifa), hőleadás padlófűtéssel, valamint inverteres klímával.

Közművek közül vezetékes víz, villany („H” tarifával), és csatorna bevezetésre kerül.

Az ingatlan a ’90-es években épült téglából, ezt újítják fel teljes egészében: új szigetelést, nyílászárókat, fűtésrendszert, és a vevő által kiválasztott burkolatot kap, valamint a belső tereket is átalakítják a mai kor elvárásainak megfelelően.

ÁRA: 90.000.000.- Ft

Ehhez az ingatlanhoz csatlakozik az új építésű 2. lakás, mellyel csak a tárolóval ér össze.

A 2. lakás lakóterülete 76,18 m2, melyben előszoba (4,38 m2), nappali (18,52 m2), konyha-étkező (8,48 m2), közlekedő (1,10 m2), 1. szoba (11,05 m2), 2. szoba (10,30 m2), 3. szoba (10,64), fürdőszoba (5,13 m2), WC (1,17 m2), és tároló (5,46 m2) található, valamint egy előlépcső (4,16 m2), és egy terasz (11,70 m2) kapcsolódik a nappalihoz.

Az ingatlanhoz kb. 150 m2 saját telek tartozik.

Fűtés: hőszivattyúval („H” tarifa), hőleadás padlófűtéssel, valamint inverteres klímával.

Közművek közül a villany („H” tarifával), vezetékes víz kerül bevezetésre, a szennyvízelvezetés zárt rendszerű emésztőbe történik.

ÁRA: 83.800.000.- Ft

Elektromos kapu!

Burkolatok 8.000.- Ft/m2 árig választhatóak.

Átadás: 2026. IV. negyedév

AZ ELKÉSZÜLT INGATLANOKRÓL FELTÖLTÖTT KÉPEK A VÁLLALKOZÓ ÁLTAL ÉPÍTETT INGATLANOK REFERENCIAMUNKÁI!!!

DÍJMENTES HITELÜGYINTÉZÉS IRODÁNKBAN!!!

OTTHON START HITEL, CSOK+, BABAVÁRÓ KÖLCSÖN, KAMATTÁMOGATOTT LAKÁSHITELEK, ….

2003 ÓTA AZ ÖNÖK BIZALMÁBAN!

Családi ház részletei

Ár: 83 800 000 Ft
Méret: 76 négyzetméter
Azonosító: 11586949
Irodai azonosító: 2151
Telek: 150 négyzetméter
Ingatlan állapota: Épülő
Jelleg: sorház
Építőanyag: Tégla
Fűtés jellege: Hőszivattyú
Fűtés módja: Hőszivattyú
Komfort fokozat: Összkomfort
Kor: Új építésű
Elhelyezkedés: Udvari
Szintek száma: Földszintes
Bútorozott: Nem bútorozott
Egész szobák: 1
Fél szobák: 3
Nappalik: 1

Egyéb jellemzők

  • Beépíthető tetőtér
  • Csatorna
  • Garázs
  • Kábel TV
  • Melléképület
  • Padlás
  • Parketta
  • Pince
  • Terasz

Térkép


Így keressen családi házat négy egyszerű lépésben. Csupán 2 perc, kötelezettségek nélkül!

Szűkítse a családi házak
listáját
Válassza ki a megfelelő
családi házat
Írjon a hirdetőnek
Várjon a visszahívásra