Eladó családi ház Monor, Újtelep, 60 000 000 Ft

Leírás

HASZNÁLJA KI A CSOK+ KAMATTÁMOGATOTT HITEL ELŐNYEIT, A 4% ILLETÉKKEDVEZMÉNYT, VALAMINT A 3%-OS OTTHON START HITELT!!!!!!

10 %-al FOGLALÓVAL, + 10 % VÉTELÁR ELŐLEGGEL LEKÖTHETŐ!!!

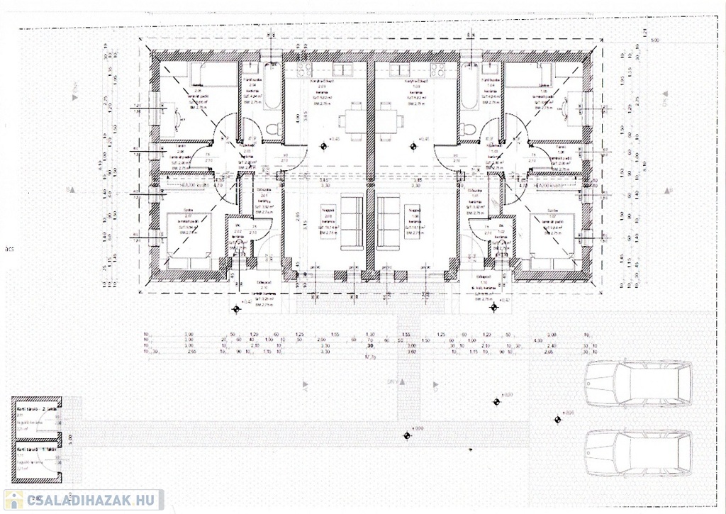
Monor Újtelepen 2 lakásos, 56,68 m2-es, 2 szoba + nappalis társasházi lakások épülnek saját telekrésszel, MÁR CSAK A 2. LAKÁS FOGLALÓZHATÓ!!!

A lakások lakóterülete 56,68 m2, melyben előszoba (3,92 m2), nappali (18,14 m2), konyha-étkező (5,82 m2), 1. szoba (8,66 m2), 2. szoba (9,54 m2), közlekedő (2,80 m2), fürdőszoba-WC-vel (4,54 m2), tároló (2,00 m2), és különálló WC (1,26 m2) található.

A lakásokhoz tartozik egy előlépcső (3,25 m2), valamint egy kerti tároló (2,215 m2) is.

Fűtés: hőszivattyúval („H” tarifa), hőleadás padlófűtéssel, valamint inverteres klímával.

Közművek közül a villany („H” tarifával), és vezetékes víz kerül bevezetésre, a szennyvízelvezetés zárt emésztőbe történik.

Elektromos kapu!

Burkolatok 8.000.- Ft/m2 árig választhatóak.

Átadás: 2026. augusztus

AZ ELKÉSZÜLT INGATLANOKTÓL FELTÖLTÖTT KÉPEK A VÁLLALKOZÓ ÁLTAL ÉPÍTETT INGATLANOK REFERENCIAMUNKÁI!!!

DÍJMENTES HITELÜGYINTÉZÉS IRODÁNKBAN!!!

OTTHON START HITEL, CSOK+, BABAVÁRÓ KÖLCSÖN, KAMATTÁMOGATOTT LAKÁSHITELEK, ….

2003 ÓTA AZ ÖNÖK BIZALMÁBAN!

Családi ház részletei

Ár: 60 000 000 Ft
Méret: 57 négyzetméter
Azonosító: 11581396
Irodai azonosító: 2147
Városrész: Újtelep
Telek: 150 négyzetméter
Ingatlan állapota: Épülő
Jelleg: sorház
Építőanyag: Tégla
Fűtés jellege: Hőszivattyú
Fűtés módja: Hőszivattyú
Komfort fokozat: Összkomfort
Kor: Új építésű
Elhelyezkedés: Utcafronti
Szintek száma: Földszintes
Bútorozott: Nem bútorozott
Egész szobák: 1
Fél szobák: 2
Nappalik: 1

Egyéb jellemzők

  • Beépíthető tetőtér
  • Csatorna
  • Garázs
  • Kábel TV
  • Melléképület
  • Padlás
  • Parketta
  • Pince
  • Terasz

Térkép


Így keressen családi házat négy egyszerű lépésben. Csupán 2 perc, kötelezettségek nélkül!

Szűkítse a családi házak
listáját
Válassza ki a megfelelő
családi házat
Írjon a hirdetőnek
Várjon a visszahívásra