Eladó családi ház Monor 113 000 000 Ft

Leírás

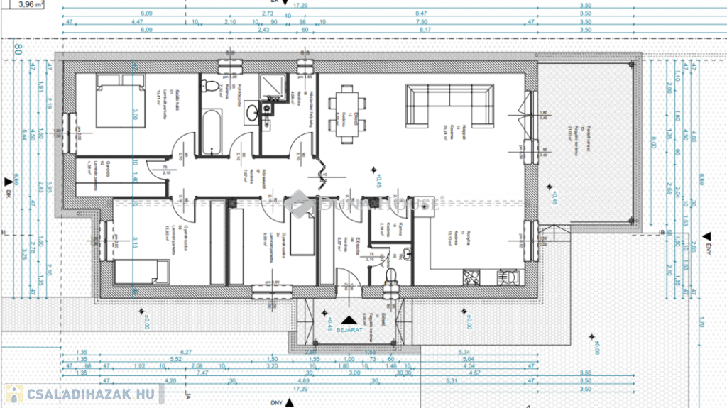
Monoron ÖNÁLLÓ újépítésű otthon közel a központhoz de mégis csendes, kertvárosias környezetben magas műszaki tartalommal!Főbb jellemzők:-Otthon hasznos alapterülete: 113,17 m2-3 hálószoba amerikai konyhás nappalival, háztartási helyiséggel és gardróbbal, külön toalettel-727m2-es összközműves saját használatú telek-21m2-es fedett terasz és 7m2-es kerti tároló-Térkövezett gépkocsibeálló-Tágas hálószobák ( 13,41m2 , 12,92m2 , 10m2 )-Van lehetőség 4 hálószobás kivitelben is kérni aameddig a készültségi fok is engediMűszaki jellemzők:-Tégla építés-Homlokzati 15cm hungarocell, 20cm-es padlás szigetelés (üveggyapot)-Burkolat átlag 8000ft/m2-ig választható-Westen starr condens gázkazán 2db hűtő-fűtő klímával kiegészítve H tarifás villanyórával-Melegvíz Ariston Lydos Hibrid 100 -as bojerrel lesz előállítva-Egész otthon területén padlófűtés, plusz törölközőszárítós radiátor a fürdőszobában-Szúnyoghálós, alumínium tokos fehér redőnyok a nagy ablakokon, a kis ablakokon fix szúnyogháló-Kívül-belül homokkő párkányok-Fürdőszobában épített zuhany és fürdőkád-Terasz burkolattal, cserépfedéssel kerül kialakításra-Összesen 100m2 viacolor burkolat az otthon körül-Elektromos kapu-A kerítés Leier falazőkőből és gondozásmentes kerítéselemekből épülElhelyezkedés:-Kertvárosias elhelyezkedés családi házas övezetben-1km-en belül elérhető a városközpont, bevásárlási lehetőség, gyógyszertár, orvosi rendelő-Az M4-es autóút 2 perc alatt elérhető autóval-Vonattal a Cegléd-Szolnok vonalon közlekedhetünk.-Buszmegálló 3 perces gyalogtávolságra vanFinanszírozás:-Csok-JelzáloghitelA kivitelező cég megbízható, magas minőségben épít, referenciamunkákkal rendelkezik.A várható átadás függ a szerződéskötés idejétől és az időjárási viszonyoktól.További kérdés esetén és megtekintési szándékkal keressenek bizalommal!

Családi ház részletei

Ár: 113 000 000 Ft
Méret: 140 négyzetméter
Azonosító: 11547295
Irodai azonosító: HZ093590-4976903
Telek: 727 négyzetméter
Ingatlan állapota: Épülő
Jelleg: családi ház
Építőanyag: Tégla
Fűtés jellege: Cirkó
Fűtés módja: Gáz
Kor: Új építésű
Szintek száma: Földszintes
Egész szobák: 4

Térkép


Így keressen családi házat négy egyszerű lépésben. Csupán 2 perc, kötelezettségek nélkül!

Szűkítse a családi házak
listáját
Válassza ki a megfelelő
családi házat
Írjon a hirdetőnek
Várjon a visszahívásra