Eladó családi ház Monor 99 900 000 Ft

Leírás


Megvételre kínálunk Monor egyik legszebb részén, egy HÓSZIVATTYÚS, új építésű, 110 nm-es teraszos, 4 szobás, + 1 félszobás, fürdő + külön WC-s ikerházat, 17 nm-es terasszal + 33 nm-es AJÁNDÉK GARÁZZSAL. Minőségi alapanyagokból, igényes kivitelezés jellemzi a projektet, ahol a biztonság és a kényelem mellett az energiatakarékosság volt a fő szempont. A ház átgondolt tervezésének köszönhetően kényelmes, otthonos, szellős, viszont ugyanakkor bővelkedik a reprezentatív, elegáns elemekkel. Az ingatlan külső falazata a körszerű Viablokk technológiával épül.



Az ingatlan megközelítését aszfaltos utca könnyíti meg.



Az otthon melegéről, valamint a használati melegvíz ellátásáról egy modern, energia takarékos, innovatív levegő-víz hőszivattyú gondoskodik akár H tarifás üzemeltetéssel.

A hőmérséklet helyiségenként állítható.

Ennek köszönhetően a rezsiköltségek minimalizálódnak.



Az ingatlan hűtéséről egy klíma berendezés fog gondoskodni.



AJÁNDÉK DUPLA GARÁZZSAL!



A Viablokk falazó rendszer előnyei a teljesség igénye nélkül: Rendkívül hatékony hő és hangszigetelő, hőhídmentes, kizárólag természetes anyagokat tartalmaz….stb.



Ennél a beruházásnál most lehetősége van kompromisszumok nélkül egy olyan ingatlanba költözni, ahol Ön kiválaszthatja a hideg és melegburkolatokat, szanitereket, beltéri ajtókat, valamint az egyéb kiegészítőket a családja legnagyobb megelégedésére, ez által személyre szabva álmai otthonát.



Az ingatlanhoz 480 nm-es privát telek tartozik.



Igénybe vehető lehetséges kedvezmények:

CSOK

5% Áfa visszatérítés

Babaváró hitel

Illeték kedvezmény vagy mentesség.



Az ingatlan árát a kulcsrakész állapotra adtuk meg.

A hirdetésben feltüntetett fotók között referencia fotók is szerepelnek.

Ezek mellett másik referencia ingatlanokat is tudunk mutatni.



A kulcsra kész ár tartalmazza a redőnyöket, három rétegű nyílászárókat, riasztó előkészítést, kaputelefon és motoros kapu kiépítést.



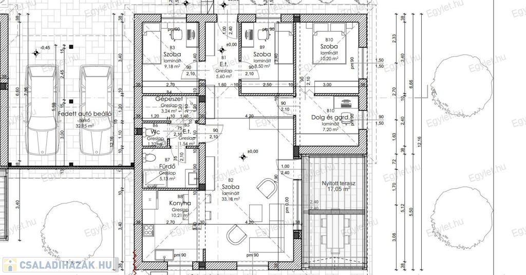
Helyiség lista:

- Közlekedő

- WC

- Gépészeti helyiség

- Három hálószoba

- Dolgozó szoba és gardrób

- Fürdőszoba

- Amerikai konyha,

- Étkező

- Nappali

- Terasz

- Dupla garázs



A telek teljes mérete: 1080 nm



Az ingatlan biztonságos, nyugodt, csendes, kertes házas övezetében, Monor egyik legszebb részén található. A környék fejlett infrastruktúrájának köszönhetően bővelkedik a szociális intézményekben, bölcsőde, óvoda, általános iskola, orvosi intézmények, bevásárlási lehetőségek, találhatóak a közelben.



Közlekedése kiváló, az M4-es autópálya rövid alatt elérhető.



Hitel, CSOK igénylésben díjmentes ügyintézéssel állunk rendelkezésére! Nálunk kiválaszthatja az Ön számára legkedvezőbb ajánlatot.



Várom megtisztelő érdeklődésüket.

Családi ház részletei

Ár: 99 900 000 Ft
Méret: 110 négyzetméter
Azonosító: 11536209
Irodai azonosító: 209001909
Telek: 480 négyzetméter
Ingatlan állapota: Kitűnő
Jelleg: ikerház
Építőanyag: Tégla
Komfort fokozat: Összkomfort
Kor: Új építésű
Egész szobák: 4
Fél szobák: 1

Így keressen családi házat négy egyszerű lépésben. Csupán 2 perc, kötelezettségek nélkül!

Szűkítse a családi házak
listáját
Válassza ki a megfelelő
családi házat
Írjon a hirdetőnek
Várjon a visszahívásra