Eladó családi ház Monorierdő 69 500 000 Ft

Leírás

ELADÓ ÚJ ÉPÍTÉSŰ 4 szobás ikerházfél Monorierdőn!

ALACSONY REZSIKÖLTSÉGŰ, KIVÁLÓ VÁLASZTÁS!

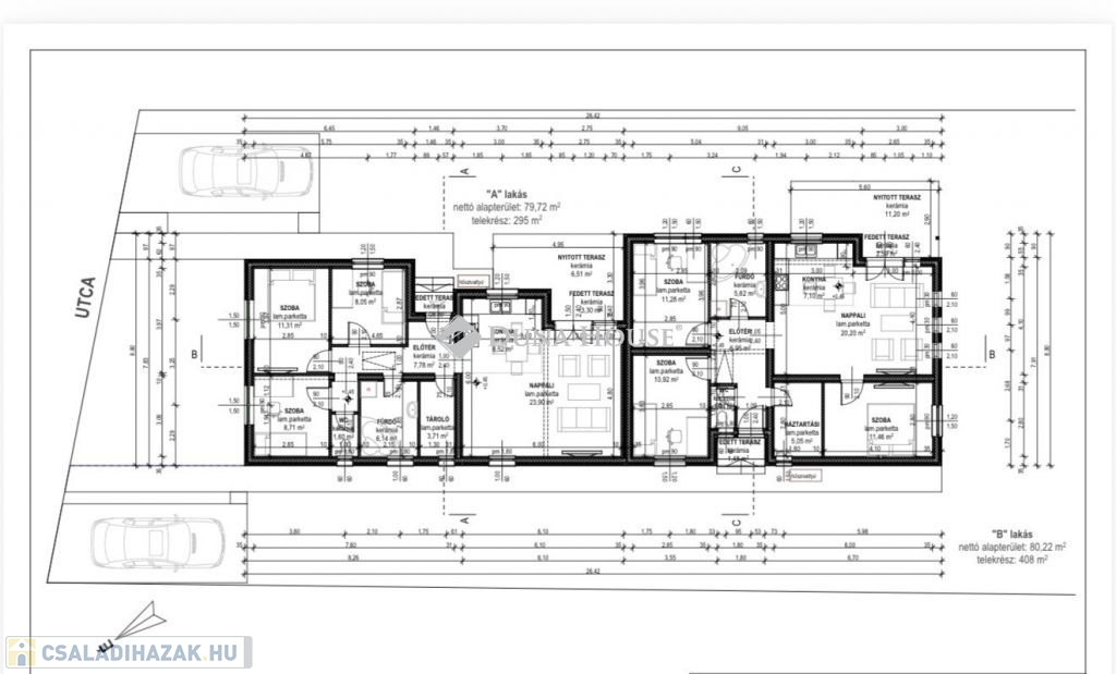
Az ingatlan 79,72 m2-es kiváló elrendezésű igényes tervek alapján épülő ingatlan.

Beton alapon könnyűszerkezetes ingatlanok cseréptető borítással.
Barna lábazat barna cserép bézs színű homlokzat EXTRA TRAVERTIN MÉSZKŐ DÍSZÍTÉSSEL a nappali kijáratnál a teraszon.

További extra barna nyílászárók az ingatlan vételárát képezik. H-tarifa óra, 1 db 3,5 kw inverteres klíma az ingatlanban.

Telek területe 295 m2, az ingatlan szabadon álló építkezés így a bejárat jobb és bal oldalt külön leválasztva. Kényelmes praktikus legjobb választás.

Kialakítása: 3 szoba, fürdő, külön wc, előtér, tároló, előtér, nappali+étkező konyha, 10 m2 nyitott és fedett terasz.
Fűtése All in One hőszivattyú adja, padlófűtés mindenhol.
10 cm ásványgyapot szigetelés (Az ásványgyapot különösen a kőzetgyapot) homlokzati szigetelés prémium, tartós (40-50+ év), nem éghető (A1 tűzvédelmi osztály) és kiváló páraáteresztő megoldás, amely megakadályozza a penészesedést,


VÁLASZTHATÓ:
Hidegburkolat 6000Ft/m2 melegburkolat 4000 Ft/ m2 áron választható,
beltéri ajtók 95 000 Ft értékben

szaniterek:
1 db 140x140-es fehér normál akril fürdőkád, Bruttó 90.000 Ft/db áron. Hozzá tartozik 1 db meleg vizes kiállás, 1 db kádtöltő csapteleppel Bruttó 25.000 Ft/db áron. Kivitelezésre kerül az épületben 1 db fehér normál Alföldi 65 cm-es mosdó, 45.000 Ft/db áron. Hozzá, tartozik 1 db mosdó csaptelep Bruttó 25.000 Ft/db áron. WC Cersanit President 1 db mély alsó kifolyásos és a hozzá tartozó Fehér Lagúna WC tartály és a WC üllőké Clivia fém csuklópánttal 85.000 Ft/ db áron. A szaniterekhez tartozó szifonok sarok szelepek Stb. A kialkudót ár tartalmaz továbbá 1 db mosógép kiállást is, amit a megrendelővel utólagos egyeztetés után építünk be.

A könnyűszerkezetes építési mód ideális választás azoknak, akik gyorsan szeretnének modern, energiatakarékos otthonba költözni.

Közelben: Iskola, Óvoda, Vasútállomás, Gyógyszertár, Coop

Amennyiben felkeltettem érdeklődését, hívjon bizalommal.

Családi ház részletei

Ár: 69 500 000 Ft
Méret: 79 négyzetméter
Azonosító: 11597152
Irodai azonosító: HZ016075-5139599
Cím: Monorierdői 79 nm-es ház eladó
Telek: 295 négyzetméter
Ingatlan állapota: Épülő
Jelleg: ikerház
Építőanyag: Könnyűszerkezetes
Fűtés jellege: Villany
Fűtés módja: Hőszivattyú
Kor: Új építésű
Szintek száma: Földszintes
Egész szobák: 4

Térkép


Így keressen családi házat négy egyszerű lépésben. Csupán 2 perc, kötelezettségek nélkül!

Szűkítse a családi házak
listáját
Válassza ki a megfelelő
családi házat
Írjon a hirdetőnek
Várjon a visszahívásra