Eladó családi ház Monok 5 999 000 Ft

Leírás

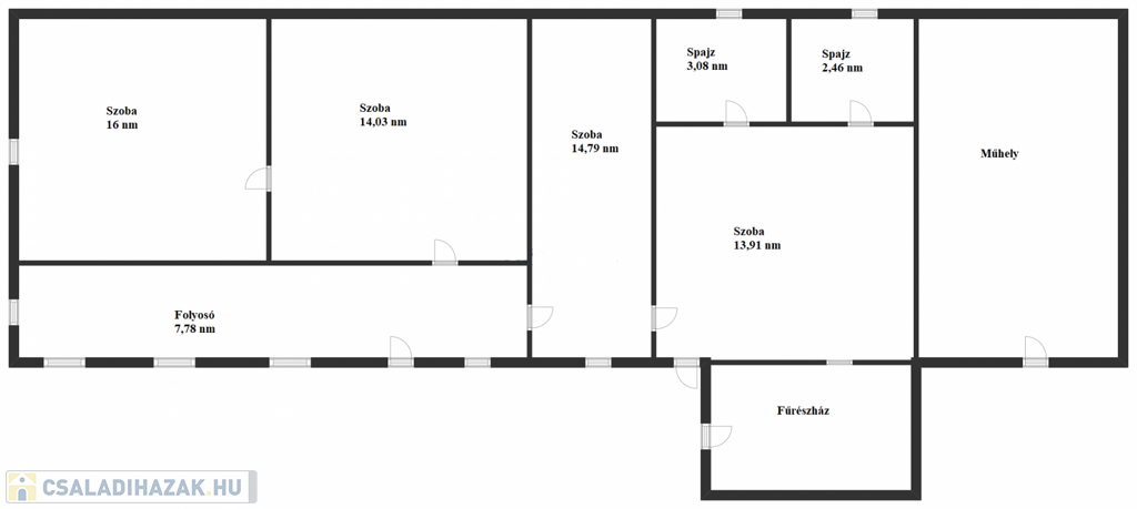
Monok főutcáján kínáljuk eladásra ezt a 2820 nm-es, sok lehetőséget rejtő telket, rajta egy 1942-ben épült, 72 nm-es családi házzal. Az ingatlan teljeskörű felújítást igényel, így kiváló alapot nyújt azok számára, akik saját elképzeléseik szerint szeretnének otthont vagy vidéki birtokot kialakítani.

A ház főbb jellemzői:
72 nm-es lakóépület

1942-ben épült, masszív szerkezet

Teljes felújítást igényel – szabadon alakítható

Ipari áram rendelkezésre áll

A víz az ingatlan előtt található, bekötése könnyen megoldható

Gázcsonk és szennyvíz az udvaron található, így a közművesítés előkészítve

A ház kiváló lehetőség azoknak, akik saját ízlésük szerint szeretnék felújítani és modernizálni a lakóteret.

Különleges melléképületek:
A telken több, ma már ritkaságnak számító, értékes melléképület található:

Száraz, kőboltozatos borospince, két helyiséggel (2× boltolt) – borászati, tárolási vagy hobbi célokra

Füstölő – hagyományos élelmiszerkészítéshez

Disznóól és tyúkol – gazdálkodásra, állattartásra alkalmas

Ezek az épületek nemcsak hangulatot és autentikus vidéki karaktert adnak a birtoknak, hanem valódi funkcionális értéket is képviselnek.

A telek adottságai:
A 2820 nm-es terület mérete és elhelyezkedése miatt kiválóan alkalmas:

gazdálkodásra

kertészkedésre

állattartásra

hobbi- vagy turisztikai célú fejlesztésekre

akár egy hangulatos vidéki vendégház kialakítására

A telek sokoldalúsága miatt az ingatlan remek választás befektetőknek, vidéki életre vágyóknak vagy azoknak, akik egy saját elképzelések szerint formálható ingatlant keresnek.

Családi ház részletei

Ár: 5 999 000 Ft
Méret: 72 négyzetméter
Azonosító: 11607376
Irodai azonosító: 351230
Telek: 2820 négyzetméter
Ingatlan állapota: Felújítandó
Jelleg: családi ház
Építőanyag: Kérdezzen rá a hirdetőtől »
Komfort fokozat: Fél komfort
Egész szobák: 4

Így keressen családi házat négy egyszerű lépésben. Csupán 2 perc, kötelezettségek nélkül!

Szűkítse a családi házak
listáját
Válassza ki a megfelelő
családi házat
Írjon a hirdetőnek
Várjon a visszahívásra