Eladó családi ház Mohács 54 990 000 Ft

Leírás

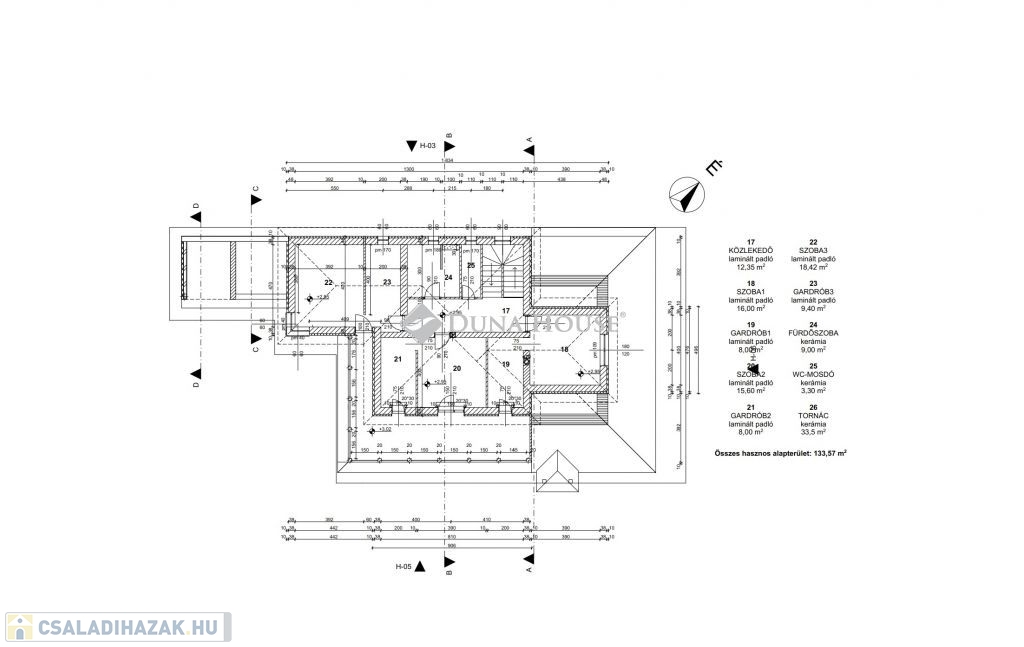
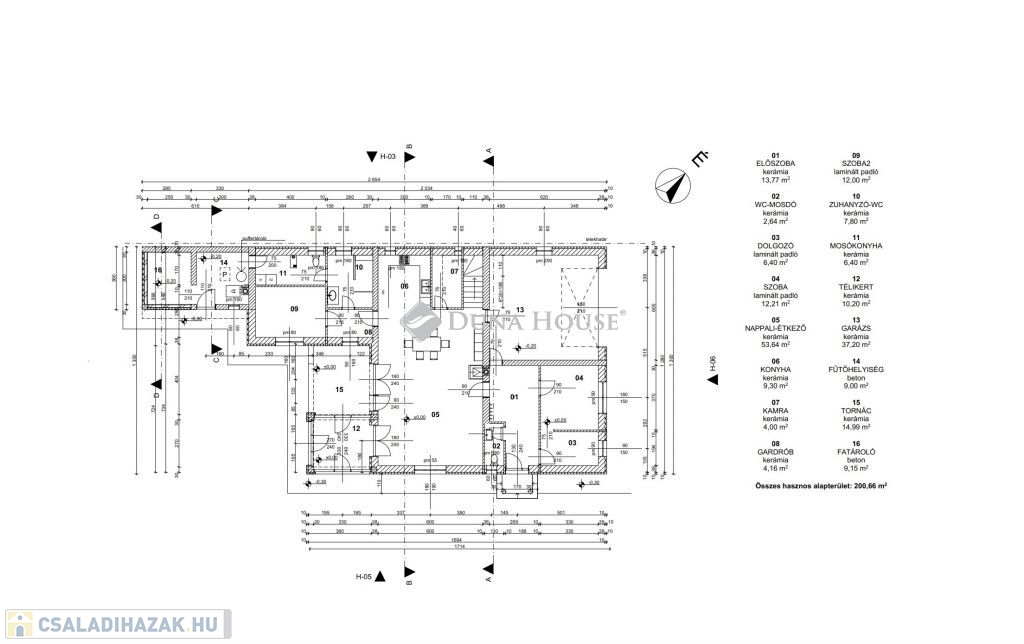
Félkész családi ház eladó Mohács egyik legszebb utcájában alakítsa saját elképzelése szerint! Mohács egyik legszebb utcájában a Táltos utcában kínálunk megvételre egy félkész állapotú családi házat, amely kiváló lehetőséget nyújt azok számára, akik saját igényeik szerint szeretnék befejezni és kialakítani jövőbeli otthonukat.Az ingatlan 880 m²-es telken helyezkedik el, a tervezett 333 m² alapterületű épület pedig tágas, jól alakítható tereket biztosít, így akár egy nagyobb család számára is ideális prémium otthon valósítható meg.A kivitelezés folytatásában teljes körű segítséget tudunk biztosítani, hiszen minden szükséges szakember rendelkezésre áll az építkezés befejezéséhez.Az építkezés főbb adatai38 cm-es Leiertherm tégla falazatMonolit födém mindkét szintenTerrán Danubia barna cserépfedésA telek teljes közműellátottsággal rendelkezik: villany gáz víz szennyvíz kábel TVAz ingatlan jelenlegi állapota nagy szabadságot ad a belső terek kialakításában, így minden részlet a leendő tulajdonos elképzelései szerint valósítható meg. Ha egy kiváló elhelyezkedésű ingatlant keres, ahol saját elképzelései szerint alakíthatja ki álmai otthonát, akkor ez a lehetőség Önre vár.Álmodja meg és valósítsa meg otthonát Mohács egyik legjobb utcájában, a Táltos utcában!

54990000 Ft

Referencia szám: HZ075744-NOK

Családi ház részletei

Ár: 54 990 000 Ft
Méret: 333 négyzetméter
Azonosító: 11613743
Irodai azonosító: HZ075744-5204265
Telek: 880 négyzetméter
Ingatlan állapota:
Jelleg: családi ház
Építőanyag: Tégla
Fűtés jellege: Egyedi
Fűtés módja: Gáz
Szintek száma: Földszintes
Egész szobák: 8

Térkép


Így keressen családi házat négy egyszerű lépésben. Csupán 2 perc, kötelezettségek nélkül!

Szűkítse a családi házak
listáját
Válassza ki a megfelelő
családi házat
Írjon a hirdetőnek
Várjon a visszahívásra