Eladó családi ház Mogyoród 98 500 000 Ft

Leírás

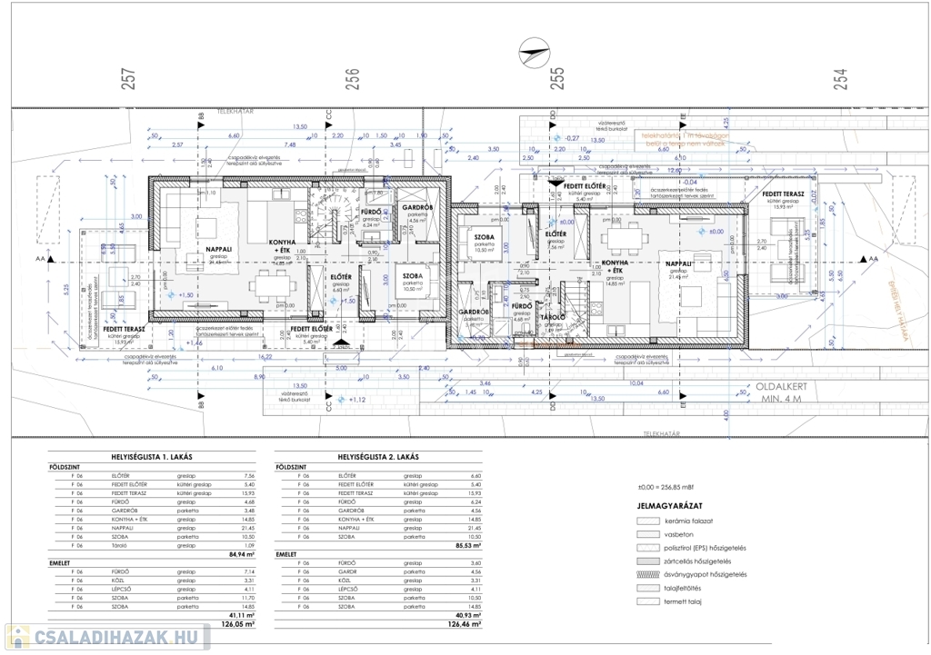
Új építésű ikerház felek eladók Mogyoródon, a Diófa utcában!

Mogyoród egyik legjobb részén, a Szent Jakab lakópark szomszédságában, 1100 m²-es telken kínálunk új építésű, kétszintes ikerházakat.

Az ingatlanok modern kialakításukkal, energiatakarékos megoldásaikkal és minőségi anyaghasználatukkal biztosítják a kényelmes és költséghatékony otthont.

Főbb jellemzők:
-Alapterület: Nettó 105,13 m²
-Szerkezet: 30-as Porotherm téglából építve, gerendás, béléstestes -
vasbeton födémmel
-Tető: Betoncserepes héjazat, korcolt lemezfedésű előtetőkkel
-Az ingatlanok dupla fallal érinkeznek, közötte 15cm-es szigeteléssel
-Első ingatlan telekterülete:324m2 98.500.000.- Ft.
-Hátsó ingatlan telekterülete:776m2 104.500.000.- Ft.

Energiatakarékosság:
-15 cm-es grafitos EPS szigetelés a homlokzaton
-15 cm grafitos zártcellás szigetelés a lábazaton
-Ásványgyapot szigetelések a vízszintes födémen (10 cm) és a
tetőszerkezet alatt (25 cm)
-Padló és hangszigetelés az alsó (15 cm) és az emeleti padlón (2 cm)

Nyílászárók:
-Háromrétegű üvegezéssel ellátott műanyag nyílászárók

Fűtés és melegvíz:
-Hőszivattyús rendszer padlófűtéssel, megújuló energiát hasznosítva

Választható műszaki tartalom:
-Burkolatok: 6.000 Ft/m²-ig
-Beltéri ajtók: 80.000 Ft/db-ig
-Fürdőkád: 60.000 Ft-ig
-Épített zuhanyzó
-WC: Falsík mögötti rendszerrel

Igény esetén magasabb kategóriájú opciók is elérhetők, az árkülönbség finanszírozásával.

További előnyök:
-Referenciák: A kivitelező az utcában már épített ingatlant, amely
megtekinthető referencia céljából.
-CSOK Plusz támogatás: A jogilag is új építésű ingatlanokra igénybe
vehető.
-Ingyenes hitelügyintézés: Bankfüggetlen hitelcentrumunk segít az
összes bank ajánlatának összehasonlításában, egyedi
kedvezményekkel.

Miért válassza ezt az otthont?
-Alacsony rezsiköltség a modern szigeteléseknek és megújuló
energiát hasznosító rendszereknek köszönhetően
-Minőségi alapanyagok és korszerű technológiák
-Kényelmes, családbarát környezet Mogyoród egyik legkedveltebb
részén

Amennyiben hirdetésünk felkeltette az érdeklődését, vagy további információra lenne szüksége, hívjon bizalommal!

Családi ház részletei

Ár: 98 500 000 Ft
Méret: 115 négyzetméter
Azonosító: 11609982
Irodai azonosító: 376969
Cím: Diófa utca
Telek: 776 négyzetméter
Ingatlan állapota: Kitűnő
Jelleg: ikerház
Építőanyag: Tégla
Fűtés jellege: Geotermikus
Fűtés módja: Hőszivattyú
Komfort fokozat: Dupla komfort
Kor: 1-5 éves
Szintek száma: 1 szint
Egész szobák: 4

Egyéb jellemzők

  • Csatorna
  • Garázs
  • Pince
  • Terasz

Térkép


Így keressen családi házat négy egyszerű lépésben. Csupán 2 perc, kötelezettségek nélkül!

Szűkítse a családi házak
listáját
Válassza ki a megfelelő
családi házat
Írjon a hirdetőnek
Várjon a visszahívásra