Eladó családi ház Mogyoród 91 900 000 Ft

Leírás

ÚJ ÉPÍTÉSŰ, ÖNÁLLÓ CSALÁDI HÁZ ELADÓ MOGYORÓD CSENDES, DOMBOLDALI RÉSZÉN!

MODERN MŰSZAKI TARTALOM, HŐSZIVATTYÚS FŰTÉS, PADLÓFŰTÉS, KLÍMA ÉS GYORS KAPCSOLAT BUDAPESTTEL.

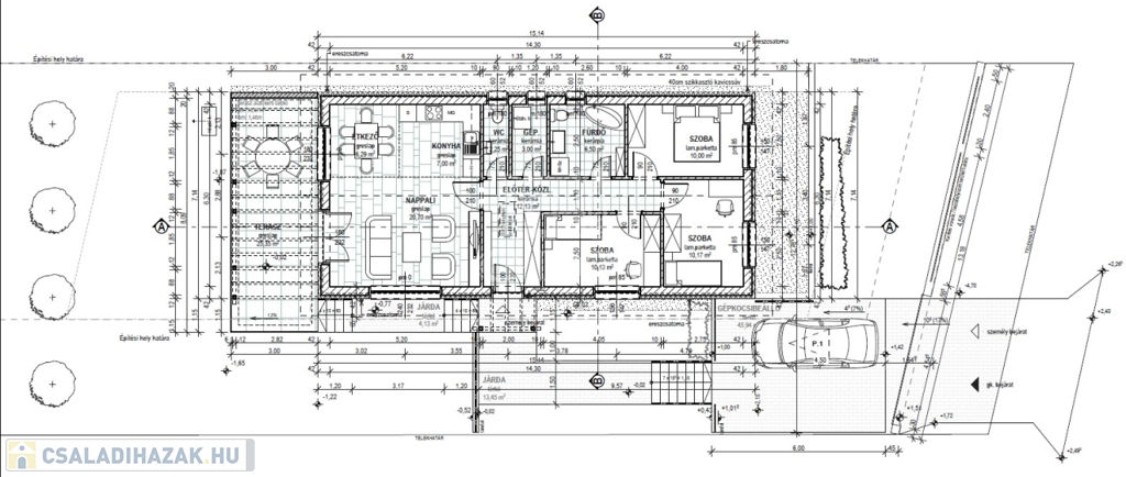
Megvételre kínálok Pest vármegyei Mogyoródon 461 nm-es telken, egy délnyugati fekvésű, nettó 88,17 nm-es, bruttó 113,52 nm-es, 3 szobás + amerikai konyhával ellátott, új építésű önálló családi házat.

Első osztályú anyagokból épülő, kulcsrakész családi ház, extra hőszigeteléssel és hőszivattyús fűtéssel. A ház Phorotherm téglából készül, 15 cm homlokzati és 30 cm födémszigeteléssel, betoncserép tetővel és háromrétegű üvegezésű, színes műanyag nyílászárókkal.

Padlófűtés, fürdőben törölközőszárítós radiátor, valamint nappaliban hűtő-fűtő klíma kerül beépítésre.

A burkolatok, szaniterek és belső ajtók meghatározott értékhatárig választhatók.

A ház riasztó előkészítéssel, kaputelefonnal, elektromos kiállásokkal, napelem- és autótöltő csatlakozási lehetőséggel készül. A telekhez kerítés, térkövezett terasz és beálló, valamint alap tereprendezés tartozik.

A vételár nem tartalmazza a lámpatesteket, függönyöket és a kertépítést.

Az ingatlant 2026 III. negyedévében kezdik el építeni.

​Településen belüli elhelyezkedés:

​Az ingatlan Mogyoród észak-keleti, domboldali részén fekszik. Ez a terület az utóbbi években jelentős fejlődésen ment keresztül, a korábban zártkerti vagy üdülőövezeti besorolású telkek nagy részét mára modern családi házakkal építették be. A környék csendes, kertvárosias jellegű, átmenő forgalomtól mentes.

​Közlekedési kapcsolatok:

​Autós közlekedés: Az M3-as autópálya és az M31-es gyorsút csomópontja néhány perc alatt elérhető, így Budapest központja forgalomtól függően 20-25 perc, a városhatár pedig 10-15 perc alatt megközelíthető.
Gödöllő városa szintén rövid idő alatt elérhető.

Tömegközlekedés: A településen áthaladó H8-as HÉV vonala közvetlen összeköttetést biztosít az Örs vezér terével. A legközelebbi állomás gépjárművel körülbelül 5-6 perc alatt érhető el, ahol P+R parkoló segíti az ingázókat.

​Helyi járatok: A Volánbusz helyközi járatai a település központját érintik, ahonnan csatlakozás biztosított Budapest vagy Gödöllő irányába.

Szolgáltatások és intézmények:

​A település központjában minden alapvető szolgáltatás megtalálható:

​Oktatás és nevelés: Bölcsőde, óvoda és általános iskola üzemel a faluban.

​Egészségügy: Háziorvosi rendelő és gyógyszertár biztosított a lakosok számára.

​Bevásárlás: A közelben helyi élelmiszerüzletek és pékség találhatók, míg a nagyobb bevásárlóközpontok (Fót, Dunakeszi, Gödöllő) autóval 10-15 perces távolságra vannak.

​Szabadidő és környezet:

​A környék kiemelkedő természeti adottságokkal rendelkezik, a közeli dombok kirándulásra és szabadtéri sportolásra alkalmasak. A település közvetlen közelében található a Hungaroring és az Aqua park, amelyek további kikapcsolódási lehetőségeket kínálnak.

INGYENES hitel tanácsadás! CSOK Ügy intézés!
BANKFÜGGETLEN hitelcentrumunk minden elérhető bank és hitelintézet ajánlatát versenyezteti az Ön kedvéért, ráadásul DÍJMENTESEN.
Önnek nincs más dolga, mint elbeszélgetni munkatársunkkal, aki a hallott információk alapján versenyre hívja a bankokat, hogy Ön hosszú távon is a legjobb konstrukciót kaphassa. A legjobb ajánlatokból végül Ön választhatja ki a nyertest.
Munkatársaink sokéves szakmai tapasztalattal várják Önt, előre egyeztetve akár a normál munkaidő után is.

Amennyiben hirdetésem felkeltette érdeklődését, várom hívását, akár hétvégén is! V.I.

Családi ház részletei

Ár: 91 900 000 Ft
Méret: 88 négyzetméter
Azonosító: 11603934
Irodai azonosító: 393335
Cím: Mogyoród kedvelt részén
Telek: 461 négyzetméter
Ingatlan állapota: Kitűnő
Jelleg: családi ház
Építőanyag: Tégla
Fűtés jellege: Geotermikus
Fűtés módja: Hőszivattyú
Komfort fokozat: Összkomfort
Kor: Új építésű
Szintek száma: Földszintes
Egész szobák: 4

Egyéb jellemzők

  • Csatorna
  • Garázs
  • Pince
  • Terasz

Térkép


Így keressen családi házat négy egyszerű lépésben. Csupán 2 perc, kötelezettségek nélkül!

Szűkítse a családi házak
listáját
Válassza ki a megfelelő
családi házat
Írjon a hirdetőnek
Várjon a visszahívásra