Eladó családi ház Mogyoród 79 990 000 Ft

Leírás

KÜLÖNLEGES LEHETŐSÉG MOGYORÓDON ! ! !

ÖNÁLLÓ CSALÁDI HÁZ 2 TERASSZAL ! ! !

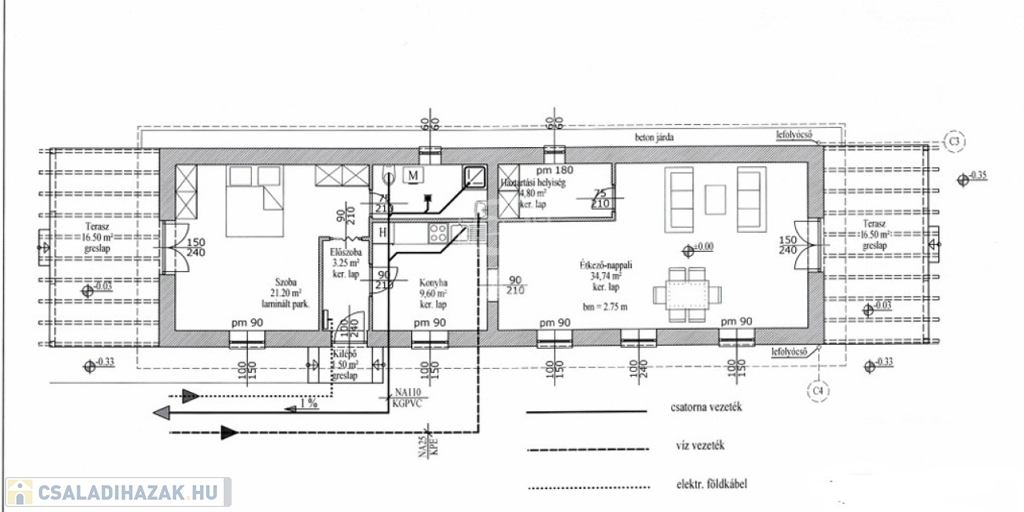
78,39 nm (EGY SZINTEN!) + 2(!) x 16,5 nm terasz kb. 370 nm-es telekrész.

A 2 TERASZ KÜLÖNLEGES ÉLETÉRZÉST BIZTOSÍT, HISZEN EGYIK KELETI, MÁSIK NYUGATI FEKVÉSŰ!
A reggeli napsugaraknál kávézhatunk és az esti lenyugvó nap fényénél akár borozhatunk is.

Eredeti tervek szerint is kérhető, de kérhető plusz 1 szobával, tehát 2 vagy 3 szobásként is, vagy beépített tetőtérrel! /Természetesen ez plusz költség/

Alapból fa födém, de kérhető vasbeton födémmel is (plusz költség).

A kivitelező több referánciával is rendelkezik, korábbi munkái, akár félkész, akár kulcsrakész állapotban megtekinthetőek.

KIVÁLÓ LÓKÁCIÓ:
- Autópálya felhajtó pár percre!
- Buszmegálló gyalog pár percre!
- HÉV megálló gyalog pár percre található!

HÍVJON A RÉSZLETEKÉRT, NE MARADJON LE RÓLA!

Tervezett átadás: 2026. június.
NEM A KIVITELEZŐTŐL FÜGG, Ő 6 HÓNAP ALATT MEGÉPÍTI!

A napelem illusztráció, feláras.

U.I.: A képek ugyanazon beruházó által készített hasonló ingatlanban készültek! Az alaprajz a valóságnak 100%-ban megfelelő.

Családi ház részletei

Ár: 79 990 000 Ft
Méret: 94 négyzetméter
Azonosító: 11564977
Irodai azonosító: 387294
Cím: Szadai út
Telek: 370 négyzetméter
Ingatlan állapota: Kitűnő
Jelleg: családi ház
Építőanyag: Tégla
Fűtés jellege: Cirkó
Fűtés módja: Gáz
Komfort fokozat: Összkomfort
Kor: Új építésű
Szintek száma: Földszintes
Egész szobák: 3

Egyéb jellemzők

  • Csatorna
  • Garázs
  • Pince
  • Terasz

Térkép


Így keressen családi házat négy egyszerű lépésben. Csupán 2 perc, kötelezettségek nélkül!

Szűkítse a családi házak
listáját
Válassza ki a megfelelő
családi házat
Írjon a hirdetőnek
Várjon a visszahívásra