Eladó családi ház Mogyoród 63 250 000 Ft

Leírás

Eladásra kínálok Mogyoród központi részén, egy önálló csaladi házat.
A ház 1940es években mogyoródi kőből épült, így rendkívül stabil szerkezettel rendelkezik, majd téglából 1960-ban hozzá építettek. Tető cseréppel borított.
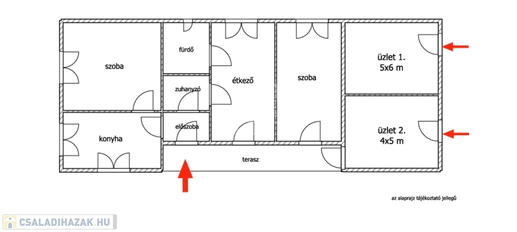
Az utcafronti részen jelenleg 2 külön bejaratú üzlethelyiség található, melyeknek közös mosdójuk van.
A ház udvar felöli bejarattal rendelkező, hátsó része gyakorlatilag 2 szoba, konyha, előszoba, fürdőszoba, plusz külön zuhanyzó, kamra es egy fedett terasz.
A lakóház utan az udvarban tároló es garazs is van.
Rendezett, 510 nm nagyságú telek!
Átalakítási tippek:
- ház alkalmas 5 szoba kialakítására is, avagy az étkezőt egybevonva az egyik szobával, és az üzleteket szobává alakítva, egy modern 3 hálószoba, plusz nappalis elosztast is ki lehet alakítani!
- Ezen túl még 2 kényelmes lakás is kialakitható, 2 külön bejárattal.
Egyszóval rengeteg lehetőséget, és elérhető aron nyujt ez a nagyszerű ház!
Hivjon bizalommal, tekintsük meg együtt!

Családi ház részletei

Ár: 63 250 000 Ft
Méret: 110 négyzetméter
Azonosító: 11591500
Irodai azonosító: 391468
Cím: Gödöllői út
Telek: 509 négyzetméter
Ingatlan állapota: Átlagos
Jelleg: családi ház
Építőanyag: Tégla
Fűtés jellege: Cirkó
Fűtés módja: Gáz
Komfort fokozat: Összkomfort
Kor: 50 évesnél régebbi
Szintek száma: Földszintes
Egész szobák: 4

Egyéb jellemzők

  • Csatorna
  • Garázs
  • Pince
  • Terasz

Térkép


Így keressen családi házat négy egyszerű lépésben. Csupán 2 perc, kötelezettségek nélkül!

Szűkítse a családi házak
listáját
Válassza ki a megfelelő
családi házat
Írjon a hirdetőnek
Várjon a visszahívásra