Eladó családi ház Mogyoród 114 900 000 Ft

Leírás

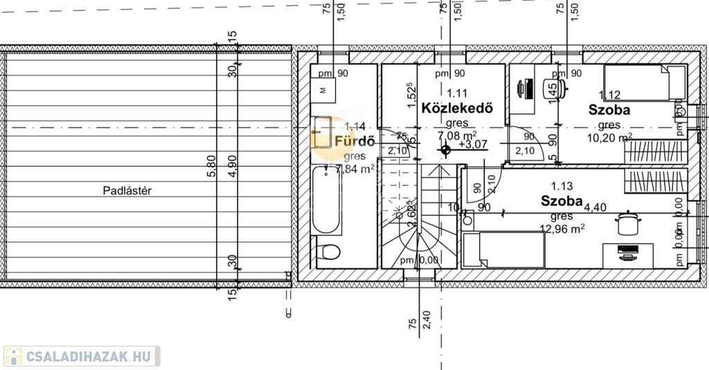
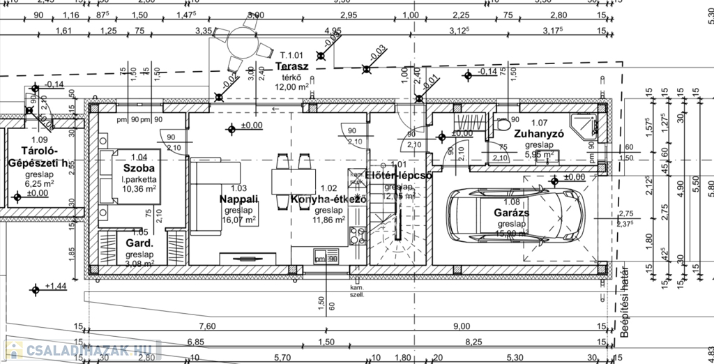
Eladásra kínálok Mogyoródon kertvárosi környezetben, 2026. év augusztusi átadással egy ikerház felet, amely 125 nm nagyságú, és 115 Millió forintba kerül, kulcsrakész állapotban.
Jellemzője, a minőségi alapanyag, átgondolt terv!
- 30 centiméter vastagságú Porotherm tartó téglafalazattal, a szintek között monolit födémmel, vagy Porotherm födémmel készül, a gépészeti rész szerinti területeken a födémbe tekert csővezetékekkel. A válaszfalak pedig 10 centiméter vastagságú téglából lesznek.
- Az emeleti födém szeglemezes tartószerkezettel készül, amely 25 cm hőszigetelést kap, valamint a mennyezeti tartószerkezeten elhelyezett álmennyezeti gipszkarton rendszer kerül kialakításra a gépészeti rész szerinti területeken integrált mennyezethűtéssel. A padlásterek megközelítésére padlásfeljáró beépítésre kerül.
- A földszinten a vízszigetelés fölé 12 cm lépésálló hőszigetelés kerül, melyre fóliafedést terítünk, erre pedig a burkolatok alá 8 centiméter vastagságban úsztatott esztrich beton készül, benne a padlófűtési csővezetékekkel.
- A homlokzaton 15 cm vastagságú EPS80, a lábazaton 10 cm vastagságú XPS polisztirol alapú homlokzati hőszigetelő rendszer készül 2mm szemcsenagyságú dörzsölt vakolattal törtfehér kivitelben. A lábazat igazodik a cserép színéhez.
- A tető, Terrán barna színű cserépfedést kap. Az ereszcsatornák és az egyéb bádogozások alumíniumból készülnek, igazodva a cserép színéhez.
- A külső műanyag nyílászárók, a (a jelenlegi energetikai szabályozásnak megfelelően) 6 légkamrás, háromrétegű hőszigetelő üvegezéssel, argon gázzal töltve, kerülnek kialakításra, bukó-nyíló kivitelben.
-A padlókra a fürdőkben, konyhában, étkezőben, mellékhelyiségekben, kamrában, előszobában, közlekedőben, lépcsőházban, igény szerint választható, hálósan rakott mázas kerámialap, vagy greslap kerül lerakásra. Jelenleg, még választható, burkolatok!
-Nappaliban, hálószobákban, gardróbban közepes kopásállóságú, I.o. laminált parketta választható, 4 centiméter magas szegélyléccel.
-A Fűtést és a használati melegvíz előállítását, valamint a hűtést hőszivattyú végzi. A vezérlés nappali és szobánkénti digitális termosztáttal, és mini hőközpont kialakításával történik.
Az emeleten és a földszinten padlófűtés és mennyezethűtés (vizes és nem lakó helyiségekben, valamint a konyha fölött nincs hűtés) kerül kiépítésre. A cirkulációs rendszer kiépítését az alapár nem tartalmazza. A WC berendezések falsík alatti tartállyal készülnek.

Egyéb információért hívjon bizalommal!

Családi ház részletei

Ár: 114 900 000 Ft
Méret: 125 négyzetméter
Azonosító: 11568052
Irodai azonosító: 387769
Cím: Nagyhomoki út
Telek: 500 négyzetméter
Ingatlan állapota: Kitűnő
Jelleg: ikerház
Építőanyag: Tégla
Fűtés jellege: Geotermikus
Fűtés módja: Hőszivattyú
Komfort fokozat: Összkomfort
Kor: Új építésű
Szintek száma: 1 szint
Egész szobák: 4

Egyéb jellemzők

  • Csatorna
  • Garázs
  • Pince
  • Terasz

Térkép


Így keressen családi házat négy egyszerű lépésben. Csupán 2 perc, kötelezettségek nélkül!

Szűkítse a családi házak
listáját
Válassza ki a megfelelő
családi házat
Írjon a hirdetőnek
Várjon a visszahívásra