Eladó családi ház Mogyoród 114 900 000 Ft

Leírás

CSEND, NYUGALOM, MADÁRCSICSERGÉS...

Mogyoród közkedvelt részén REMEK ÁR/ÉRTÉK ARÁNYÚ...

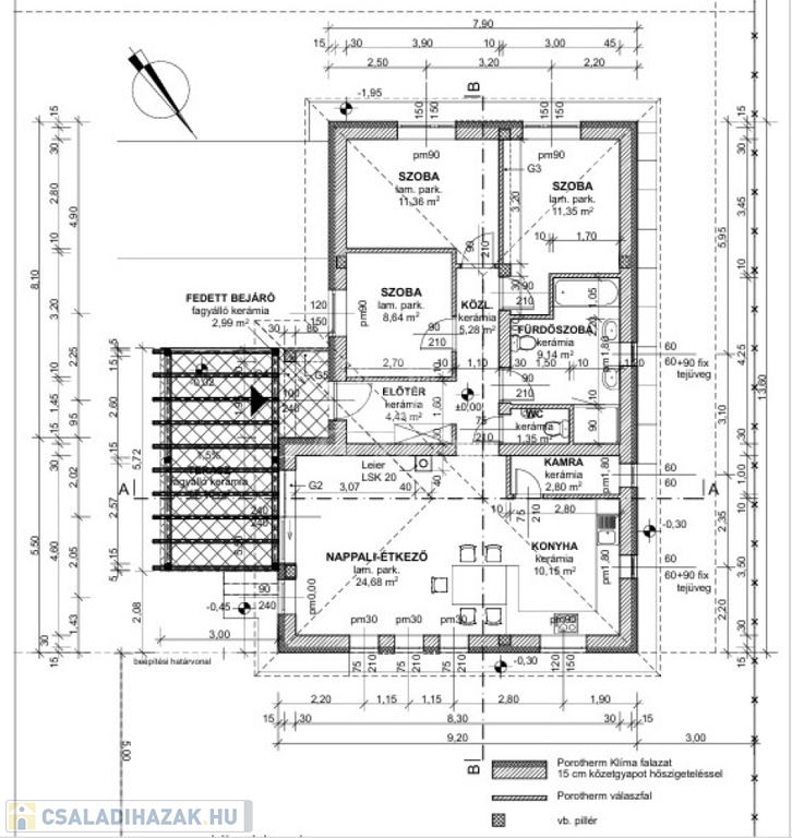
ÖNÁLLÓ 4 SZOBÁS CSALÁDI HÁZ ELADÓ !

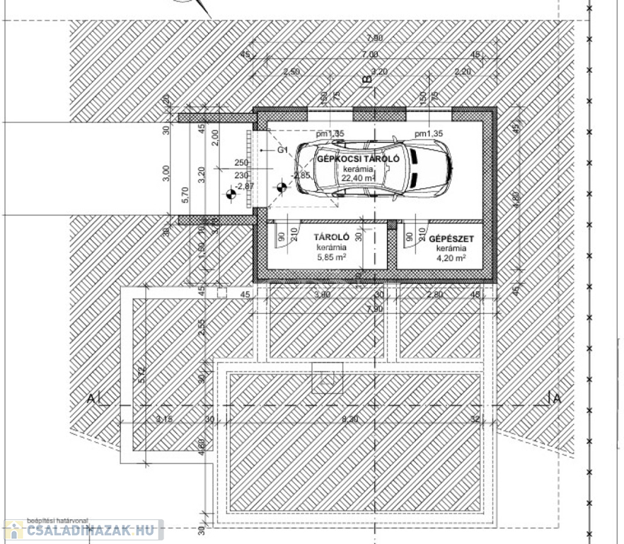
BRUTTÓ 142 nm, 3 KÜLÖNNYÍLÓ SZOBA + amerikai konyhás nappali, terasz, garázs...

A ház 30-as xtherm téglából épült, szigetelése 15cm, Bramac tetőcserép fedéssel.
HŐSZIVATTYÚs fűtési rendszerrel, valamint KLÍMÁval kerül átadásra.

Tervezett átadás: 2026. DECEMBER 31.
NEM A KIVITELEZŐTŐL FÜGG, Ő 6 HÓNAP ALATT MEGÉPÍTI!

HITELEZHETŐ, CSOK KÉPES ÉS RUGALMASAN MEGTEKINTHETŐ!

Családi ház részletei

Ár: 114 900 000 Ft
Méret: 122 négyzetméter
Azonosító: 11565320
Irodai azonosító: 387295
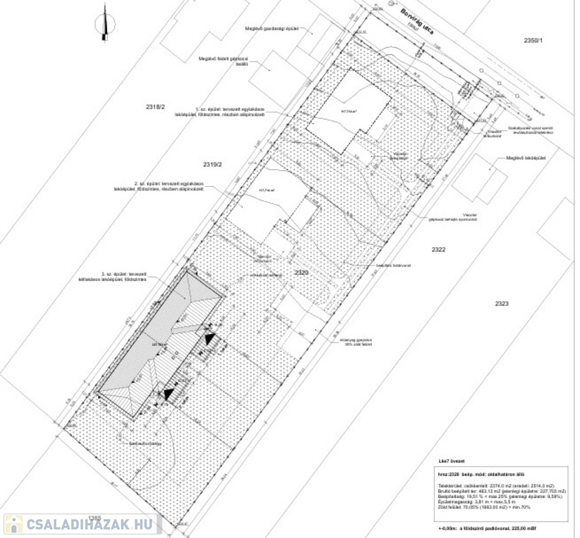
Cím: Borvirág utca
Telek: 606 négyzetméter
Ingatlan állapota: Kitűnő
Jelleg: ikerház
Építőanyag: Tégla
Fűtés jellege: Geotermikus
Fűtés módja: Hőszivattyú
Komfort fokozat: Összkomfort
Kor: Új építésű
Szintek száma: 1 szint
Egész szobák: 4

Egyéb jellemzők

  • Csatorna
  • Garázs
  • Pince
  • Terasz

Térkép


Így keressen családi házat négy egyszerű lépésben. Csupán 2 perc, kötelezettségek nélkül!

Szűkítse a családi házak
listáját
Válassza ki a megfelelő
családi házat
Írjon a hirdetőnek
Várjon a visszahívásra