Eladó családi ház Mogyoród 109 900 000 Ft

Leírás

Újépítésű ikerház ELADÓ !



Mogyoród kertvárosi, mégis kiváló közlekedési lehetőségekkel rendelkező részén.
Az ingatlantól pár perc alatt elérhető az M3 autópálya, azonban attól egy domb választja el, így a zajterhelés a területen nem jelentkezik. A Mogyoród HÉV állomás 600 méterre található, így tömegközlekedéssel a belváros akár 33 perc alatt elérhető.

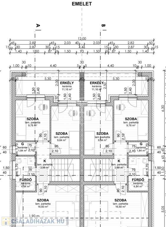
Két szintes ikerházi lakás kerül kialakításra, tágas nappalival, konyhával, fürdöszobával, 4 hálószobával és gépészeti helyiséggel. Ehhez tartozik egy 13.95nm-es terasz és egy 11.16nm-es erkély.

A fűtés és melegvízellátás korszerű hőszivattyús rendszerrel kerül kiépítésre.

Opcionális klímaberendezés és napelemrendszer választható. A házban kialakításra kerül az ezekhez szükséges védőcsövezés és előkészítés.

Szaniterek és burkolatok külső beszállító kínálatából választhatóak.

Többszáz referenciával rendelkező beruházó. A Vevők egyéni igényeinek kiszolgálására kialakított üzleti struktúra.

CSOK + Igénybe vehető!

Amennyiben felkeltette az érdeklődését keressen Bizalommal a hét bármely napján!

Családi ház részletei

Ár: 109 900 000 Ft
Méret: 110 négyzetméter
Azonosító: 11561208
Irodai azonosító: 386694
Cím: Mogyoród frekventált részén
Telek: 300 négyzetméter
Ingatlan állapota: Kitűnő
Jelleg: ikerház
Építőanyag: Tégla
Fűtés jellege: Geotermikus
Fűtés módja: Hőszivattyú
Komfort fokozat: Összkomfort
Kor: 1-5 éves
Szintek száma: 1 szint
Egész szobák: 5

Egyéb jellemzők

  • Csatorna
  • Garázs
  • Pince
  • Terasz

Térkép


Így keressen családi házat négy egyszerű lépésben. Csupán 2 perc, kötelezettségek nélkül!

Szűkítse a családi házak
listáját
Válassza ki a megfelelő
családi házat
Írjon a hirdetőnek
Várjon a visszahívásra