Eladó családi ház Miskolc 65 000 000 Ft

Leírás

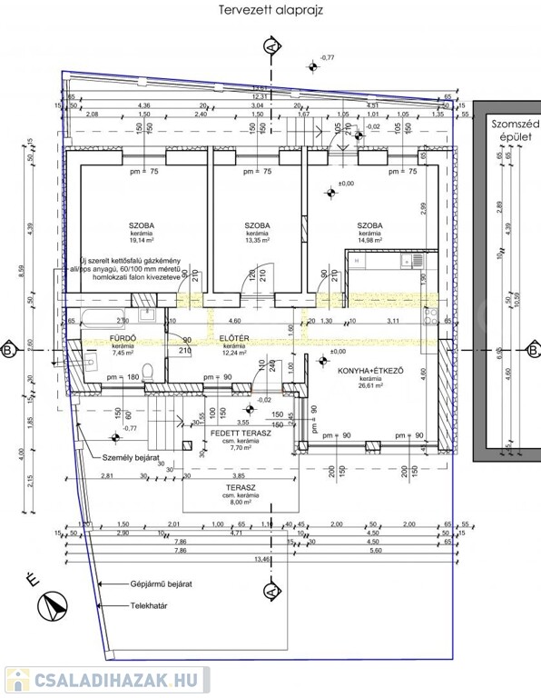
Miskolc, Árpád úton, új építésű, 3 szobás, 109 m²-es családi ház, 248 m²-es telekkel eladó!
A ház egy meglévő épületből lesz teljesmértékben átépítve, ahogy a tervrajzokon látható.

Az ár nem tartalmazza a konyhaszekrényt illetve a lámpatesteket, de igény esetén egyedi megállapodással ezek is megvalósíthatók.
A tervek szerinti kivitelezést kisebb mértékben módosítható.
Várható befejezés a 40%-os vételár megfizetését követően kb. 6 hónap.

Helyiség lista:
-Szoba
-Szoba
-Szoba
-Fürdő
-Előtér
-Konyha +étkező
-Fedett terasz
-Terasz

Műszaki leírás:
A meglévő épület bővítése a hátsókert felé történik, az bővített épület is nyeregtetős kialakítású lesz. Az épület környezetbe való illeszkedése nem változik.
Alkalmazott új szerkezetek, szerkezeti kialakítás:
Alapozás:
Az épület alapozása sávalapozással készült. Lábazat faragott mészkő, bővítés monolit beton.
Szigetelés:
Meglévő megmaradó, új részen sbs. bitumenes lemez.
Teherhordó szerkezet:
Meglévő épületnél a falazott kőalapra km. tégla falszerkezet épült, szerkezeti mozgásra falrepedés nem észlelhető.

Új falszerkezet Porotherm 30 cm vastagságú falazó elemből készül, rendszer ragasztójával rakva. Külső oldalra mind a régi mind pedig az új falazatra 15 cm hőszigetelés és vékonyvakolat kerül. A homlokzati nyílásáthidalások Porotherm elemmagas áthidalóval. Szerkezeti változtatás a statikus tervező által
előírtak szerint.
Válaszfalak:
Szerelt gipszkarton vagy válaszfaltégla szerkezetű. Nyílásáthidalások: A homlokzati nyílásáthidalások Porotherm elemmagas áthidalóval.

Nyílászárók: Korszerű, műanyag hőszigetelt típus szerkezetek, hőszigetelt üvegezéssel.
Födémszerkezet, új látszó fa gerendás födém. A bővítésnél monolit vb. födém. Koszorú a falazat tetején hagyományos kialakításban készül, vasbeton anyagú 25/30 cm keresztmetszetű, külső oldali hőszigeteléssel.
Hőszigetelés, a fal fokozott hővédelme miatt 15 cm EPS anyagú hőszigetelés kerül beépítésre a külső oldalon. A szarufák közé és alá összesen 25 cm hőszigetelés kerül eltolásban rakva.
Fedélszerkezet, fa tetőszerkezet készül. Szerkezete: 12°-os és 37°-os. Cserép héjazat alá 90 cm tengelyosztású szaruállások kerülnek. A talpszelemen tőcsavarokkal a koszorúba lefogatott.
Héjazat, antracit színű cserépfedés, alátéthéjazattal készül, a tetőléc 5/5 cm anyagú.

Fűtés: hőszivattyúval szabályozott padló és/vagy radiátor fűtés.
Meleg-víz: hőszivattyú által előállítva tartályos rendszer, mely későbbiekben megújuló energia csatlakozással gazdaságosan üzemeltethető.
Főzés: villany /gáztűzhely.

Közlekedés:
Az ingatlan autóval közvetlenül megközelíthető, parkolás a telken belül.
Tömegközlekedés megállói 0,5 perc sétára találhatóak.

Családi ház részletei

Ár: 65 000 000 Ft
Méret: 109 négyzetméter
Azonosító: 11406566
Irodai azonosító: 112535
Cím: Miskolc
Telek: 248 négyzetméter
Ingatlan állapota: Átlagos
Jelleg: családi ház
Építőanyag: Kérdezzen rá a hirdetőtől »
Fűtés jellege: Cirkó
Kor: Új építésű
Egész szobák: 3

Egyéb jellemzők

  • Terasz

Így keressen családi házat négy egyszerű lépésben. Csupán 2 perc, kötelezettségek nélkül!

Szűkítse a családi házak
listáját
Válassza ki a megfelelő
családi házat
Írjon a hirdetőnek
Várjon a visszahívásra