Eladó családi ház Mikepércs 229 000 000 Ft

Leírás

Debrecen belvárosától 8 km - re, Mikepércs főutcáján, a Debrecen felőli részén eladó, egy 2020 - ban teljeskörűen felújított, illetve megépített önálló " A " energetikai besorolású családi ház
A 13 kw napelem konkrétran az egyész ingatlan villamosellátását biztosítja, éves szaldós elszámolású, nulla költséggel üzemeltethető minden.
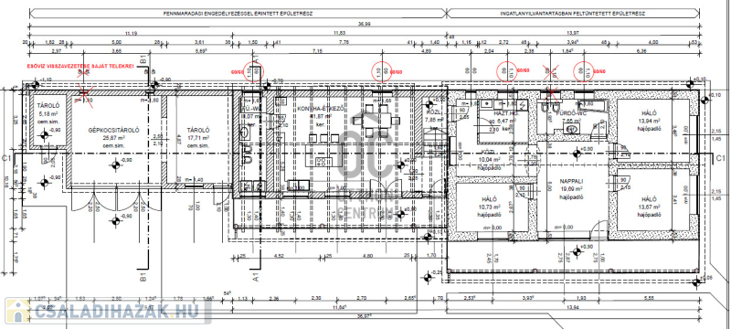
A lakóingatlant 2 részre bontanám :
Az első rész : vízszigetelt, komoly beton alapra, 45 cm - es korszerű vályogfalból épített lakóegység, amely falazata kapott + 5 cm kőzetgyapot szigetelést + üvegszállal kevert nemes vakolatot, a födém 10 cm therwoolinnal szigetelve + a tetőszerkezet : 18 cm-es szigetelt szendvicspanelből készült , egyszóval, fullos a szigetelése, télen jó meleg, nyáron jó hűvös ez a lakórész.
A másik rész : beton alapra tégla falazat került, ez is 5 cm - es kőzetgyapottal lett szigetelve, és szintén üvegszállal kevert nemes vakolatottal lett szinezve. Ebbe a részbe klíma lett telepítve.
A két rész természetesen egybe van építve, csak az eltérő falazata miatt akartam különbontani. ( alaprajzot csatoltam )
Amúgy a két egységet minimális átalakítással két külön lakásként is lehet használni.
A telek : 1529 m2, ezen a lakóingatlan : 210 m2, + 4 autó elhelyezésére alkalmas garázsok, és egy tároló található .
A kertben kialakításra került egy játszókert főzőrésszel, kerti tó, illetve udvarrész gyümölcsfákkal.
A ház helyiségei : 60 m2 - es konyha - étkező, nappali, 3 szoba, 2 fürdőszoba wc - vel , háztartásihelyiség, terasz.
Fűtése : minden helyiségekben : elektromos padlófűtés, 1 szobában : radiátor
Műszaki tartalom : 3 rtg hő és hangszigetelt műanyag nyílászárók elektromos aluredőnnyel, szúnyoghalóval szerelve, egyedi beltéri ajtók, minőségi burkolatok, a vételár részét képezik a függönykarnisok, függönyök, lámpák.
A bútorzat, és a gépek megegyezés tárgyát képezik, ha okés, maradhat.
Az ingatlanban minden is új, a mai kornak megfelelő anyagok lettek beépítve.
Még írhatnék róla, de inkább szóban a többit.
Az ingatlan természetesen család lakhatására kitünő opció, de más funkcióra is hasznosítható Pl : panzió, és / vagy vendéglátóegység, akár étterem, kifőzde, pizzázó, illetve a szerelő aknás dupla garázs, amely hűtő - fűtő légkondival , wc - vel, melegvizes kézmosóval felszerelt, akár szerelőműhelynek is alkalmas, de még mellette lévő garázs is jó lehet e célra.
CSERE INGATLAN IS ÉRDEKEL : KESZTHELYTŐL - SZIGLIGETIG , PANORÁMÁS CSALÁDI HÁZ ÉRTÉKEGYEZTETÉSSEL, MAX EDDIG AZ ÉRTÉKHATÁIG.
Ha felkeltettem az érdeklődését, kérem hívjon bizalommal.

Családi ház részletei

Ár: 229 000 000 Ft
Méret: 210 négyzetméter
Azonosító: 11494544
Telek: 1529 négyzetméter
Ingatlan állapota: Átlagos
Jelleg: családi ház
Építőanyag: Kérdezzen rá a hirdetőtől »
Egész szobák: 4

Egyéb jellemzők

  • Csatorna
  • Garázs
  • Kábel TV
  • Melléképület
  • Parketta
  • Pince
  • Terasz

Így keressen családi házat négy egyszerű lépésben. Csupán 2 perc, kötelezettségek nélkül!

Szűkítse a családi házak
listáját
Válassza ki a megfelelő
családi házat
Írjon a hirdetőnek
Várjon a visszahívásra