Eladó családi ház Mende 127 900 000 Ft

Leírás

EGYEDI LEHETŐSÉG MENDÉN – CSAK NÉHÁNY PERCNYIRE A MEGÁLMODOTT OTTHONÁTÓL!

Prémium műszaki tartalom • Modern otthon klasszikus stílusban.

Fedezze fel ezt a káprázatos új építésű ikerházat Mende csendes Rózsadombján, egy népszerű és zöld környezetben, ahol már csak a jobb oldali lakás elérhető!

Ez az ingatlan valóban különleges, hiszen nem a tipikus új építésű házak közé tartozik – kiemelkedő műszaki tartalma, felszereltsége és kivitelezési minősége messze a hagyományos kínálat fölé emeli. Egy otthon, amely egyedülálló komfortot és családi ház érzetet biztosít.
Jellemzők:

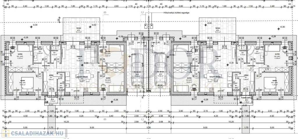
Hasznos nettó lakótér: 93 m²

Saját garázs: 17 m² - gépészeti helyiséggel

Terasz: 17 m² pergolával

Telek: 1000 m² saroktelek, 486 m² privát kert

Maximális privát szféra: Nincs közös kert vagy egymás előtti parkolás

Térkialakítás: Átgondolt, élhető, fényárban úszó amerikai konyhás nappali, 4 külön nyíló hálószoba, fürdőszoba káddal és WC-vel, plusz egy külön WC és háztartási helyiség


Ez az elrendezés tökéletes választás családok számára, és ideális az otthoni munkavégzéshez is.

PRÉMIUM MŰSZAKI TARTALOM – RITKASÁG A KÖRNYÉKEN
Az ingatlan műszaki megoldásai messze túllépnek az átlagos új építésű házak szintjén:

Beton sávalap és masszív Viablokk 30 cm főfalazat

15 cm grafitos homlokzati hőszigetelés a maximális energiahatékonyságért

Háromrétegű üvegezésű, kiváló hő- és hangszigetelő nyílászárók

Elektromos alumínium redőnyök a kényelmes árnyékolásért

Panasonic Split 7 kW Aquarea hőszivattyús rendszer és padlófűtés

Inverteres klíma a nappaliban a nyári hűvösért

Bővíthető napelemes rendszer (4 kWp) energiatárolóval

Hőszigetelt, szekcionált garázskapu Hörmann motorral

Modern, energiahatékony megoldások, amelyek hosszú távon gazdaságos fenntartást biztosítanak.


Ön saját ízlése szerint formálhatja az otthont, hiszen a burkolatok, szaniterek és beltéri ajtók a megadott keretösszegig választhatók – így egyedi, kompromisszumok nélküli otthonra tehet szert.

KIVÁLÓ ELHELYEZKEDÉS ÉS KÖZELSÉG MINDENHEZ:

A környék ideális az aktív családi élethez: óvoda, iskola, bevásárlási lehetőségek, orvosi ellátás és sportolási lehetőségek mind a közelben találhatók. Gyors és kényelmes közlekedés a belváros felé busz- és vasúti kapcsolatokkal. Az M0 autópálya mindössze 15 perc alatt elérhető.

Várható átadás: 2026. II. negyedév vége

Finanszírozás: 3%-os Otthon Start hitelre alkalmas, díjmentes hitelügyintézés és CSOK Plusz tanácsadás.

Ez az ingatlan tökéletes választás mindazok számára, akik új építésű otthont keresnek, a műszaki minőségre helyezik a hangsúlyt, és szeretnék élvezni a kertvárosi nyugalmat. Ne hagyja ki az utolsó elérhető lakás lehetőségét – ez a gyönyörű ingatlan gyorsan gazdára talál!

Családi ház részletei

Ár: 127 900 000 Ft
Méret: 93 négyzetméter
Azonosító: 11613198
Irodai azonosító: 351910
Telek: 486 négyzetméter
Ingatlan állapota: Kitűnő
Jelleg: ikerház
Építőanyag: YTONG
Komfort fokozat: Összkomfort
Kor: Új építésű
Egész szobák: 5

Egyéb jellemzők

  • Garázs
  • Terasz

Így keressen családi házat négy egyszerű lépésben. Csupán 2 perc, kötelezettségek nélkül!

Szűkítse a családi házak
listáját
Válassza ki a megfelelő
családi házat
Írjon a hirdetőnek
Várjon a visszahívásra