Eladó családi ház Mende 119 900 000 Ft

Leírás

Eladó egy önálló családi ház Mende, Pusztaszentistván legszebb részén, lenyűgöző zöldövezetben, csendes utcában.

Az épület a 90-es években beton alapra, tégla falazattal épült, külső szigeteléssel ellátott, betoncserép tetőzettel rendelkezik (110 nm). A parkosított kertben (885 nm) medence, a kert végében kutya kennel, tárolók és baromfi tartásra kialakított alkalmas udvarrész is található a málna, eper és veteményes kert mellett. Az előkertben egy fedett autóbeálló valamint még egy gépkocsi beálló is található.
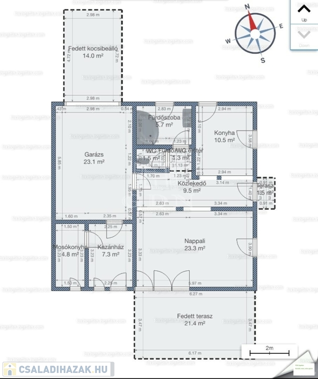
Az ingatlanba lépve az egy légtérben található közlekedő, konyha-étkező, nappali részre érkezünk. Innen nyílik egy sarokkádas fürdőszoba, egy mellékhelyiség, a lépcsőház az emeletre, illetve a házban lévő fűtött garázs felőli bejárat. A nagyméretű műanyag ablakoknak köszönhetően az egész élettér világos és barátságos. A nappaliból egy fedett terasz biztosítja a kertkapcsolatot. Az emeleti szinten két félszoba, egy fürdő w.c.-vel, valamint egy erkélyes hálószoba kapott helyet, kilátással a Gödöllői dombságra. A garázson keresztül érhető el a mosókonyha és kazánház ahonnan szintén kiléphetünk a kertbe, valamint a nagyméretű spájz is.
Az épület fűtését radiátoron keresztül gázkazán, elektromos kazán biztosítja, valamint a nappaliban található gázkandalló.
Az ár tartalmazza a teljes, igényes belső berendezést valamint a kerthez tartozó összes berendezést!!!
Mende település a 31-es főút mentén található az agglomerációban, Budapest határától 15 km-re a központtól 35 km-re. Csendes, barátságos kisváros 4250 fős lélekszámmal. Megközelíthető elővárosi vasúttal (Kelti pu) és busszal (Stadion busz pu) is. Településen belül helyi járat üzemel. Közelben bölcsőde, óvoda található.
Ez az a hely, ahol az őzek, nyulak, fácánok napi vendégek ahol a csend és nyugalom nem csak egy hangzatos szólam.

Amennyiben valódi nyugalomra vágyik itt megtalálja.

Családi ház részletei

Ár: 119 900 000 Ft
Méret: 110 négyzetméter
Azonosító: 11606438
Irodai azonosító: 393780
Cím: Gárdonyi Géza utca
Telek: 885 négyzetméter
Ingatlan állapota: Kitűnő
Jelleg: családi ház
Építőanyag: Tégla
Fűtés jellege: Cirkó
Fűtés módja: Gáz
Komfort fokozat: Dupla komfort
Kor: 21-50 éves
Szintek száma: 1 szint
Egész szobák: 4

Egyéb jellemzők

  • Csatorna
  • Garázs
  • Pince
  • Terasz

Térkép


Így keressen családi házat négy egyszerű lépésben. Csupán 2 perc, kötelezettségek nélkül!

Szűkítse a családi házak
listáját
Válassza ki a megfelelő
családi házat
Írjon a hirdetőnek
Várjon a visszahívásra