Eladó családi ház Martinka 74 900 000 Ft

Leírás

Mûszaki tartalom:

Nyílászárók
belsõ nyílászárók: dekorfóliás ajtók, választható színben, bruttó 70.000Ft/db
homlokzati nyílászárók: mûanyag erkélyajtók és ablakok (5 légkamrás tokozat 3 rétegû üvegezéssel),
nyíló, illetve bukó-nyíló, vasalattal, redõnytokos kiépítésben,
alumínium redõnyláb és tokozat, színezett mûanyag redõnynyelv,
mûanyag ablakpárkány
lakásbejárat nyílászárók: acéltokos biztonsági ajtó

Burkolatok
kerámia: Bruttó 6.000Ft/M2
laminált: Bruttó 3.000Ft/M2
szobákban: laminált parketta, szegõléccel
fürdõszobában: kerámia padló és csempeburkolat 2,1 méter magasságig körben
konyhában: kerámia padló és csempeburkolat (burkolatmagasság a konyhapultnál az alsó
és felsõ elemek között 60 cm)
WC: kerámia padló és csempeburkolat 2,1 méter magasságig körben
elõtérben: kerámia padlóburkolat lábazattal
közös helyiségekben: kerámia padlóburkolat lábazattal

Vizes helyiségek
Fürdõszoba:
mosdók
Grohe, HansGrohe, Wellis mosdó, mosogató csaptelep
fürdõkád vagy zuhanyzó
Grohe, HansGrohe csaptelepek+zuhanyszett:

WC:
kézmosó (külön wc esetén)
Wc kagyló, (fali függesztett)
Geberit/ vagy Grohe basic beépített wc tartály

Konyha
Elektromos berendezések (fõzõlap, sütõ, egyéb) beszerelési lehetõségéhez a bekötési és csatlakozási pontokat biztosítjuk. Konyhabútor, elõszobabútor és az elektromos berendezések a lakás vételárába nem tartoznak bele.

Elektromos berendezések
A lakások külön-külön kapják az energiát. A fogyasztásmérõk az épületen belül kerülnek elhelyezésre.
Minden lakás külön mérõórával rendelkezik.
A lakások villamos felszereltsége megfelel a szabványban elõírt igényszintnek. A szobákban dugaszolóaljzat van, az alapár- Schneider vagy azonos minõségû- típust tartalmaz, fürdõszobában mosógép csatlakozó, konyhában villanytûzhelynek, konyhai gépeknek dugalj kerül kiépítésre.

Az épületben egységes és korszerû gyengeáramú hálózati elõkészítés (alapcsövezés) kerül kiépítésre, amely magában foglalja a

Családi ház részletei

Ár: 74 900 000 Ft
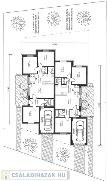
Méret: 97 négyzetméter
Azonosító: 11493905
Irodai azonosító: 17733
Cím: Martinkán 97m2-es ikerház 400m2-es telekkel garázzsal eladó!
Telek: 400 négyzetméter
Ingatlan állapota: Átlagos
Jelleg: ikerház
Építőanyag: Kérdezzen rá a hirdetőtől »
Komfort fokozat: Összkomfort
Szintek száma: Földszintes
Egész szobák: 4

Így keressen családi házat négy egyszerű lépésben. Csupán 2 perc, kötelezettségek nélkül!

Szűkítse a családi házak
listáját
Válassza ki a megfelelő
családi házat
Írjon a hirdetőnek
Várjon a visszahívásra