Eladó családi ház Leányfalu 106 612 800 Ft

Leírás

Prémium minőségű, új építésű házak Leányfalun, csodálatos kilátással!

A festői Dunakanyarban - mégis közel Budapest határához - a Visegrádi-hegység lábánál fekvő Leányfalun kínáljuk eladásra ezeket a magas minőségben épített, mind műszakilag, mind külső megjelenésében modern önálló ingatlanokat egy csodálatos, panorámás telken.

A épületet három egymás mögött álló, egymásba metsződő tömeg formálja, melyek padlósíkjai a meredek tereplejtést követik. Az első épülettömeg homlokzata világos kőburkolatot kap, a mögötte lévő emeleti ráépítés fehér vakolt homlokzatú, és a hegy felőli harmadik tömeg ismét világos kőburkolatú. Az utcafronti földszintes tömeg részben lapostetős kialakítású, itt helyezkedik el az emeleti tér terasza. A további két épülettömegen átlós kialakítású félnyeregtetők találhatóak. Az épület főhomlokzatán és hátsó homlokzatán fémszerkezetű előtetők épülnek.
A házban a megfelelő hőmérséklet leadásáról mennyezet hűtés/fűtés, Illetve padlófűtés gondoskodik, és napelem-, valamint riasztó előkészítést is kap.

A már jelenleg is szerkezetkész ingatlan a nagyközség egy csendes, könnyedén megközelíthető zsákutcájában található. A hatalmas parkosított telken 4 önálló ház kap helyet, mindegyikhez biztosított a privát bejárás.

Leendő tulajdonosai megvásárolhatják szerkezetkész, vagy akár kulcsrakész állapotban is.
Vételár:
- magas (50%) szerkezetkész: 133.266.000 Ft
- kulcsrakész: 266.532.000 Ft

További információért keressen nyugodtan, akár hétvégén is!

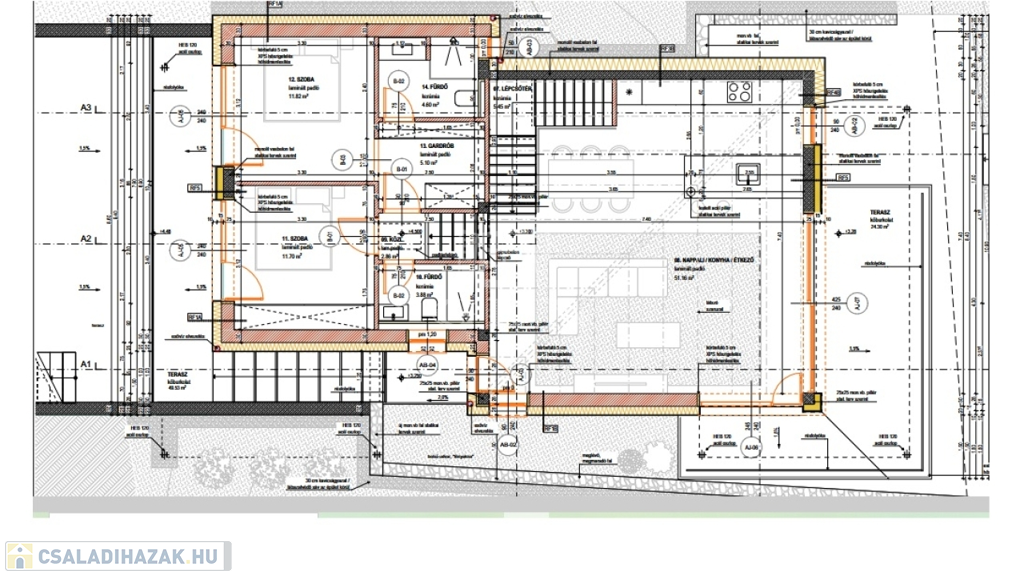
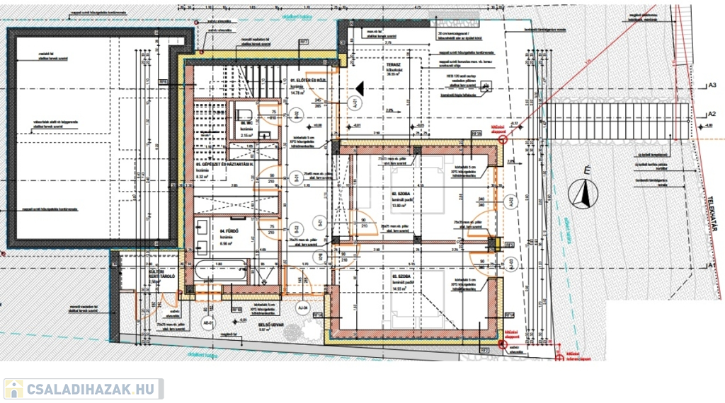
Családi ház részletei

Ár: 106 612 800 Ft
Méret: 197 négyzetméter
Azonosító: 11539429
Irodai azonosító: 383063
Cím: Lepke utca
Telek: 810 négyzetméter
Ingatlan állapota: Épülő
Jelleg: családi ház
Építőanyag: Tégla
Fűtés jellege: Geotermikus
Fűtés módja: Hőszivattyú
Komfort fokozat: Összkomfort
Kor: Új építésű
Szintek száma: 1 szint
Egész szobák: 5

Egyéb jellemzők

  • Csatorna
  • Garázs
  • Pince
  • Terasz

Térkép


Így keressen családi házat négy egyszerű lépésben. Csupán 2 perc, kötelezettségek nélkül!

Szűkítse a családi házak
listáját
Válassza ki a megfelelő
családi házat
Írjon a hirdetőnek
Várjon a visszahívásra