Eladó családi ház Lakitelek 54 900 000 Ft

Leírás

Otthonok és megoldások!

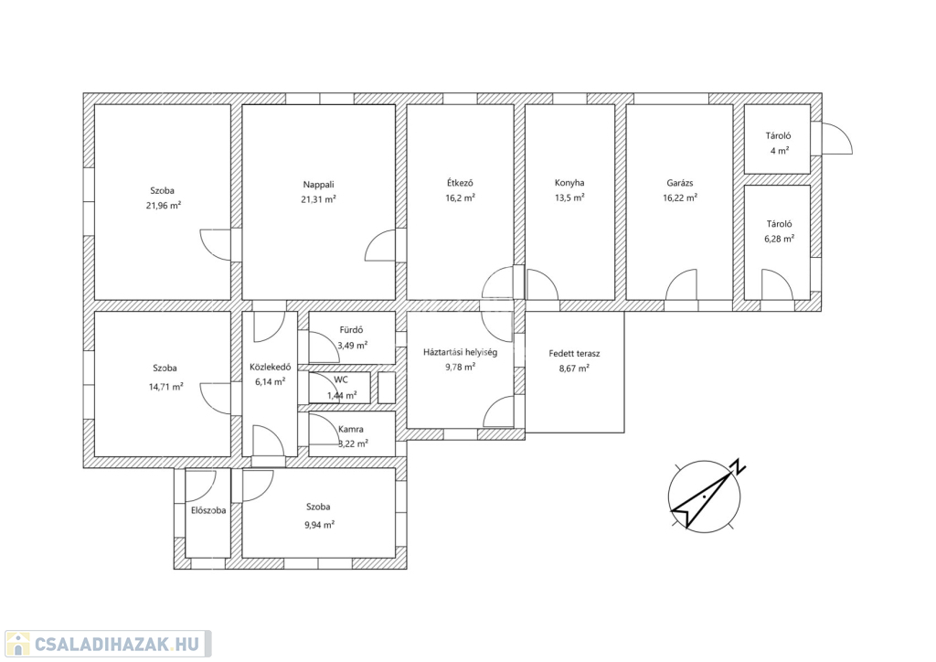
Lakitelek központjában eladó egy karbantartott és korszerűsített 155 nm, nappali + 3 szobás családi ház 711 nm telken.

Az ingatlan eredeti része a 70-es években épült vályogfalazattal, stabil téglaalapon. 2002-ben egy tégla falazatú, beton alapon nyugvó lakrészt is hozzáépítettek, ekkor az épület egységes tetőszerkezetet kapott, a tetőtér pedig igény szerint beépíthető.

A ház teljes villany- és vízvezeték rendszere korszerűsítve lett, az ingatlan teljesen összközműves. Ezen felül egy fúrt kút és egy időzíthető locsolórendszer is segíti a kert karbantartását.

A hőszigetelt nyílászárók redőnnyel és szúnyoghálóval felszereltek.
A kellemes hőérzetről gáz és vegyestüzelésű kazán gondoskodik padlófűtéssel és radiátorokkal kombinálva, valamint egy hangulatos cserépkályha is rendelkezésre áll.

A lakótérhez egy fedett terasz, zárt garázs, valamint több tárolóhelyiség is tartozik, így a biztonságos parkolás és barkácsolás is könnyedén megoldható.

A ház aszfaltozott, csendes utcában található, barátságos szomszédságban. Ideális választás lehet családosoknak, de akár két generáció számára is tökéletes lehetőséget kínál.

Ne hagyja ki ezt a lehetőséget – kérjen időpontot még ma!

Családi ház részletei

Ár: 54 900 000 Ft
Méret: 155 négyzetméter
Azonosító: 11566366
Irodai azonosító: 387436
Cím: belváros
Telek: 711 négyzetméter
Ingatlan állapota:
Jelleg: családi ház
Építőanyag: Tégla
Fűtés jellege: Cirkó
Fűtés módja: Gáz
Komfort fokozat: Összkomfort
Kor: 50 évesnél régebbi
Szintek száma: Földszintes
Egész szobák: 4

Egyéb jellemzők

  • Csatorna
  • Garázs
  • Pince
  • Terasz

Térkép


Így keressen családi házat négy egyszerű lépésben. Csupán 2 perc, kötelezettségek nélkül!

Szűkítse a családi házak
listáját
Válassza ki a megfelelő
családi házat
Írjon a hirdetőnek
Várjon a visszahívásra