Eladó családi ház Lajoskomárom 128 000 000 Ft

Leírás

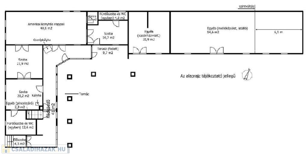
A Balatontól mintegy 20 km-re fekvő Lajoskomárom rendezett, zöldövezeti utcájában kínálok megvételre egy gondosan felújított, kúria jellegű 200 m2-es lakóépületet, amely 1700 m2-es telekkel, gazdasági épületekkel és fedett terasszal rendelkezik.

A déli fekvésű, világos, két bejárattal rendelkező ház 1900-ban épült, felújítása 2016-ban, a teljes tetőszerkezet cseréje 2017-ben történt meg. A házban három hálószoba, két fürdőszoba, három WC, nappali-konyha, spájz, közlekedők, kazánház és mosókonyha található. A hálószobák tágasak és csendesek, kettő közvetlen fürdőszoba-kapcsolattal. A jól felszerelt, központi pultos konyhához nagy spájz tartozik.

A fűtés elektromos padlófűtéssel és vegyes tüzelésű kazánnal, radiátoros hőleadással történik. Kiegészítőként cserépkályha, fatüzelésű kályha és klíma biztosítja a komfortot. A meleg vizet elektromos rendszer és puffertartály szolgáltatja. A fa nyílászárók hőszigeteltek, szúnyoghálóval felszereltek.

A burkolatok laminált parketta és kerámia, a falak festettek. A ház egy része alatt pince található. Az ingatlan tehermentes, azonnal költözhető, a kert gondozott, kútvízzel öntözhető, több termő gyümölcsfával. A telken két nagy gazdasági épület és fatároló is rendelkezésre áll. Igény esetén egy több mint két hektáros terület is megvásárolható hozzá.

Referencia szám: M310170

Családi ház részletei

Ár: 128 000 000 Ft
Méret: 200 négyzetméter
Azonosító: 11557893
Irodai azonosító: M310170-5012047
Telek: 1757 négyzetméter
Ingatlan állapota: Kitűnő
Jelleg: családi ház
Építőanyag: Tégla
Fűtés jellege: Cirkó
Fűtés módja: Gáz
Komfort fokozat: Dupla komfort
Kor: 50 évesnél régebbi
Szintek száma: Földszintes
Egész szobák: 4

Egyéb jellemzők

  • Garázs

Térkép


Így keressen családi házat négy egyszerű lépésben. Csupán 2 perc, kötelezettségek nélkül!

Szűkítse a családi házak
listáját
Válassza ki a megfelelő
családi házat
Írjon a hirdetőnek
Várjon a visszahívásra