Eladó családi ház Koroncó 78 000 000 Ft

Leírás


Koroncón lehet az új otthonotok, egy 1060 nm-es telken, nappali +3 szobás családi házat építünk számotokra.

Fűtéskész átadás a szerződés aláírásától számítva 9 hónap múlva.

Ne késlekedjetek, hívjatok, foglaljátok le ezt a remek ajánlatot!

3% os hitel az egész ingatlan értékre igénybe vehető!

 

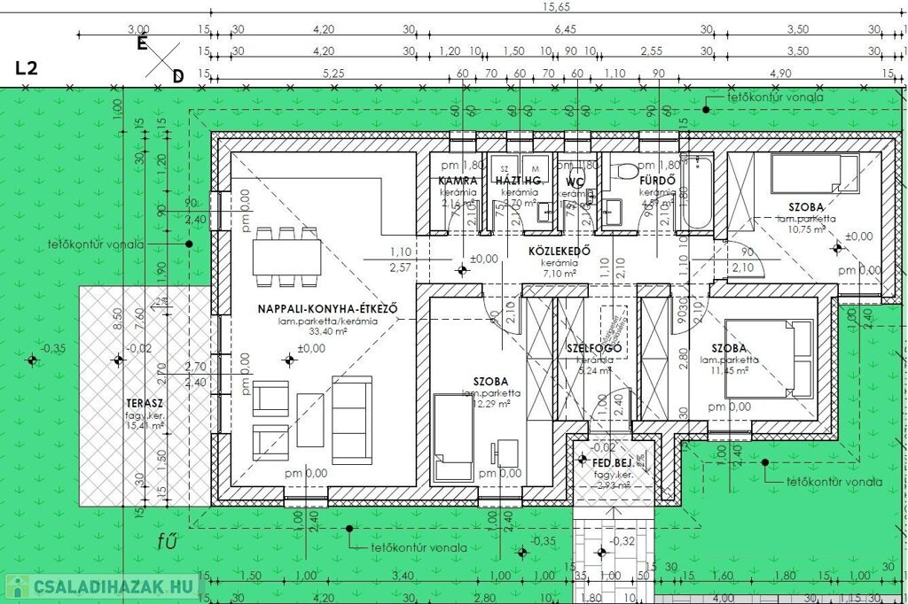
L2 (hátsó ház) 91,29 m2 lakótér + 15,42 terasz, bruttó 106,752 nm, lásd a képek között.

JANUÁRI kedvezményes ár: 2026.01.31-ig 3.000.000 Ft kedvezménnyel + ajándék 2 db murvázott beállóval: bruttó 67.999.000 Ft helyett bruttó 64.999.000 Ft + TELEK 13 M Ft.

Egy 1805 nm-es telken 2 db ÖNÁLLÓ ház épül fel, használati megosztással.

A bejáró mindössze a közös rész, ami 125 nm. lásd a képek között!

 

Műszaki szemmel, fontos infók, a fűtéskész állapot műszaki leírása:

 

Épületgépészet:

A fűtés rendszer padló fűtési rendszerrel kerül kiépítésre

Klíma előkészítés

Földmunka:

Tereprendezés(szemét elszállítása az építkezés után), humusz réteg letolása, kitűzés, gépi alapárok kiemelés 45 cm-es szélességben 90 cm mélységben, kézi után igazítással.

Alapozás:

Teherhordó falak alatt 85 cm mély 45 cm széles beton sávalap C12-32kk mixerbetonból.

Lábazati fal:

Két sor LEIER zsalukő.

Feltöltés:

10cm Kavicsfeltöltés döngölőgéppel tömörítve.



Gépészeti alapszerelés:

Csatorna alapszerelés 110 és 50 mm-es PVC csövekkel, felállásokkal.

Vízbevezetés KPE csővel szerelve, a kazán alatt leendő vízosztóhoz felállva.

Szerelőbeton:

12 cm vastag 15*15*5.2 hálóval vasalt szerelőbeton C12-32kk mixerbetonból a statikai tervek szerint.



Falazatok:

A fő és válaszfalak alatt bitumenes vastaglemez szigetelés.

Külső falak: 30 N+F téglából

A belső válaszfalak 10 N+F téglából.



Födém teherhordó szerk.:

Térelhatároló szerkezet( felső burkolás nélkül), alulról favázon 1rtg RB gipszkartonnal burkolva, párazáró fóliával. Padlásfeljáró helyének kialakítása létra nélkül.

Koszorú:

Zsaluzva hőszigeteléssel. Beton, C16-16kk mixerbeton vibrátorral tömörítve.   

Vasalás, 10-es fővasalással, 40 cm-enként, 6-os kengyelekkel. Talpszelemencsavarok elhelyezve.

Födém hőszigetelés:

30 cm vastag szálas hőszigetelés.

Kémény, Szellőzés:

Saunier Duval Semiatek Condens kazánhoz, gyári szerelt dupla falú kémény.

Tetőszerkezet:

Fa födém

Hagyományos tetőszerkezet 15*15 -ös talpszelemennel, 10*15 -ös szarufákkal, szükség szerint 5*15-ös fogópárral és 7,5*15-ös székszelemennel, 3*5 -ös Bramac ellenléc és tetőléccel, tetőfóliával.

Bádogozás:

Félkör keresztmetszetű színezett ereszcsatorna. Vápa horganyzott lemez.

Tetőfedés:

Bramac Natura, Mediterrán standard barna vagy szürke cserép.

Belső vakolás:

Gépi alap- és simítóvakolattal, pozitív sarkokon élvédő elhelyezéssel. Különböző anyagok találkozásánál rabic háló bedolgozással.

Külső homlokzat képzés:

Oldalfal:15 cm-es dryvit rendszer  hálózva színvakolattal(1-es színkategória)

Lábazat: 7 cm-es expert hőszigetelés színes lábazati vakolattal .

Párkány:

Dobozolt  kialakítás.

Aljzat:

1 réteg bitumenes vastaglemez talajnedvesség elleni szigetelés, 10 cm Austrotherm AT-N100 lépésálló hőszigetelés, 1 réteg technológiai szigetelés, 6 cm aljzatbeton.



Külső nyílászárók:

Fehér, műanyag rendszerű hőszigetelt üvegezésű ablakok (k=0,6 az üvegre), a téglafalba építve purhabbal, biztonsági bejárati ajtóval.



Villanyszerelés:

Szobák, nappali-konyha-étkező: 1db világítótest, 5db tetszőlegesen választható kapcsoló vagy dugalj. Közlekedő, WC, fürdő, kamra, háztartási helyiség 1db világítótest 3 db dugalj vagy kapcsoló. Kültéren:1db világítótest, és 2db kapcsoló vagy dugalj kialakítása. A darabszám helyiségenként értendő.



Terasz / közlekedők / gépkocsibeálló

Murvázott terasz a rajzott jelzett 15 m2-en.

Gépkocsibeálló + hozzá vezető közös út és behajtó murvázva

Térköves beálló és terasz felár ellenében kérhető



Megjegyzés: Ezen műszaki tartalom szerves részét képezi az árajánlatnak. Ettől való bármilyen eltérés lehetséges, de árváltozást eredményezhet. Változtatási szándékát kérjük, szerződéskötés előtt feltétlenül jelezze! 



Fontos: A külső közművek (víz, villany, szennyvíz, csapadékvíz elvezetés) biztosítása az épületen kívül, az épületen belüli csatlakozási pontig a megrendelő feladata!

Ennek költsége kb. bruttó 2.500.000 Ft, ami külön fizetendő!

Várom hívásod!

 

Családi ház részletei

Ár: 78 000 000 Ft
Méret: 99 négyzetméter
Azonosító: 11590015
Irodai azonosító: 210600638
Telek: 1060 négyzetméter
Ingatlan állapota: Kitűnő
Jelleg: családi ház
Építőanyag: Tégla
Fűtés jellege: Egyéb
Komfort fokozat: Összkomfort
Kor: Új építésű
Egész szobák: 4

Így keressen családi házat négy egyszerű lépésben. Csupán 2 perc, kötelezettségek nélkül!

Szűkítse a családi házak
listáját
Válassza ki a megfelelő
családi házat
Írjon a hirdetőnek
Várjon a visszahívásra