Eladó családi ház Környe 66 000 000 Ft

Leírás

Az Openhouse Tatabánya Ingatlaniroda kínálatában eladó a #177337 hivatkozási számú környei családi ház.

Eladó egy vadonatúj könnyűszerkezetes családi ház Környén, 1390 m²-es telken, teljes közművel (víz, villany, gáz, csatorna, internet).


Az ingatlan csendes üdülőövezetben található, saját horgásztóval, strandrésszel és zárt üdülőparkkal a Vértes lábánál, Tatabánya és Tata közelében.


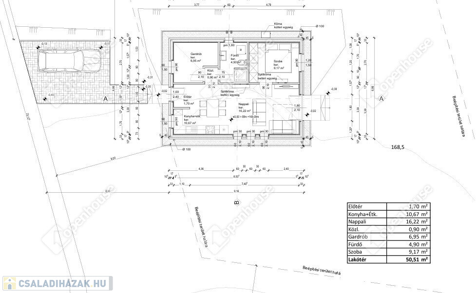
Főbb jellemzők:


Új építésű ház, néhány munkálat van még hátra (a fürdőszoba befejezése, udvar térkövezése, beltéri ajtók elhelyezése a napokban megtörténik)
Korszerű hőszivattyús fűtés és padlófűtés minden helyiségben
Minőségi kivitelezés, prémium burkolatokkal
Teljes közmű (víz, villany, gáz, csatorna, internet)
1390 m²-es, tágas telek rendezett környezetben
Könnyűszerkezetes építés korszerű szigeteléssel
Csendes, erdőközeli, mégis könnyen megközelíthető elhelyezkedés
Zárt üdülőpark, biztonságos beléptetéssel (telefonos nyitás vagy kód)
Kiváló közlekedés Tatabánya, Tata, Oroszlány és Komárom irányából is


A nagy méretű telek lehetőséget biztosít kertészkedésre, medence vagy terasz kialakítására. A kertben egy 30 m²-es térkövezett autóbeálló is készülőben van, emellett lehetőség van nyári konyha, jacuzzi vagy kerti tároló létrehozására is.


Helyiségek:


Nappali: Világos, modern, prémium burkolattal – ideális családi élethez és pihenéshez.
Konyha: Praktikus, letisztult konyharész, azonnal használható.
Fürdőszoba: Modern szaniterekkel előkészítve, végső befejezése folyamatban.
Hálószoba: Kényelmes és nyugodt tér a teljes kikapcsolódáshoz.


Telek és környezet:


- Hatalmas, 1390 m²-es telek – kertészkedésre, pihenésre vagy bővítésre alkalmas.
- Rendezett, nyugodt környék közel a természethez.
- Saját horgásztó és strandrész az üdülőpark területén.
- Tágas tér és panoráma a Vértes lábánál, tóra néző kilátással.

Ha felkeltette érdeklődését ez az eladó környei családi ház, vagy bármely más családi ház és bővebb információt szeretne, keressen bizalommal.Hivatkozási szám: #177337

Az Openhouse Tatabánya Ingatlaniroda tagjaként várom Önt az országos hálózatunk teljes kínálatával.

A családi ház vásárláshoz hitelt igényelne? Ingyenes hitelközvetítéssel segít Önnek bankfüggetlen hitelszakértőnk.

További szolgáltatásainkkal (pl. értékbecslés, energetikai tanúsítvány, jogi háttér) is segítjük Önt a vásárlásban.
Az otthon érték. Az ingatlan üzlet.

Referencia szám: 177337

Családi ház részletei

Ár: 66 000 000 Ft
Méret: 62 négyzetméter
Azonosító: 11578559
Irodai azonosító: 177337-5081034
Telek: 1390 négyzetméter
Ingatlan állapota: Épülő
Jelleg: családi ház
Építőanyag: Könnyűszerkezetes
Fűtés jellege: Egyéb
Kor: Új építésű
Szintek száma: Földszintes
Egész szobák: 3

Egyéb jellemzők

  • Garázs

Térkép


Így keressen családi házat négy egyszerű lépésben. Csupán 2 perc, kötelezettségek nélkül!

Szűkítse a családi házak
listáját
Válassza ki a megfelelő
családi házat
Írjon a hirdetőnek
Várjon a visszahívásra