Eladó családi ház Kóka 58 990 000 Ft

Leírás

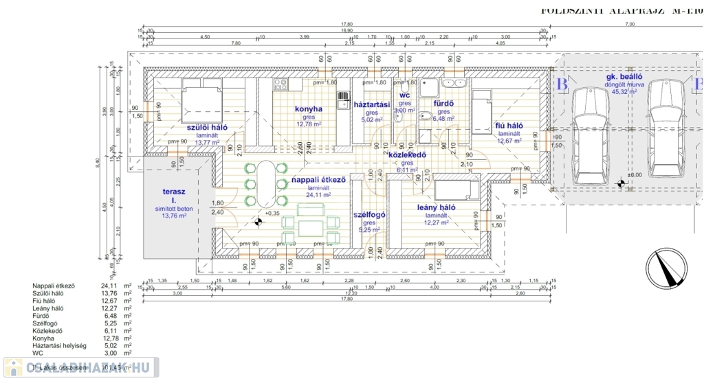
Kókán a József Attila utca 31. szám alatt, 1406 m2-es telkeken, újonnan épülő nettó 101,45 m2 nettó hasznos lakótérrel rendelkező, kulcsrakész ikerházfelek eladóak

Az ingatlanok csak a fedett gépkocsibeállóval érintkeznek.
Az utcafronti ház kizárólagos használatú telekrésze 472 m2. A hátsó háznak 934 m2-es a kizárólagos használatú telekrésze.

Az ingatlanok 30-as Nútféderes téglából épülnek, fa födémmel.
A tető héjazata betoncserép lesz, a homlokzatok 15cm EPS, a padló 10cm lépésálló, a födém 30cm ásványgyapot szigeteléssel lesz ellátva.

A külső nyílászárók 6 légkamrás háromrétegű üveggel szerelt műanyag thermók lesznek.

A fűtést hőszivattyús rendszer fogja ellátni, padlófűtéssel.


Műszaki tartalom:

-Csempe, járólap 3000 ft/m²
-Meleg burkolat 3000 Ft/m²
-Fürdőkád: 40.000.- Ft
-Beltéri ajtók 32.000.- Ft. /db
-Csaptelepek: 15.000.- Ft. /db

Magasabb árú választás is lehetséges a különbség finanszírozásával.

Elektromos kiépítés:
-Konnektorok szobákban: 3 db
-Konnektorok nappaliban 4db + internet és kábeltv kiállás
-Konnektorok konyhában: 6db
-Világítás helyiségenként 1-1 db
-Kábeltévé: Előkészítés


-Kapumozgató elektronika: előkészítés
-Riasztó: előkészítés


Az utcafronti kerítés színezett zsalukővel, fa lécezéssel készül.

A kivitelező korábban épített ingatlanjait komoly érdeklődés esetén szívesen megmutatjuk referenciaként.

INGYENES hitel tanácsadás, Otthon Start, CSOK Plusz ügyintézés!
BANKFÜGGETLEN hitelcentrumunk az összes elérhető bank és hitelintézet ajánlatát versenyezteti az Ön kedvéért, ráadásul DÍJMENTESEN.

- Egyedi, bankfiókban nem elérhető kamat- és díjkedvezmények
- Hitelképesség vizsgálat
- Idő, energia és pénz megtakarítás
- Teljes hivatali ügyintézés

Amennyiben hirdetésem felkeltette az érdeklődését vagy egyéb információra van szüksége hívjon bizalommal!

Családi ház részletei

Ár: 58 990 000 Ft
Méret: 101 négyzetméter
Azonosító: 11584726
Irodai azonosító: 390489
Cím: József Attila utca
Telek: 934 négyzetméter
Ingatlan állapota: Kitűnő
Jelleg: ikerház
Építőanyag: Tégla
Fűtés jellege: Geotermikus
Fűtés módja: Hőszivattyú
Komfort fokozat: Összkomfort
Kor: Új építésű
Szintek száma: Földszintes
Egész szobák: 4

Egyéb jellemzők

  • Csatorna
  • Garázs
  • Pince
  • Terasz

Térkép


Így keressen családi házat négy egyszerű lépésben. Csupán 2 perc, kötelezettségek nélkül!

Szűkítse a családi házak
listáját
Válassza ki a megfelelő
családi házat
Írjon a hirdetőnek
Várjon a visszahívásra