Eladó családi ház Kocs 87 557 500 Ft

Leírás

ÚJ ÉPÍTÉSŰ, KÖRNYEZETBARÁT, ENERGIATAKARÉKOS CSALÁDI HÁZAK KOCSON, TATÁTÓL ÉS AZ M1-ES AUTÓPÁLYÁTÓL 5 PERCRE!

Költözzön kertkapcsolatos, modern kialakítású, alacsony rezsijű, új építésű otthonba a természethez közel, mégis kiváló közlekedéssel!

Elhelyezkedés:
A projekt Kocs központi, mégis csendes, családbarát utcájában, a József Attila utcában valósul meg – kellemes falusias környezetben, kiváló városi infrastruktúrával, közel boltokhoz, iskolához, buszmegállóhoz. Tata és az M1-es autópálya autóval 5 perc alatt elérhető.

A projekt megbízható beruházótól!
A kivitelezést egy nagy múltú, számos helyi és környékbeli referenciával rendelkező, megbízható beruházó végzi, aki a minőséget, határidőt és műszaki tartalmat garantálja. A tapasztalat, a korszerű technológia és a precíz kivitelezés itt valóban kézzelfogható!

A projekt főbb adatai:
• Összesen 4 db földszintes családi ház, 4 ütemben, egy 2.315 m²-es telken
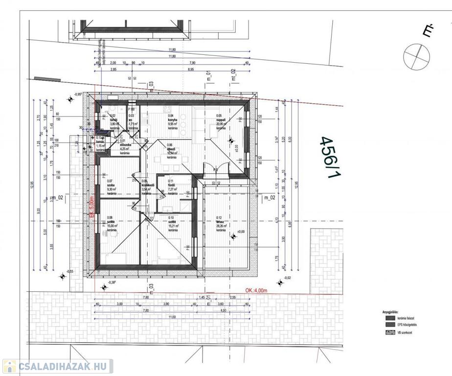
• Hasznos alapterület: 101 m²
• 3 hálószoba + nappali
• Terasz (28,26 m2) és saját kertkapcsolat (kb. 560 m2)
• CSOK Plusz és 3%-os hitel IGÉNYELHETŐ
• Illetékmentesség!

Korszerű energetikai megoldások:
• Hőszivattyús (víz-levegő rendszer, szabályozható) fűtés (igény szerint hűtés)
• Padlófűtés az egész házban
• 30 cm kőzetgyapot tetőszigetelés
• 15 cm grafitos EPS homlokzati szigetelés
• 10 cm padlószigetelés EPS 150 anyagból
• Energiatakarékos, 6 légkamrás műanyag nyílászárók, kívül barna, belül fehér fóliával
• Hőszigetelő, 3 rétegű üvegezés

Műszaki tartalom:
• Alapozás: beton sávalap + Leier ZS-25 zsaluzóelem + 12 cm vasalt aljzatbeton
• Főfalak: 25 cm vastag Porotherm 25 N+F tégla
• Válaszfalak: 10 cm vastag Porotherm falazóelemek
• Födém: monolit vasbeton, 20 cm vastagságban
• Tető: kontyolt nyeregtető, fogópáros ácsolattal, barna betoncserép fedéssel
• Bádogozás: festett alumínium eresz- és falszegélyek, barna színben
• Burkolatok: mázas kerámia burkolatok (PEI 5), fagyálló, csúszásmentes teraszburkolat
• Belső felületek: glettelt és festett falfelületek, vizes helyiségekben csempézett falak

Közművek:
• Elektromos áram: földkábelen keresztül
• Ivóvíz és szennyvíz: csatlakozás a települési hálózathoz
• Földgáz: bevezetve a telekre, de nem tervezett a használata

Átadás:
• Műszaki átadás: az e-napló megnyitásától számított 12 hónapon belül

További előnyök:
• Teljes körű, INGYENES hitel- és CSOK ügyintézés
• Bankfüggetlen tanácsadás
• Szerződés előkészítés egy helyen, kényelmesen

Ha Ön is modern, biztonságos, családbarát otthont keres vidéki hangulattal, de jó közlekedéssel, ne maradjon le erről a lehetőségről!
Hívjon még ma, és legyen Ön az első tulajdonosa ennek az energiatakarékos, új építésű otthonnak!

Érdeklődni kizárólag: Nagy Edit 06 30 6 226 317

Családi ház részletei

Ár: 87 557 500 Ft
Méret: 101 négyzetméter
Azonosító: 11555647
Irodai azonosító: 9332
Cím: Kocs
Telek: 566 négyzetméter
Ingatlan állapota:
Jelleg: családi ház
Építőanyag: Kérdezzen rá a hirdetőtől »
Fűtés jellege: Egyéb
Kor: Új építésű
Egész szobák: 4

Így keressen családi házat négy egyszerű lépésben. Csupán 2 perc, kötelezettségek nélkül!

Szűkítse a családi házak
listáját
Válassza ki a megfelelő
családi házat
Írjon a hirdetőnek
Várjon a visszahívásra