Eladó családi ház Kistelek 45 000 000 Ft

Leírás

ELADÓ KISTELEKI CSALÁDI HÁZ

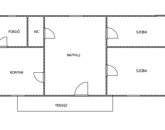
Eladó egy 75 m²-es, tégla szerkezetű családi ház 660 m²-es telken, csendes környezetben. Az alsó szint beépített, a tetőtér beépíthető, így további lakótér alakítható ki.

Az ingatlan 3 szobás, a fürdő és a wc külön helyiségben találhatók. Belmagasság 3 méteres, szép, világos tereket biztosít.
A házhoz 18 m²-es terasz tartozik.

A telken található egy 48 m²-es melléképület (jelenleg tároló, kemencével), valamint egy 52 m²-es, bontható épület, amelynek helyére garázs építhető. Parkolás saját beállón megoldott.

Az ingatlan lakható állapotú, de az új vevő fogja majd igazán szép otthonná varázsolni.

Az ingatlan tehermentes, rövid határidővel költözhatő.

NÉZZE MEG AJÁNLATUNKAT SZEMÉLYESEN IS!

Családi ház részletei

Ár: 45 000 000 Ft
Méret: 75 négyzetméter
Azonosító: 11589639
Irodai azonosító: 391247
Cím: Tóalj utca
Telek: 660 négyzetméter
Ingatlan állapota: Átlagos
Jelleg: családi ház
Építőanyag: Tégla
Fűtés jellege: Konvektoros
Fűtés módja: Gáz
Komfort fokozat: Összkomfort
Kor: 50 évesnél régebbi
Szintek száma: 1 szint
Egész szobák: 3

Egyéb jellemzők

  • Csatorna
  • Garázs
  • Pince
  • Terasz

Térkép


Így keressen családi házat négy egyszerű lépésben. Csupán 2 perc, kötelezettségek nélkül!

Szűkítse a családi házak
listáját
Válassza ki a megfelelő
családi házat
Írjon a hirdetőnek
Várjon a visszahívásra