Eladó családi ház Kistarcsa 76 000 000 Ft

Leírás

Kiváló Helyen Jó Áron ELADÓ!

Kistarcsán, ELADÓ egy 76nm-es kertes téglából épült ikerházfél + 35nm-es hozzá tartozó ÜZLETHELYISÉGGEL!

Az ingatlan forgalmas helyen található. Kifejezetten befektetésre, kiadásra alkalmas mind a lakás mind az üzlethelyiség része, mely korábban kisállat kereskedésként és bababoltként is üzemelt.

A házhoz tartozik egy zárt garázs, mely 1 autó tárolására alkalmas, egy 5 részből álló 26nm-es gazdasági épület, valamint egy elkerített kertrész.

-Telek mérete: 350nm
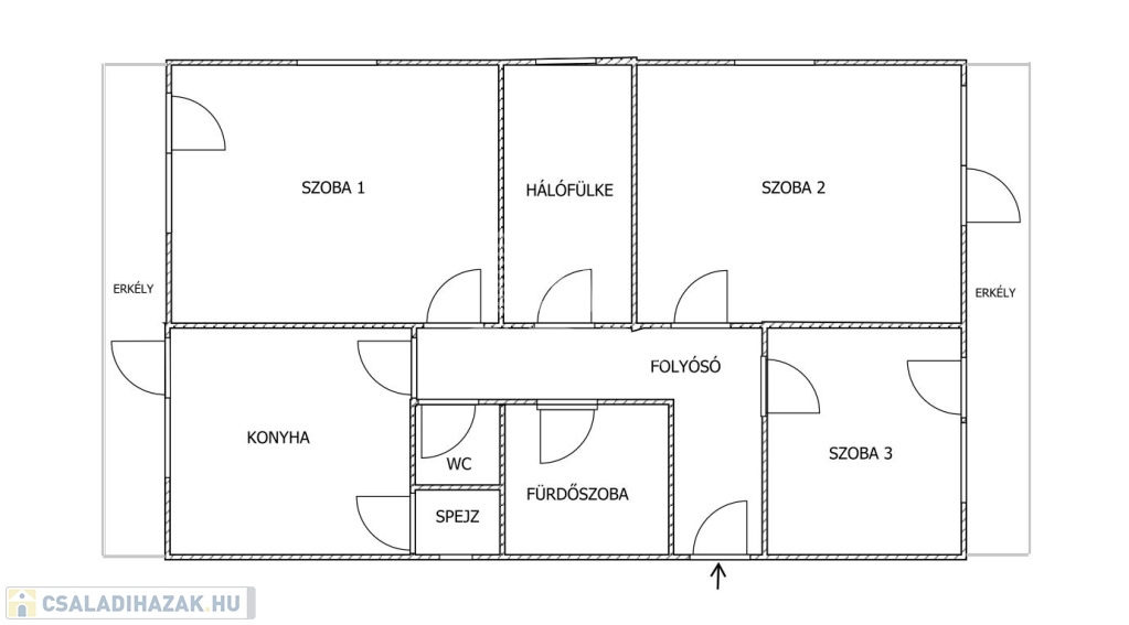
-3 szoba + 1 fél
-konyha
-spejz
-folyosó
- 2 erkély
-fürdő
-külön WC
--------------------------------------------
Fűtés: gázkazán és kombi cirkó
Áram: IPARI áram !! (3x16A és 3x25A) az üzlethelyiségben és a hátsó gazdasági épületben is!
Alacsony rezsi: kb. 30.000-Ft /hó

Az ingatlan per-és tehermentes. A vételár részét képezi a konyha, a fürdőszoba, a hálófülke beépített valamint a nappali teljes bútorzata. Ügyvédi megosztással lett ikerházzá nyilvánítva. A felső szint az eladó, a hozzá tartozó alsó, utcáról nyíló üzlethelyiséggel és garázzsal.

Irányár: 76.000.000 Ft

JÖJJÖN, nézze meg! Várom hívását!

Családi ház részletei

Ár: 76 000 000 Ft
Méret: 76 négyzetméter
Azonosító: 11176451
Irodai azonosító: 346616
Cím: Kórházhoz közeli
Telek: 350 négyzetméter
Ingatlan állapota:
Jelleg: ikerház
Építőanyag: Tégla
Fűtés jellege: Cirkó
Fűtés módja: Gáz
Komfort fokozat: Összkomfort
Kor: 21-50 éves
Szintek száma: 1 szint
Egész szobák: 3
Fél szobák: 1

Egyéb jellemzők

  • Csatorna
  • Garázs
  • Pince
  • Terasz

Térkép


Így keressen családi házat négy egyszerű lépésben. Csupán 2 perc, kötelezettségek nélkül!

Szűkítse a családi házak
listáját
Válassza ki a megfelelő
családi házat
Írjon a hirdetőnek
Várjon a visszahívásra